Tefrişleri Oluşturun
Bu bölümde yapı bilgi modellemesi kapsamında, mimari tasarımda salona tefrişlerini yerleştirin.
Tefrişleri oluşturun adlı proje dosyasında önceki adımlar uygulanmıştır. Dosyayı indirip bu başlıkta verilen adımları proje üzerinde uygulayabilirsiniz.
|
Tefrişleri perspektif ekranda takip edebilmek için katman listesinden döşeme katmanının işaretini kaldırın.

Perspektif ekranın sağ üst köşesinde yer alan N butonuna tıklayarak sadece aktif katı perspektif ekranda görebilirsiniz.

Kütüphane komutuna tıklayın.
Kütüphane toolbarında ayarlar ikonuna tıklayın. Kütüphane ayarları diyaloğu açılacaktır.
Listeden salon mobilyaları/koltuklar/koltuk04 satırını seçin. Aktif tarama seçeneğinin işaretini kaldırın.
Tamam butonuna tıklayarak diyaloğu kapatın. Seçilen koltuğun öngörüntüsü ekranda oluşacaktır.
Aşağıdaki görseldeki gibi sürme kapının sol tarafına getirip farenin sol tuşuna tıklayın.

Obje seçimi diyaloğu açılacaktır. Koltuğun üzerine yerleşmesini istediğiniz objeyi listeden seçin. Tamam butonuna tıklayarak diyaloğu kapatın.

Koltuğn sol üst köşesi sabitlenecek, farenin hareketiyle beraber dönecektir.
Shift tuşuna basarak koltuğu düz hale getirin.

Farenin sol tuşuna tıklayın.

Koltuk oluşacaktır.

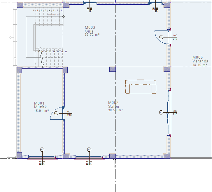
Kütüphane ayarlarına girip listeden salon mobilyaları/koltuklar/koltuk14 satırını seçin.
Tamam butonuna tıklayarak diyaloğu kapatın. Seçilen koltuğun öngörüntüsü ekranda oluşacaktır.
Aşağıdaki görseldeki gibi koltuğu yerleştirin.

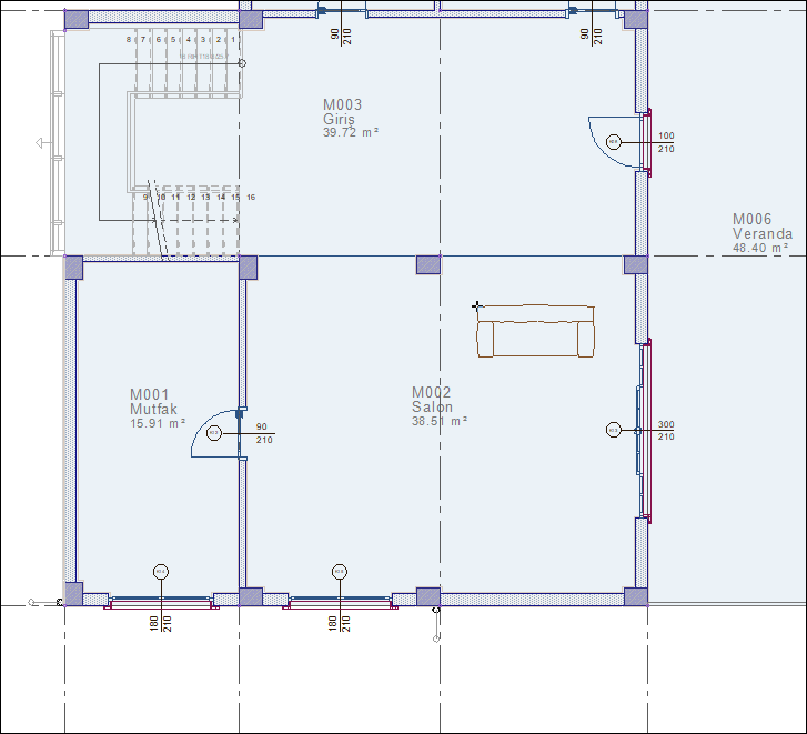
Aynı koltuktan bir tane daha aşağıdaki görseldeki gibi yerleştirin.

Kütüphane ayarlarına girip listeden salon mobilyaları/sehpalar/sehpa01 satırını seçin.
Tamam butonuna tıklayarak diyaloğu kapatın. Seçilen sehpanın öngörüntüsü ekranda oluşacaktır.
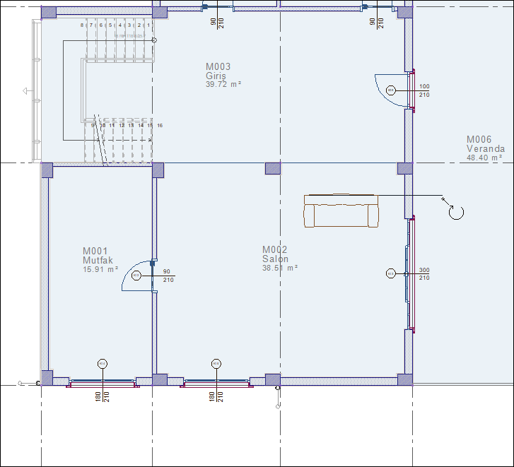
Aşağıdaki görseldeki gibi sehpayı yerleştirin. Klavyeden Esc tuşuna basıp komuttan çıkın.

Salon tefrişleri tamamlandı.
Uygulanan adımları aşağıdaki videodan takip edebilirsiniz.
Sonraki Konu