Cephe Elemanları Oluşturun
Bu bölümde yapı bilgi modellemesi kapsamında, mimari tasarımın cephe elemanlarını (söve ve kat silmesini) oluşturun.
Cephe elemanları oluşturun adlı proje dosyasında önceki adımlar uygulanmıştır. Dosyayı indirip bu başlıkta verilen adımları proje üzerinde uygulayabilirsiniz.
|
Proje üzerinde daha rahat çalışabilmek için araziye ait kot bilgilerinin katmanını kapatın.
Katman ayarlarına girin.
Çizim detayları sekmesinden kot noktası seviye ölçüsü, arazi çizgi noktaları seviye ölçüsü, boşluk noktaları seviye ölçüsü ve alt bölge noktaları seviye ölçüsü seçeneklerinin işaretlerini kaldırın.
Tamam butonuna tıklayarak diyaloğu kapatın.


Söve komutuna tıklayın.
Dış cephede yer alan, söve eklenecek kapı ve pencereleri seçin. Farenin sağ tuşuna tıklayarak seçim işlemini tamamlayın.

Sövelerin önizlemesi planda oluşacaktır. Boşluk tuşuna basarak duvarın hangi tarafında olacağını belirleyebilirsiniz.

Farenin sol tuşuna tıklayın.

Zemin kat söveleri oluşacaktır.

Üst kata geçin.
Söve komutuna tıklayın.
Söve eklenecek kapı ve pencereleri seçin. Farenin sağ tuşuna tıklayarak seçim işlemini tamamlayın.

Sövelerin önizlemesi planda oluşacaktır. Boşluk tuşuna basarak duvarın hangi tarafında olacağını belirleyebilirsiniz.

Farenin sol tuşuna tıklayın.

Üst kat söveleri oluşacaktır.

Kat silmesi komutuna tıklayın.
Profil objeleri toolbarından serbest çizim yöntemini, kesit listesinden kat silmesi 01 i seçin.

Ayarlar ikonuna tıklayın. Kot değerine -45 cm girin.

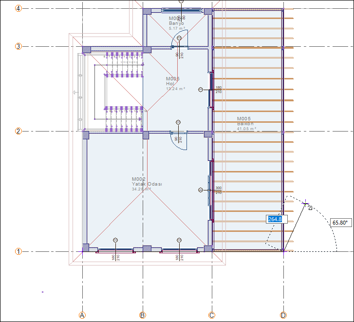
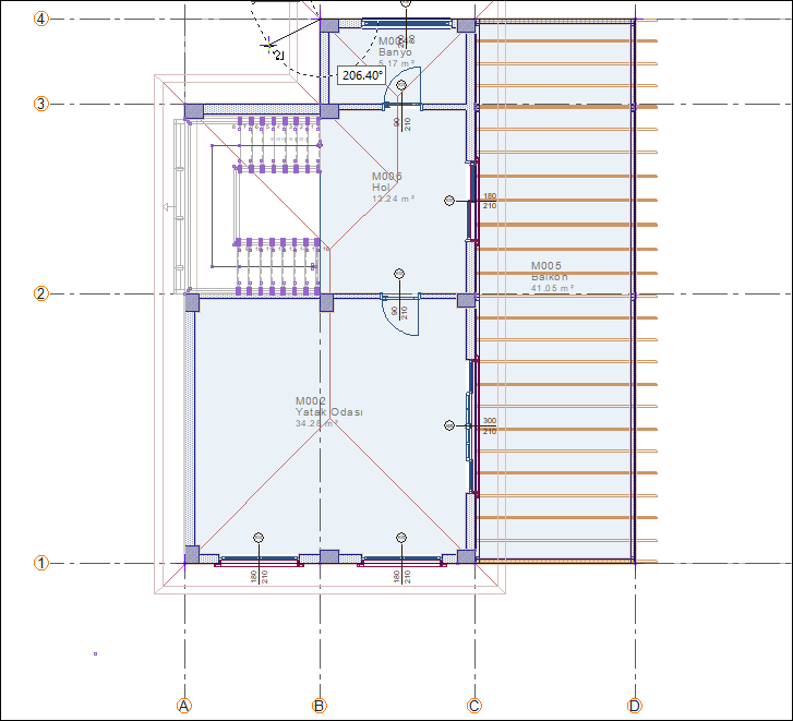
A-1 aks kesişimine sonra D-1 aks kesişimine tıklayın.

D-4 aks kesişimine sonra B-4 aks kesişimine tıklayın.

B-3 aks kesişimine tıkladıktan sonra farenin sağ tuşuna tıklayarak komutu sonlandırın.

Kat silmesi oluşacaktır.

Yağmur iniş borularını araziye oturtun.
Yağmur iniş borularını seçip üzerine çift tıklayın.
Yağmur iniş borusu ayarları diyaloğu açılacaktır.
Yağmur iniş borusu yüksekliğini 615 cm, kot değerini -15 cm olarak değiştirin.

Yağmur iniş boruları araziye oturacaktır.

Cephe elemanları tamamlandı.
Uygulanan adımları aşağıdaki videodan takip edebilirsiniz.
Sonraki Konu