Merdiven Modelleme
Bu bölümde yapı bilgi modellemesi kapsamında, mimari tasarımda merdivenleri ve korkuluklarını modelleyin.
Merdiven modelleme adlı proje dosyasında önceki adımlar uygulanmıştır. Dosyayı indirip bu başlıkta verilen adımları proje üzerinde uygulayabilirsiniz. |
Merdiven komutuna tıklayın. Merdiven öngörüntüsü ekranda belirecektir.

Klavyeden boşluk tuşuna basarak merdiven referans noktasını değiştirip sol üst köşe yapın.

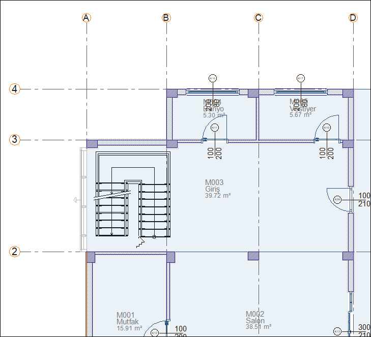
A-2 aks kesişimine tıklayın. A-3 kesişimine tıklayarak merdiveninizi yerleştirin. Klavyeden Esc tuşuna basıp komuttan çıkın.

Merdiven üzerine çift tıklayarak ayarlarına girin.
Merdiven kolu genişliğine 120, merdiven kolu uzunluğuna 180, sahanlik enine 120, sahanlık boyuna 390, sahanlık kotuna 150, merdiven yüksekliğine 300 değerlerini yazın.

Tamam butonuna tıkladığınız da merdiven girilen değerlere göre şekillenecektir.

Merdiveni seçin ve taşı komutuna girin. Sol köşesine tıklayarak A-2 aks kesişimine yerleştirin.

Perspektif ekranın sağ üst köşesinde yer alan N butonuna tıklayarak sadece aktif katı perspektif ekranda görebilirsiniz.

Merdiven üzerine çift tıklayarak ayarlarına girin.
Korkuluk sekmesinde küpeşte profili olarak 1,korkuluk profili olarak 1 tipi seçili gelecektir.

Küpeşte profili olarak 13,korkuluk profili olarak 20 tipini seçin.

Tamam butonuna tıklayarak diyaloğu kapatın.
Zemin kat merdiveni tamamlandı.

Merdiveni seçin ve kat kopyala komutuna girin. Kat kopyala diyaloğunda 1. katı işaretleyin.
Eski objeleri sil seçeneğinin işaretini kaldırın ve tamam butonuna tıklayın.

Merdiven üst kata kopyalanacaktır. Perspektif ekranın sağ üst köşesinde yer alan N butonuna tıklayarak bütün katları perspektif ekranda görebilirsiniz.

Program arayüzünün altında yer alan mesaj satırına tıklayın. Açılan listeden 1. kat satırına tıklayarak 1. kat plan sayfasına geçin.
Merdiven üzerine çift tıklayarak ayarlarına girin.
Konstrüksiyon sekmesinde Planda kesit hattını çiz seçeneğinin işaretini kaldırın. Tamam butonuna tıklayarak diyaloğu kapatın.

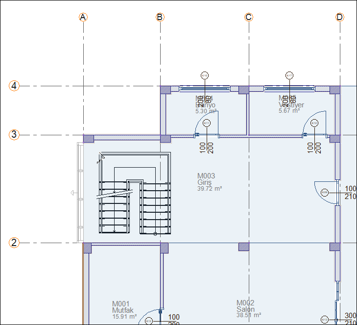
Merdivenin seçin ve obje parçala ikonunu tıklayın. Merdiven iki boyutlu hale gelecektir.

Merdiven boşluğunu mahalde oluşturmak için mahal kenarı komutuna tıklayın.
B-2 aks kesişimine sonra B-3 aks kesişimine tıklayın. Klavyeden Esc tuşuna basarak komuttan çıkın.
Merdiven boşluğunuz oluşacaktır.

Merdivenin dış kenarındaki korkulukları saklayın.
Zemin kat plan sayfasına geçin. Perspektif ekranın sağ üst köşesinde yer alan N butonuna tıklayarak sadece aktif katı perspektif ekranda görebilirsiniz.
Merdiven komutuna tıklayın.
Merdiven toolbarından korkuluk sakla/göster komutunu tıklayın.
Saklamak istediğiniz korkulukların üzerine tıklayın.

Üzerine tıklanan korkuluklar kaybolacaktır.
Merdivenin dış kenarındaki korkuluklar saklandığında klavyeden Esc komutuna basarak komuttan çıkın.

Merdivenin dış kenarındaki korkuluklar görünmeyecektir.

Merdivenler ve korkuluklarını oluşturma tamamlandı.
Uygulanan adımları aşağıdaki videodan takip edebilirsiniz.
Sonraki Konu