Pafta Oluşturma
Bu bölümde yapı bilgi modellemesi kapsamında, proje paftasını oluşturun ve pafta bloklarını yerleştirin.
Pafta oluşturma adlı proje dosyasında önceki adımlar uygulanmıştır. Dosyayı indirip bu başlıkta verilen adımları proje üzerinde uygulayabilirsiniz. |
Yeni pafta oluştur komutuna tıklayın.
Pafta ayarları diyaloğunda kağıt semi olarak serbesti seçip genişlik değeri için 450 mm, yükseklik değeri için 1200 mm girin.
Sınır çizgisi bölümünde göster ve yazdır seçeneklerinin işaretini kaldırın.

Tamam butonuna tıklayın. Paftanız oluşacaktır.

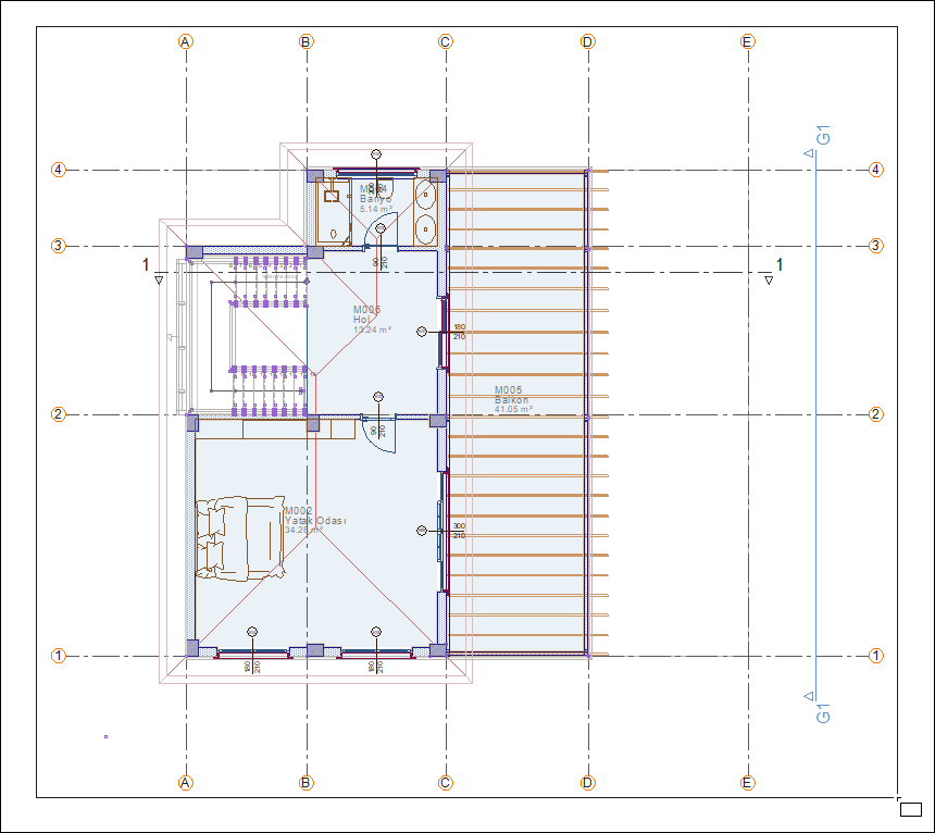
Paftaya yerleştirmek için çizimleri pafta bloğu haline getirin.
Zemin kat sayfasına geçin. Yeni pafta bloğu - dörtgen komutuna tıklayın.
Akslarınızı içine alacak şekilde sol üst köşeye farenin sol tuşu ile tıklayın. Sonra sağ alt köşeye tıklayarak blok sınırınızı oluşturun.

Referans noktası olarak A aksına tıklayın.

Pafta blok ayarları diyaloğu açılacaktır. Blok adına Zemin Kat yazın. Ölçek değerine 50 girin.
Kontur çiz seçeneğinin işaretini kaldırın.
Tamam butonuna tıkladığınız da zemin kat pafta bloğunuz oluşacaktır.

1. kat sayfasına geçin. Yeni pafta bloğu - dörtgen komutuna tıklayın.
Akslarınızı içine alacak şekilde sol üst köşeye farenin sol tuşu ile tıklayın. Sonra sağ alt köşeye tıklayarak blok sınırınızı oluşturun.

Referans noktası olarak A aksına tıklayın.

Pafta blok ayarları diyaloğu açılacaktır. Blok adına 1. Kat yazın. Ölçek değerine 50 girin.
Tamam butonuna tıkladığınız da zemin kat pafta bloğunuz oluşacaktır.

1-1 kesiti ve G1 görünüşünü de pafta bloğu olarak kaydedin.
Pafta sayfasına geçin. Farenin sağ tuşuna tıklayın.
Açılan menüden Pafta bloğu ekle satırını tıklayın.

Pafta blokları diyaloğundan Zemin Katı seçip tamam butonunu tıklayın.

Pafta üzerinde pafta bloğunun öngörüntüsü belirecektir.

Yerleştirmek istediğiniz noktaya farenin sol tuşu ile tıklayın. Zemin kat bloğu yerleşecektir.

Pafta bloğu ekle komutunu tıklayın.
Pafta blokları diyaloğundan 1. katı seçip tamam butonunu tıklayın.
Pafta üzerinde pafta bloğunun öngörüntüsü belirecektir.

Yerleştirmek istediğiniz noktaya farenin sol tuşu ile tıklayın. 1. kat bloğu yerleşecektir.

Kesit ve görünüş bloklarını eklemeden önce paftanızın boyunu uzatmak için pafta ayarları komutuna girin.
Yükseklik değerini 260 cm olarak değiştirin.

Pafta boyu uzayacaktır.

1-1 kesiti ve G1 görünüş pafta bloklarını paftaya ekleyin.
Pafta tamamlandı.

Uygulanan adımları aşağıdaki videodan takip edebilirsiniz.
Sonraki Konu