Kesit ve Görünüş Alın
Bu bölümde yapı bilgi modellemesi kapsamında, mimari tasarımın kesitleri ve görünüşlerini otomatik oluşturun.
Kesit ve görünüş alın adlı proje dosyasında önceki adımlar uygulanmıştır. Dosyayı indirip bu başlıkta verilen adımları proje üzerinde uygulayabilirsiniz.
|
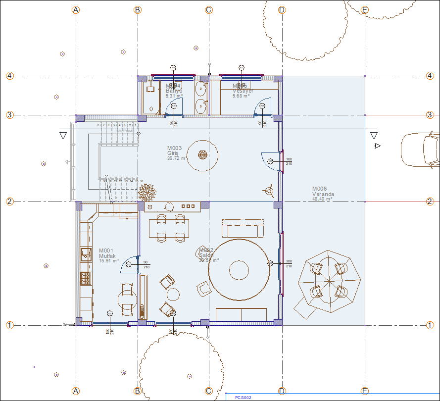
Kesit komutuna tıklayın.
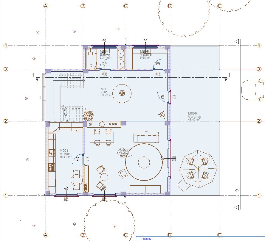
3 aksına paralel merdivenden geçecek şekilde düz bir kesit çizgisi çizin ve enter tuşuna basın.

Bakış yönünü 2 aksına doğru belirleyip farenin sol tuşuna tıklayın.

Kesit çizgisi oluşacaktır.

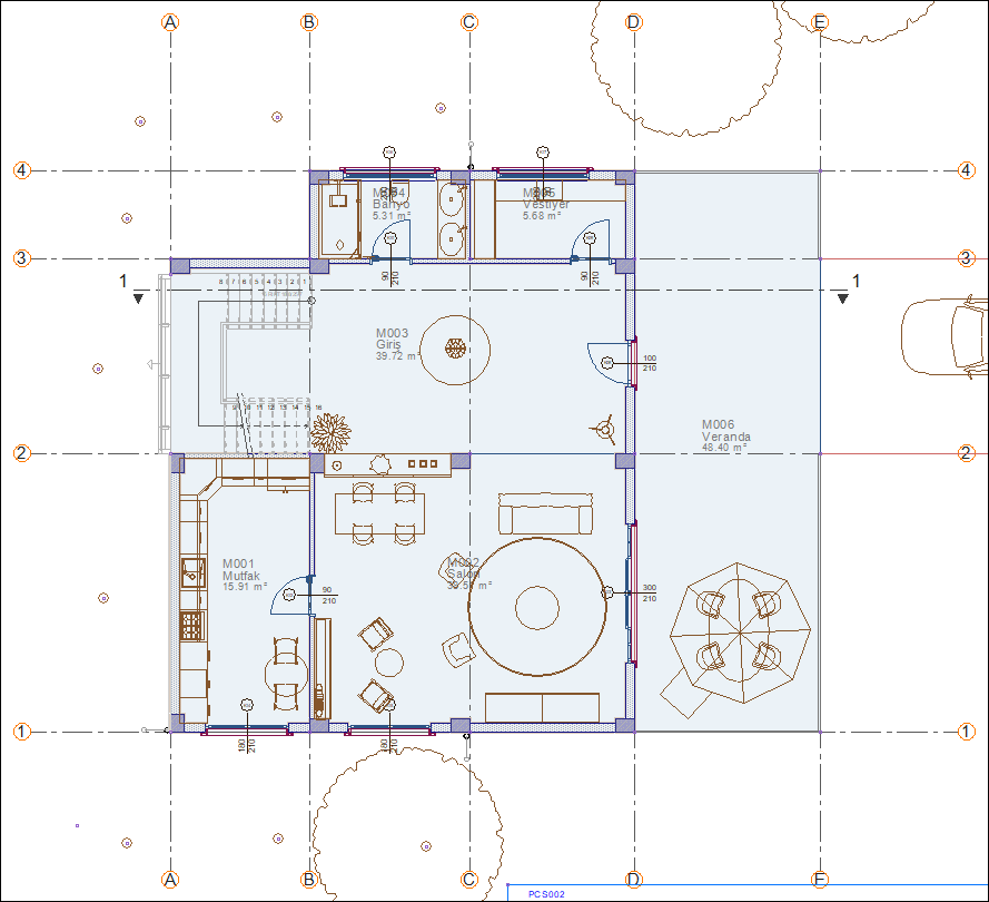
Fareyi kesit çizgisi üzerine getirin ve çift tıklayın.
Kesit ayarları diyaloğu açılacaktır. Oluştur butonuna tıklayın. (Kesit ayarları diyaloğu ile ilgili detaylı bilgiye Kesit/Görünüş Ayarları başlığından ulaşabilirsiniz.)

Kesit program tarafından otomatik oluşturulacaktır.

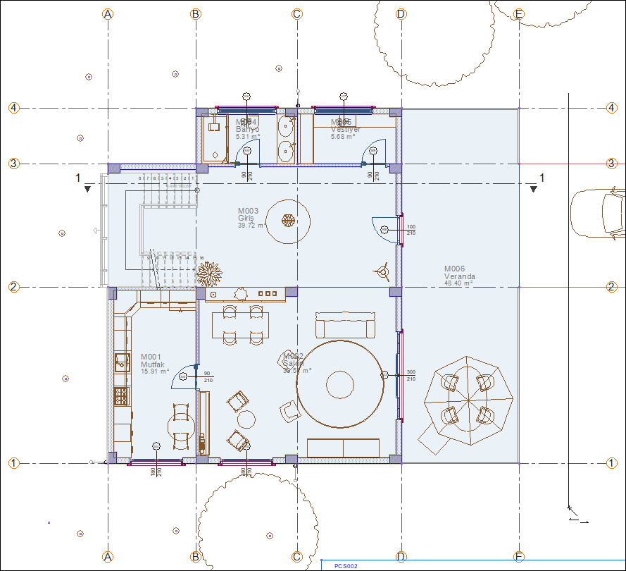
Zemin kata geçin.
Görünüş komutuna tıklayın.
E aksına paralel olacak şekilde düz bir görünüş çizgisi çizin.

Bakış yönünü E aksına doğru belirleyip farenin sol tuşuna tıklayın.

Görünüş çizgisi oluşacaktır.

Fareyi görünüş çizgisi üzerine getirin ve çift tıklayın.
Görünüş ayarları diyaloğu açılacaktır. Oluştur butonuna tıklayın. (Görünüş ayarları diyaloğu ile ilgili detaylı bilgiye Kesit/Görünüş Ayarları başlığından ulaşabilirsiniz.)

Görünüş program tarafından otomatik oluşturulacaktır.

Kesit ve görünüş tamamlandı.
Uygulanan adımları aşağıdaki videodan takip edebilirsiniz.
Sonraki Konu