İç ve Dış Ölçülendirme
Bu bölümde yapı bilgi modellemesi kapsamında, projede iç ve dış ölçülendirme yapın.
İç ve dış ölçülendirme adlı proje dosyasında önceki adımlar uygulanmıştır. Dosyayı indirip bu başlıkta verilen adımları proje üzerinde uygulayabilirsiniz. |
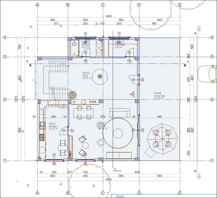
Dış ölçülendirme komutuna tıklayın.
Ölçülendirilecek dış cephe objelerini seçmek pencere yöntemini kullanın.

Objeleri seçin.

Farenin sağ tuşuna tıklayarak seçim işlemini tamamlayın.
Ölçülerin hangi duvara paralel yerleşeceğini farenizi o tarafa götürerek belirleyin.

Farenin sol tuşuna tıklayın. Dış ölçü oluşacaktır.

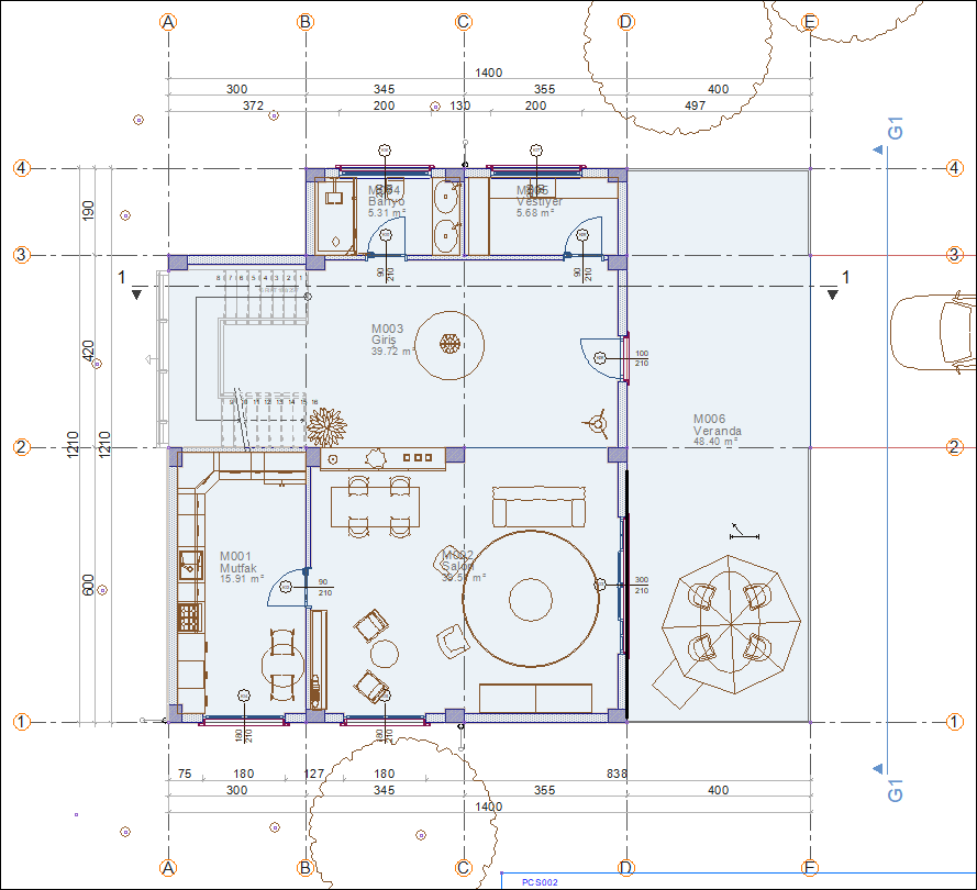
Diğer cepheye geçin. Ölçülendirilecek objeleri seçin.

Farenin sağ tuşuna tıklayarak seçim işlemini tamamlayın.
Ölçülerin hangi duvara paralel yerleşeceğini farenizi o tarafa götürerek belirleyin.

Farenin sol tuşuna tıklayın. Dış ölçü oluşacaktır.
Diğer cepheye geçin. Ölçülendirilecek objeleri seçin.

Farenin sağ tuşuna tıklayarak seçim işlemini tamamlayın.
Ölçülerin hangi duvara paralel yerleşeceğini farenizi o tarafa götürerek belirleyin.

Farenin sol tuşuna tıklayın. Dış ölçü oluşacaktır.
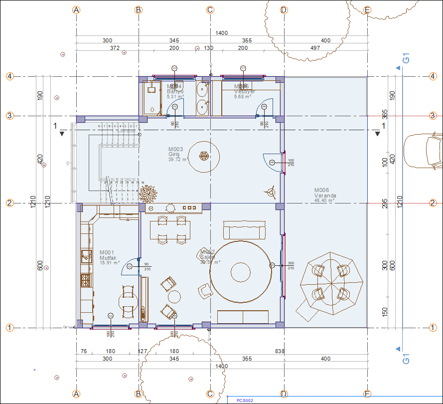
Diğer cepheye geçin. Ölçülendirilecek objeleri seçin.

Farenin sağ tuşuna tıklayarak seçim işlemini tamamlayın.
Ölçülerin hangi duvara paralel yerleşeceğini farenizi o tarafa götürerek belirleyin.

Klavyeden Esc tuşuna basıp komuttan çıkın.
Dış ölçüler tamamlanacaktır.

Farenizi son yaptığınız dış ölçü üzerine getirip ve çift tıklayın.
Ölçü ayarları diyaloğu açılacaktır. Ofset değerini 500cm olarak girin.

Tamam butonunu tıklayarak diyaloğu kapatın.
Dış ölçünün yeri değişecektir.

İç ölçülendirme komutunu tıklayın.
1 aksına paralel iç ölçü çizginizi geçirin.

İç ölçü oluşacaktır.

Ölçülendirmek istediğiniz alanlardan geçecek şekilde (C aksına paralel) ölçü çizginizi çizin.

İç ölçü oluşacaktır.

Klavyeden Esc tuşuna basıp komuttan çıkın.
Uygulanan adımları aşağıdaki videodan takip edebilirsiniz.
Sonraki Konu