Çatı Modelleme
Bu bölümde yapı bilgi modellemesi kapsamında, mimari tasarımın çatısını modelleyin.
Çatı modelleme adlı proje dosyasında önceki adımlar uygulanmıştır. Dosyayı indirip bu başlıkta verilen adımları proje üzerinde uygulayabilirsiniz. |
Çatı komutuna girin.
Çatı toolbarında çatı eğimi için 30 değerini, sacak için 0.5 değerini girin.

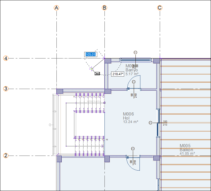
A-1 aks kesişimini sonra C-1 aks kesişimini tıklayın.

C-4 aks kesişimini sonra B-4 aks kesişimini tıklayın.

B-3 aks kesişimini sonra A-3 aks kesişimini tıklayın.

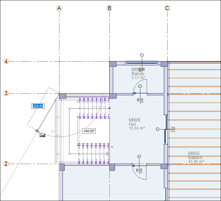
A -1 aks kesişimine tıklayın.

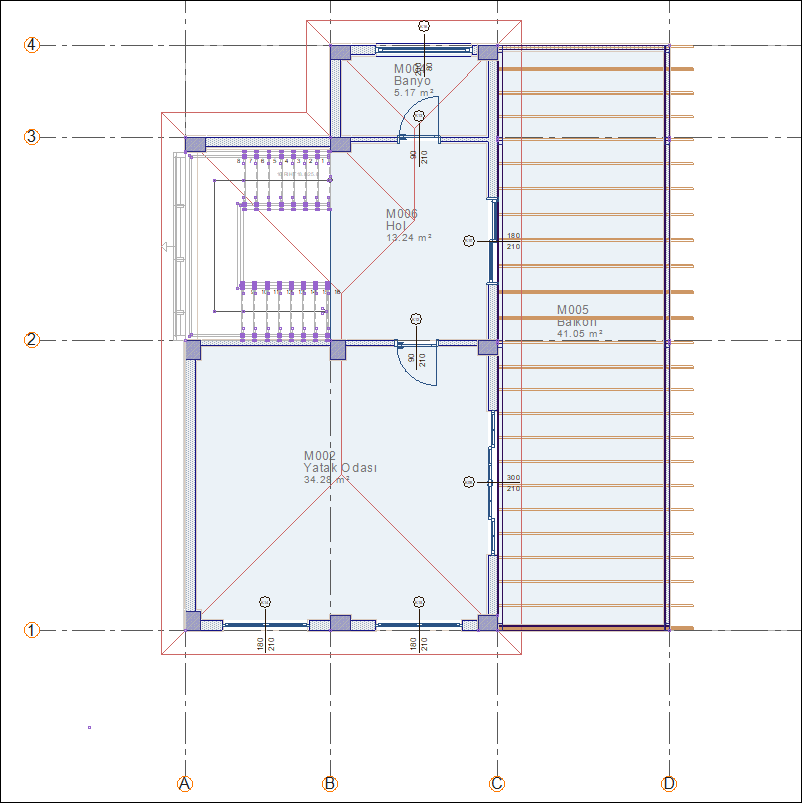
Çatınız oluşacaktır.

Çatıyla çelik kiriş ve aşıkların çakışmasını önlemek için çelik elemanların yükseklik ve kotlarını değiştirin.

Çelik kolonları seçip bir tanesinin üzerine çift tıklayın. Çelik kolon ayarları diyaloğu açılacaktır.
Yükseklik değerini 270 cm girin. Tamam butonuna tıklayarak diyaloğu kapatın.

Çelik kirişleri seçip bir tanesinin üzerine çift tıklayın. Çelik kiriş ayarları diyaloğu açılacaktır.
Kot değerini -30 cm girin. Tamam butonuna tıklayarak diyaloğu kapatın.

Çelik aşıkların kotu kirişlerle beraber düşecek, çatı ve çelik elemanlar çakışmayacaktır.

Çatı tamamlandı.
Uygulanan adımları aşağıdaki videodan takip edebilirsiniz.
Sonraki Konu