Kolon Betonarme Tasarım
Kolon betonarme tasarım sonuçları ve kolonlara ilişkin yetersizlik durumları Kolon Betonarme diyaloğunda gösterilir. Kolon betonarme diyaloğunda, kolon enine ve boyuna donatıları, analiz sonucunda hesaplanan iç kuvvetler, TBDY 'e ilişkin artırılmış iç kuvvetler, kapasite oranları, kolon-kiriş birleşim bölgesi kesme güvenliği, güçlü kolon kontrolü sonuçları verilir. Kolon donatıları Kolon Betonarme diyaloğunda değiştirilir ve sabitlenir.
Kolon Betonarme Diyaloğunun Yeri
Analizden sonra, ribbon menü Analiz ve Tasarım sekmesi Betonarme Tasarım başlığı altından Kolon Donatıları komutuna tıklayarak ulaşabilirsiniz.

Kolon Betonarme Diyaloğu Genel Özellikler
Özet Bilgi İmlecin bulunduğu satıra ilişkin özet bilgi Katı, Pozu formatında diyaloğun adı kısmında verilmektedir. ![]() Örneğin BODRUM, S1, minimum alfai= 1.000 |
Shift tuşu kullanımı Bu sekmede Shift tuşu ile birden fazla satır seçebilir, değeri değiştirilmeye açık herhangi bir hücreye çift tıklayarak değer girebilir ve o değerin seçili tüm satırlar için uygulanmasını olmasını sağlayabilirsiniz. |
Ctrl tuşu kullanımı Ctrl tuşu ise arada kalan satırları tek tek seçer. |
Donatı hesap makinesi ![]() Seçilen çap ve aralık için donatı miktarını alan cinsinden hesaplar. |
Mantoları göster ![]() Güçlendirme projeleri için manto uygulaması yapılmış elemanları listeler. |
Seç ![]() İmlecin bulunduğu satırdaki objeyi seçer. Betonarme diyalog kapatıldığında seçilen eleman için işlem yapabilirsiniz. |
Tüm Katlar ![]() Kirişleri tüm kat boyunca ekranda listeler. |
Filtre ![]() Belirli koşullar tanımlayarak sadece o koşulu sağlayan elemanları süzmek için kullanılır. |
Önceki ![]() İmleç bir önceki satıra gider. |
Sonraki ![]() İmleç bir sonraki satıra gider. |
Betonarme ![]() Eleman betonarmesini tekrar yapar. Betonarme ile donatıya bağlı yönetmelik hesapları da tekrar yapılır. Önemli değişikliklerde betonarme yerine yapı analizini tekrarlamanız daha uygun olabilir. |
Tamam ![]() Yapılan değişiklikleri kayıt ederek diyaloğu kapatır. |
İptal ![]() Yapılan değişiklikleri kayıt etmeden diyaloğu kapatır. |
Filtreleme Olanakları
Filtre butonu tıklandığında Donatı Filtre diyaloğu açılır. Listeden istenen koşullar seçilerek Ekle butonu tıklanır.
Kolon Betonarme diyaloğunda seçilen koşulu sağlayan elemanlar filtrelenir.

Filtre | Açıklaması |
|---|---|
OLUMSUZ | Olumsuz kolonlar |
BİRLEŞİM | Birleşimleri güvensiz kolonlar |
ZYF (=…) | Zayıf kolonlar |
PUR (=…) | Pursantaj (1000 ile çarpılmış değer yazılacak) |
ACFCK(=…) | Kolon uç bölgesi brüt enkesit alanı * Beton karakteristik silindir basınç dayanımı |
B (=…) | Kolon B boyutu |
H (=…) | Kolon H boyutu |
KISA | Kısa kolonlar (Kısa kolon tanımı kapsamına giren kolonlar) |
VD(=…) | Tasarım kesme kuvveti |
ASWS(=…) | Etriye alanı |
SGPUR(=…) | Statikçe gerekli pursantaj (1000 ile çarpılmış değer yazılacak) |
USTMAF(=…) | Üst ucu mafsal kolonlar |
ALTMAF(=…) | Alt ucu mafsal kolonlar |
KOTI(=…) | Kolon alt kotu |
KOTJ(=…) | Kolon üst kotu |
TANIMLI | Tanımlı kesit parametreleri tanımlanmış kolonlar |
NMAX | Maksimum normal kuvvete göre filtreleme |
NMAXDEP | Sadece depremli durumlarda oluşan maksimum normal kuvveti göre filtreleme |
R | Kapasite oranı sağlamayan kolonlar |
Diyalogda Çıkan Olumsuzluklar ve Çözümleri
Analiz sonrasında kolon betonarme diyalogunda kolon isminin olduğu sütunda bazı uyarılar kısaltılmış simge halinde verilir. Bu uyarılar, yönetmelik açısından bir olumsuzluğu bildirir.
Olumsuzluk | Açıklaması |
|---|---|
B | Kolon-Kiriş Birleşim Kesme Güvenliği sağlamıyor. Kiriş genişliği veya kolonun ilgili yöndeki boyutunu artırmak çözüm olabilir. |
K | Kesme Güvenliği sağlamıyor. Kolon boyutları yetersiz gelmektedir. |
F | Kolon sürtünme kesmesi dayanımı sağlanmıyor. Kolon boyuna donatıları artırmak veya Kolon boyutlarını artırmak çözüm olabilir. |
E | Kolon Maksimum normal kuvvet kontrolü sağlamıyor. |
M | Maksimum pursantaj değeri aşılmıştır. Kolon boyutları yetersiz gelmektedir. |
ab | Kolon TDY Madde 7.4.3.1'i sağlamıyor demektir. Kolon küçük boyutunu arttırmak çözüm olabilir. |
As(-) | Yetersiz donatı durumu. Donatı seçiminde yeter büyüklükte donatı çapı işaretlenmemiş olabilir. |
s | Enine donatı (etriye) aralığı aralığının yetersiz olma durumu. |
Z | Kirişsiz döşeme veya kiriş radyede, zımbalama dayanımını aşılıyor demektir. Plak kalınlığını arttırmak veya başlık plağı teşkil etmek çözüm olabilir. |
R | Eksenel kuvvet ve iki eksenli eğime etkisinde kapasitesi oranı 1'den büyük olduğu durumda verilmektedir. |
Kolonlar Sekmesi

Özellikler |
|---|
DS ![]() Donatı sabitleme sütunudur. İşaretli ise donatı sabitlenir. Kolon donatılarında değişiklik yapıldığında DS otomatik olarak işaretlenir ve betonarme yapıldığında kolon donatısı da sabit kalır. DS işaretli değilse, betonarme yapıldığında, kolon donatıları, donatı seçim koşullarına göre tekrar belirlenir. |
Poz ![]() Kolonun plandaki adıdır. (S1, S101, S10 vb) Olumsuzluk durumunda ismin yanında olumsuzlukla ilgili terim eklenir. S101(M) gibi.. |
Kat ![]() Kolonun bulunduğu katın adıdır. |
B, H ![]() Kolonun boyutlarıdır. B ve H hücrelerinde çift tıklayarak boyutları değiştirme imkanınız vardır. Boyut değiştirildiğinde değiştirilen boyutlara göre kolon donatı hesabı o kolon için yapılır. |
Majör ![]() Kolonun majör yönünde (y ekseni doğrultusunda) yerleştirilen donatının çap ve adet olarak değeridir. |
Minör ![]() Kolonun minör yönünde (x ekseni doğrultusunda) yerleştirilen donatının çap ve adet olarak değeridir. |
Enine ![]() Kolon etriyesinin sırasıyla etriye çapı, orta, sıklaştırma ve birleşim bölgesi aralığıdır. |
Purs ![]() Toplam boyuna donatı miktarının kolon alanına yüzde orandır. (Purs = 100* ToplamAs/KolonAlanı) |
Kap. Oran ![]() Eksenel kuvvet ve iki eksenli eğilme etkisi altındaki kolonun hesaplanan kapasite oranın ifade etmektedir. |
Zk ![]() İşaretli ise kolonların i/j uçlarının kirişlerden daha güçlü olma şartına uymadığını ve zayıf kolonlar olduğunu gösterir. |
P ![]() Bu seçeneği ile alfas oranını bulurken herhangi bir kolonu perdeymiş gibi kabul ederek, kolon kesme kuvvetini perde kesme kuvveti olarak kullanılmasını sağlayabilirsiniz. Özellikle kolları perde gibi olan büyük poligon kolonlarda bu seçeneği kullanmak isteyebilirsiniz. |
Kesit Hücresi (Lif) Tasarımı Sekmesi

Özellikler |
|---|
Öngörüntü ve lejant ![]() Kesit hücresi öngörüntüsü ve renklerin neleri ifade ettikleri gösterilir. |
DGT için malzeme modeli ![]() Kesit hücreleri ve donatıları TS500 de tanımlanan beton ve donatı malzeme modeli kriterlerine göre gösterimini sağlamaktadır. |
ŞGDT için malzeme modeli ![]() Kesit hücreleri ve donatıları TBDY de tanımlanan beton ve donatı malzeme modeli için ŞGDT kriterlerine göre gösterimini sağlamaktadır. |
Kuvvetler - Donatı Sekmesi

Özellikler |
|---|
Kuvvetler tablosu ![]() Yük: İlgili yükleme veya yük kombinasyonlarının adıdır. |
Tasarım sonuçları ![]() Analiz sonrasında yönetmelik koşulları uygulanmış, bu nedenle değişime uğramış ve dizayna giden uç kuvvetlerini gösterir. Ayrıca kullanılan değerler kalınlaştırılarak gösterilir. Uç kuvvetleri eleman lokal eksenlerinde hesaplanan değerlerdir. |
Ham sonuçlar ![]() Analiz sonrasında yönetmelik koşulları uygulanmamış ham uç kuvvetlerini gösterir. Uç kuvvetleri eleman lokal eksenlerindeki etkilerdir. |
Global sonuçlar ![]() Analiz sonrasında yönetmelik koşulları uygulanmamış uç kuvvetlerin global koordinatlardaki değerlerdir. |
Sonuçları ayrı ayrı göster ![]() 4 modal analiz durumu için her deprem yüklemeli kombinsyondan 4 farklı sonuç elde edilir. Her modal durum için elde edilen değerlerin tek tek gösterilmesi istenirse bu seçenek işaretlenir. |
En büyük sonuçları göster ![]() 4 ayrı modal durum için her yük kombinasyonundan elde edilen 4 farklı sonucun en büyük değerleri tabloda gösterilir. |
Malzeme özellikleri ![]() Statik malzeme: Döşemenin statik malzemesi gösterilir. |
Eğilme tasarımı ![]() Kombinasyon: Kolon boyuna donatı hesabında kullanılan kombinasyonun adıdır. Tasarım konumu: Uygulanabilir her faktörlü yük kombinasyonu için en elverişsiz koşulu üreten konum. |
Kesme kuvveti - Majör/Minör ![]() Major: Majör aks doğrultusunu belirtir. |
Kapasite Tasarımı Sekmesi

Özellikler |
|---|
Kapasite tablosu ![]() Kombinasyon: İlgili kombinasyon gösterilir. |
Mevcut donatı alanı ![]() i ucu, açıklık ve j ucu için mevcut donatı alan değerleri gösterilir. |
Kapasite Diyagramları Sekmesi

Özellikler |
|---|
2 ekseninde eğilme diyagramı ![]() |
3 ekseninde eğilme diyagramı ![]() |
Yükleme durumu ![]() İncelenmek istenen kapasite diyagramlarına ilişkin kombinasyon listeden seçilebilir. |
DGT ![]() Kapasite eğrisinin TS500 de tanımlanan beton ve donatı malzeme modeli kriterlerine uyularak elde edilmesini sağlamaktadır. |
ŞGDT ![]() Kapasite eğrisinin TBDY de tanımlanan beton ve donatı malzeme modeli için ŞGDT kriterlerine uyularak elde edilmesini sağlamaktadır. |
Moment - Eğrilik Sekmesi

Özellikler |
|---|
Şematik çizim ![]() |
Moment - eğrilik diyagramı ![]() |
Göçme öncesi eğrilik = nihai göçme eğrilik ![]() Bu seçenek işaretlendiğinde performans düzeylerinin belirlenmesi için kullanılan plastik dönme sınır değerlerin hesabında beton ve donatı malzemesinin maksimum kopma birim şekildeğiştirme değeri kullanılır. |
Caltrans idealleştirilmiş modeli ![]() İşaretlenmesi halinde Moment-Eğrilik grafiği idealleştirilir. Akma momentinin üzerinden geçen eğimli bir doğru ile kesişen ve moment eğrilik grafiğinin arasındaki alanları eşitleyecek yatay bir doğrunun çizilmesi ile elde edilen bir moment eğrilik ilişkisidir. |
Lif en yüksek gerilmeye ulaştığında dur ![]() İşaretlenmesi halinde moment eğrilik grafiği beton veya donatı liflerinden birinin en yüksek gerilmeye ulaştığı noktaya kadar çizilir. Bu nokta elemanın taşıma gücüne ve ulaşabileceği en yüksek eğriliğe denktir. |
DGT ![]() Moment eğriliğin TS500 de tanımlanan beton ve donatı malzeme modeli kriterlerine uyularak elde edilmesini sağlamaktadır. |
ŞGDT ![]() Moment eğriliğin TBDY de tanımlanan beton ve donatı malzeme modeli için ŞGDT kriterlerine uyularak elde edilmesini sağlamaktadır. |
Nokta sayısı ![]() Momet eğrilik grafiğinin kaç noktadan oluştuğunu belirlemek için kullanılmaktadır. |
Açı ![]() Moment eğrilik ilişkisinin elde edildiği tarafsız eksen açısını göstermektedir. Yukarıdaki görselde kırmızı ok ile belirtilmiştir. |
Eksenel kuvvet ![]() Moment eğrilik ilişkisinin hangi eksenel kuvvet etkisi altında çizildiğini göstermektedir. |
Basınç sınırı ![]() Belirlenen malzeme modeli moment-normal kuvvet etkileşiminde kesitin alabileceği en büyük eksenel basınç kuvvetidir. |
Çekme sınırı ![]() Belirlenen malzeme modeli moment-normal kuvvet etkileşiminde kesitin alabileceği en büyük eksenel çekme kuvvetidir. |
Gerilme/şekil değiştirme çizgileri ![]() Moment eğrilik ilişkisinin her bir adımında kesitteli gerilme ve şekil değiştirme durumunun renklendirilmiş bir şekilde gösterir. |
Rapor oluştur ![]() Moment Eğrilik detaylı raporunu oluşturur. |
Güçlü Kolon Kontrolleri Sekmesi

Özellikler |
|---|
Kontrol tablo ![]() Kombinasyon: İlgili kombinasyon gösterilir.
|
![]() Nd: Kolon taşıma gücü momentleri hesabında, depremin yönü ile uyumlu olarak bu momentleri en küçük yapan eksenel kuvveti değeridir. Düğüm noktasına birleşen kolonların birinde Nd ≥ 0.10 Ac fck olması ve sistemde (Mra+Mrü) ≥ 1.2( Mri + Mrj) koşulunu sağlamayan kolonların olması durumunda, göz önüne alınan deprem doğrultusunda binanın herhangi i’ inci bir katında, |
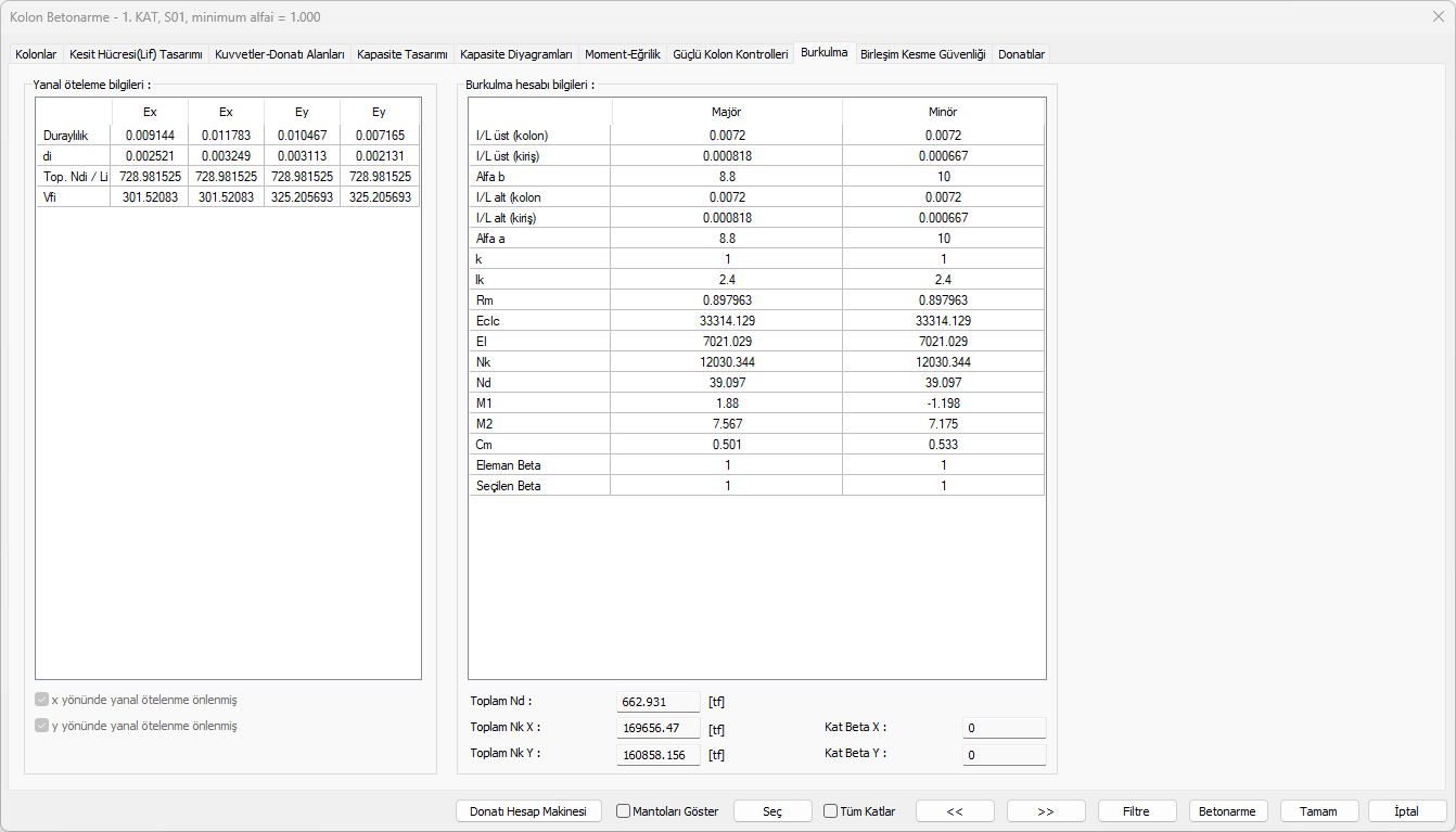
Burulma Sekmesi
Kolon burkulma hesapları Şubat 2000 TS500 de açıklanan Moment Büyütme Yöntemine göre yapılmaktadır. Bu sekmede hesap ile ayrıntı bilgiler verilmektedir.

Özellikler |
|---|
Yanal öteleme bilgileri ![]() Duraylılık: 1.5 di [toplam(Ndi/li)/vfi] <= 0.05 Yukarıdaki koşul sağlanıyorsa, o katta yeterli rijitlik bulunduğu ve yanal ötelenmenin önlenmiş olduğu varsayılır. Aksi durumda yanal ötelenmenin önlenmemiş olduğu varsayılır. |
Burkulma hesabı bilgileri ![]() |
![]() Toplam Nd: Kattaki tüm kolonlara etkiyen toplam eksenel yüktür. İncelenen kolonu en elverişsiz yapan yük kombinasyonu dikkatte alınır. |
Birleşim Kesme Güvenliği Sekmesi

Özellikler |
|---|
Kolon ![]() İncelenen kolonun planda görünen adıdır. |
Yön ![]() Yatay x ve dikey y olarak iki farklı yönü belirtmek üzere, her bir yönde %5 eksantriste ile uygulanan deprem yüklemeleri birer satır olarak görünür. EX1, EX2; x ekseni yönünde + ve - %5 eksantristeli deprem yüklemelerini, EY1, EY2 ise; Y ekseni yönünde + ve - %5 eksantristeli deprem yüklemelerini belirtir. Kolon-kiriş kesme güvenliği hesapları 2 yönde, 4 deprem yüklemesi için yapılır ve detaylar listelenir. |
Kirişler ![]() İlgili yönde kolona bağlı olan kirişlerin listesi verilir. Örneğin EX1, EX2 satırlarında görünen kirişler, x yönünde kolona bağlı olan kirişlerdir. Sırasıyla 1. kiriş kolonun solunda, 2. kiriş ise kolonun sağında bulunmaktadır. Benzer şekilde EY1 veya EY2 satırlarında görünen kirişler, y yönünde kolona bağlı olan kirişlerdir ve sırasıyla 1. satırda bulunan kiriş, kolonun altından bağlanan, 2. satırda bulunan kiriş ise kolonun üstünden bağlanan kirişlerdir. |
As1(+)/As1(-), As2(0+)/As2(-) ![]() Kirişin sol veya uçlarında, bakılan yöne göre, kesitin altında veya üsttünde bulunan donatıların cm2 cinsinden değerleridir. |
Vkol ![]() Her bir yön ve yükleme için ayrı ayrı olmak üzere, kontrolü yapılan birleşimin üstünde ve altında hesaplanan kolon kesme kuvvetlerinden küçük olanıdır. |
Ve ![]() fyk çelik akma dayanımı olmak üzere; Ve= 1.25fyk(As1 + As2) - Vkol formülünden hesaplanır. |
Kuşatılma ![]() Kirişlerin kolona dört taraftan birleşmesi, her bir kirişin genişliğinin kolon genişliğinin 3/4'ünden daha az olmaması durumunda birleşim, kuşatılmış birleşim, diğer durumlarda ise birleşim, kuşatılmamış birleşim olarak tanımlanır. Birleşimin kuşatılmış veya kuşatılmamış olması, birleşimin güvensizliğini belirtmez, maksimum kesme kuvveti değeri Vmax'ın hangi formülle bulunacağını belirler. |
bj ![]() Kontrolün yapıldığı yönde, birleşim bölgesine saplanan kirişin, düşey orta ekseninden itibaren kolon kenarlarına olan uzaklıklardan küçük olanının iki katıdır. (Bakınız : TBDY Şekil 7.10) |
h ![]() Kontrolün yapıldığı yöne paralel kolonun boyutudur. |
Vmax, Ve<Vmax ![]() fcd, beton karakteristik hesap dayanımı olmak üzere; |
Donatılar Sekmesi

Özellikler |
|---|
3 boyutlu görüntü ![]() |
Kolonlar ![]() Seçenek işaretli ise kolon donatıları ekranda gösterilir. |
Kirişler ![]() Seçenek işaretli ise kiriş donatıları ekranda gösterilir. |
Perdeler ![]() Seçenek işaretli ise perde donatıları ekranda gösterilir. |
Boyuna donatılar ![]() Seçenek işaretli elemanlara ait boyuna donatılar ekranda gösterilir. |
Enine donatılar ![]() Seçenek işaretli elemanlara ait enine donatılar ekranda gösterilir. |
Çapa göre renk ![]() ![]() Seçenek işaretli ise farklı çaplardaki donatılar farklı renkte gösterilir. Hangi rengin hangi çapı temsil ettiği ekranın sağında yer almaktadır. Seçenek kapalı ise donatıların tamamı kırmızı olarak gösterilir. |
Sonraki Konu
İlgili Konular













































































