Pencere Seçim
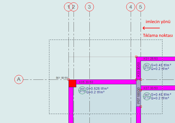
Çizim alanında boş bir yere tıklanıp, imleç soldan sağa hareket ettirildiğinde sadece dikdörtgen içinde kalan objeler, imleci sağdan sola hareket ettirildiğinde ise hem dikdörtgen içinde kalan objeler hem de imlecin üzerinden geçtiği tüm objeler seçilir. Üstelik işlem sırasında shift tuşu basılı tutularak da tam tersi uygulanır.


Sonraki Konu