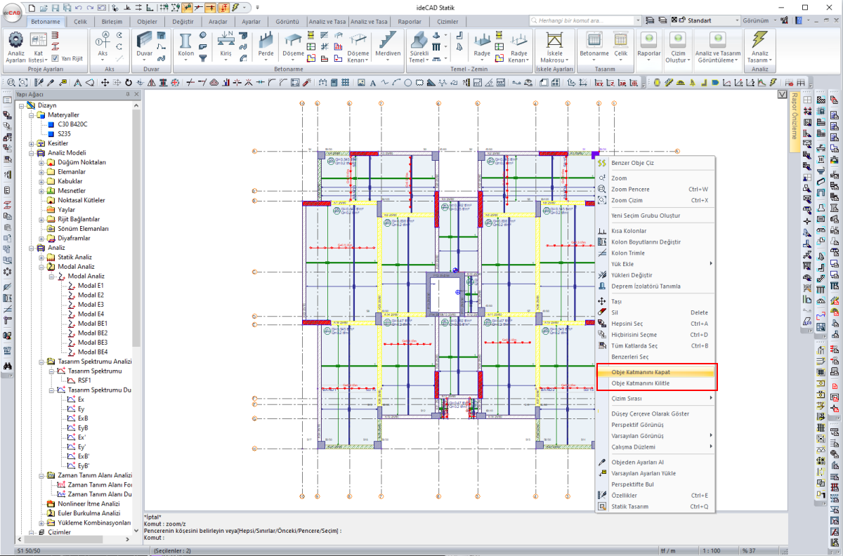
Obje Katmanı Kapat/Kilitle
Katman ayarlarına girmeden, bir obje seçilip, üzerinde farenin sağ tuşuna basılarak açılan menüden obje katmanı, tek tıklama ile kapanır ya da kilitlenir.
İşlem adımları:
Objeyi seçiniz.
Fare imlecini objenin üstünde getirdikten sonra sağ tuşa basınız. (Sağ tuş menü kullanımı aktif değilse Ctrl'ye basılı tutarak objenin üstünde getirdikten sonra sağ tuşa basınız. )
Açılan menüden Obje Katmanını Kilitle veya Obje Katmanını Kapat satırını tıklayınız.

Sonraki Konu