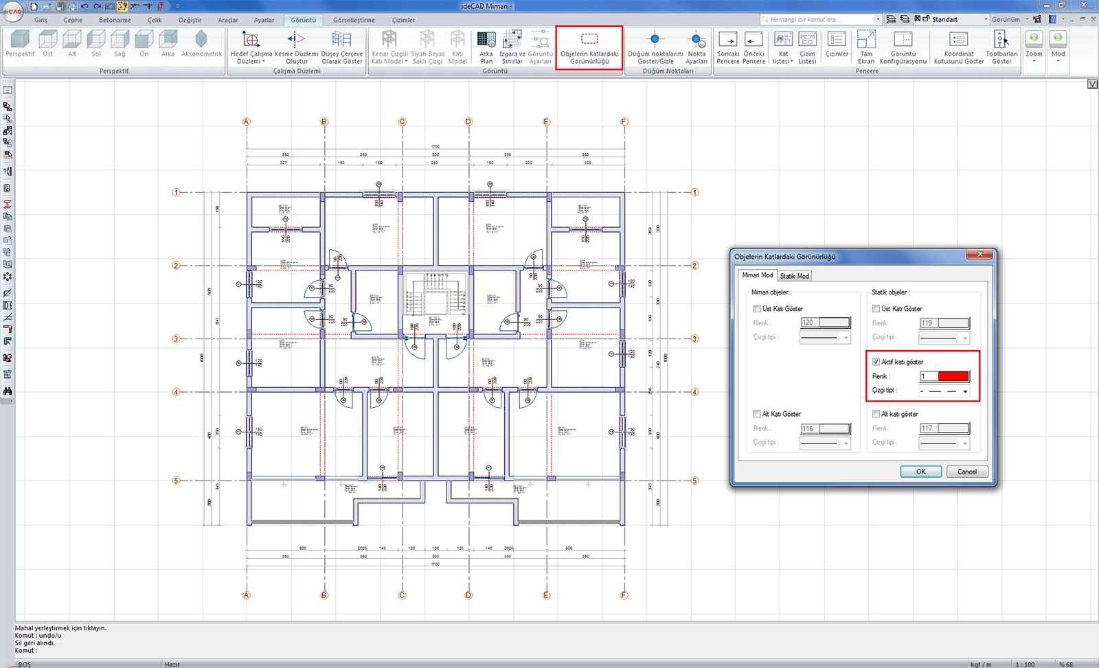
Objelerin Aktif Katta Görünürlüğü
Menüde Görüntü bölümünde bulunan "Objelerin katlardaki görünürlüğü" özelliği ile aktif katta, üst ve alt kattaki mimari ve statik objelerin görünüp görünmeyeceği, bununla birlikte görünümün hangi çizgi tipleriyle yapılacağı ayarlanır.
Kılavuz çizgilerin düğüm noktalarından yakalayıp, alt katı ya da üst katı referans alarak çizimler tamamlanır.
Örneğin; alt katı planındayken alttaki katın duvarlarını görerek çatı çizilir ya da mimari kat planındayken kalıp planı modunu görüp tasarımlara ona göre yön verilir.


Sonraki Konu