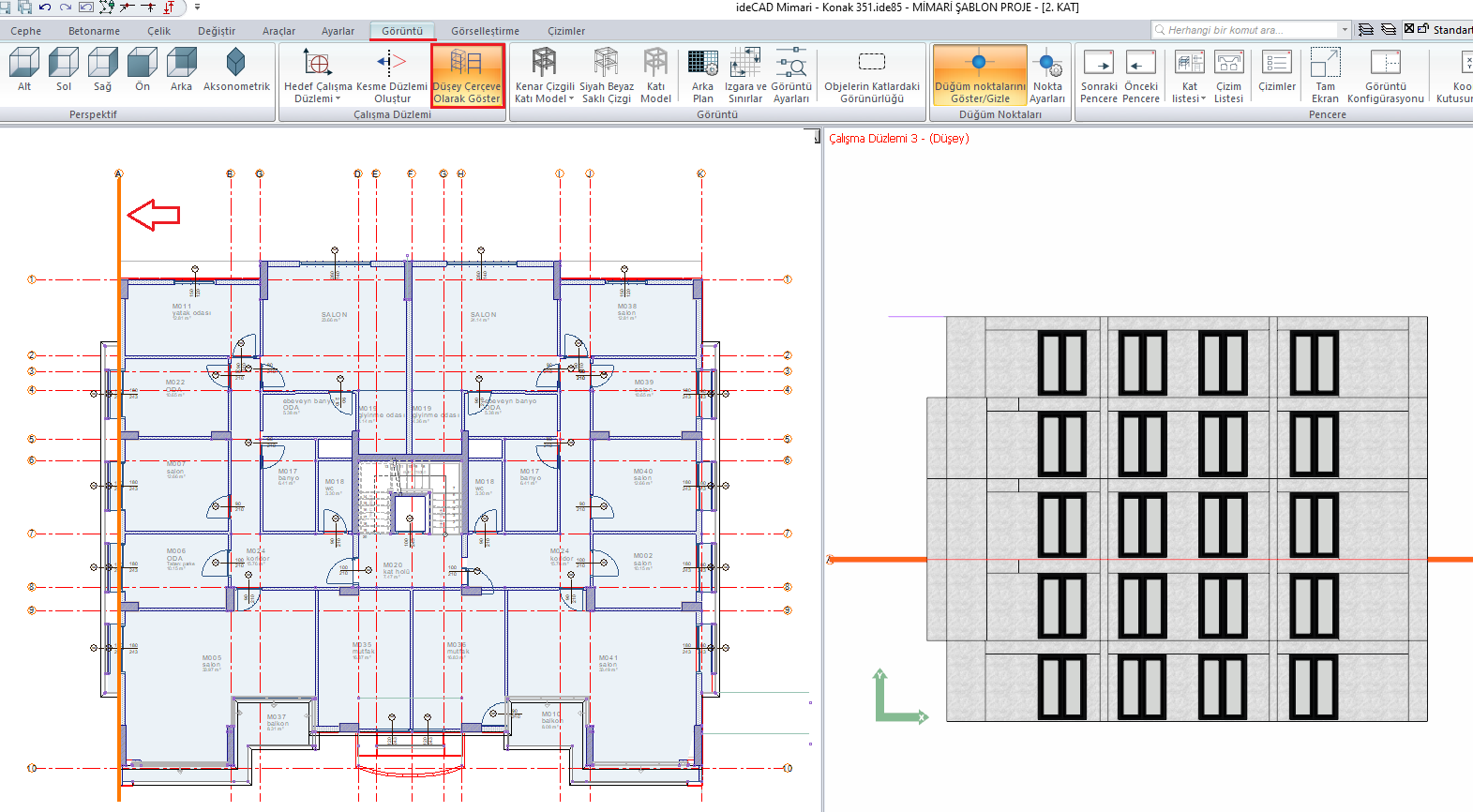
Düşey Düzlem (çerçeve) Görüntüsü
"Düşey çerçeve göster" komutu ile bir aks tıklanarak o aks üzerinde bulunan elemanların düşey düzlem(çerçeve) görüntüsü, perspektifte katı model olarak elde edilir.
İşlem adımları:
Görüntü/Düşey çerçeve göster komutunu tıklayınız.
Bir aks seçiniz.

Sonraki Konu