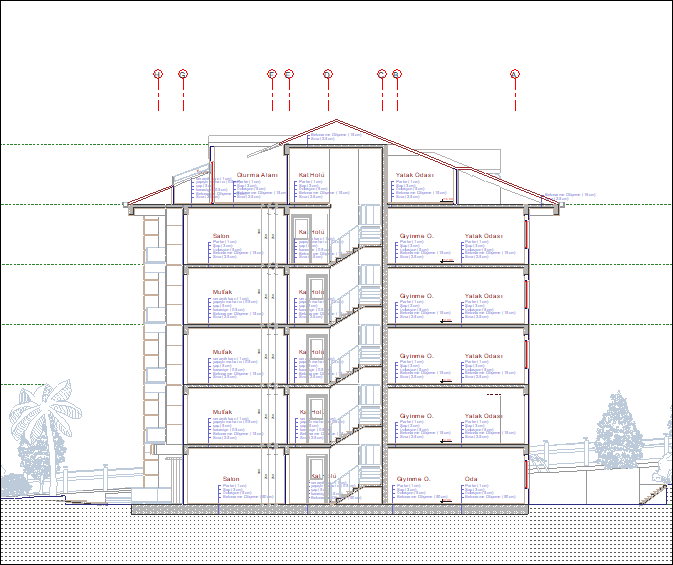
Kesit Görünümü
Kesit pencerelerinde projede oluşturulmuş kesitler görüntülenir. Kesit hattı üzerindeki objeler kesilen, bakış doğrultusundaki diğer objeler ise görünendir. Kesit oluşturularak kat planlarında çizilen 3 boyutlu objeler paralel projeksiyonlar 2 boyutlu çizgilere ve taramalara dönüştürülür. Çizilen kesit hattı kadar kesit penceresi oluşturulabilir.

Sonraki Konu
