Yük Modelini İnceleyin
Analiz modeli kontrol edilmiş “Yük Modelini İnceleyin” dosyasını açarak ve mimari ile uyumlu ve otomatik tanımlanmış yük modelini inceleyebilirsiniz. |
Analiz modeli incelenen yapı bilgi modelinin yük modeli incelenir.
Ribbon menüde Analiz ve Tasarım Görüntüleme sekmesine tıklayın.
Yükler bölümünden, Duvar Yükleri komutuna tıklayın.

Görselleştirme Penceresinde mimari ile uyumlu, statik duvar yükleri oluşur.

Görselleştirme Penceresinde, Sağ Tuş Menü 'yü açın.
Kenar Çizgili Katı Model satırına tıklayın.
Duvarlar ve betonarme elemanlar görülecektir.
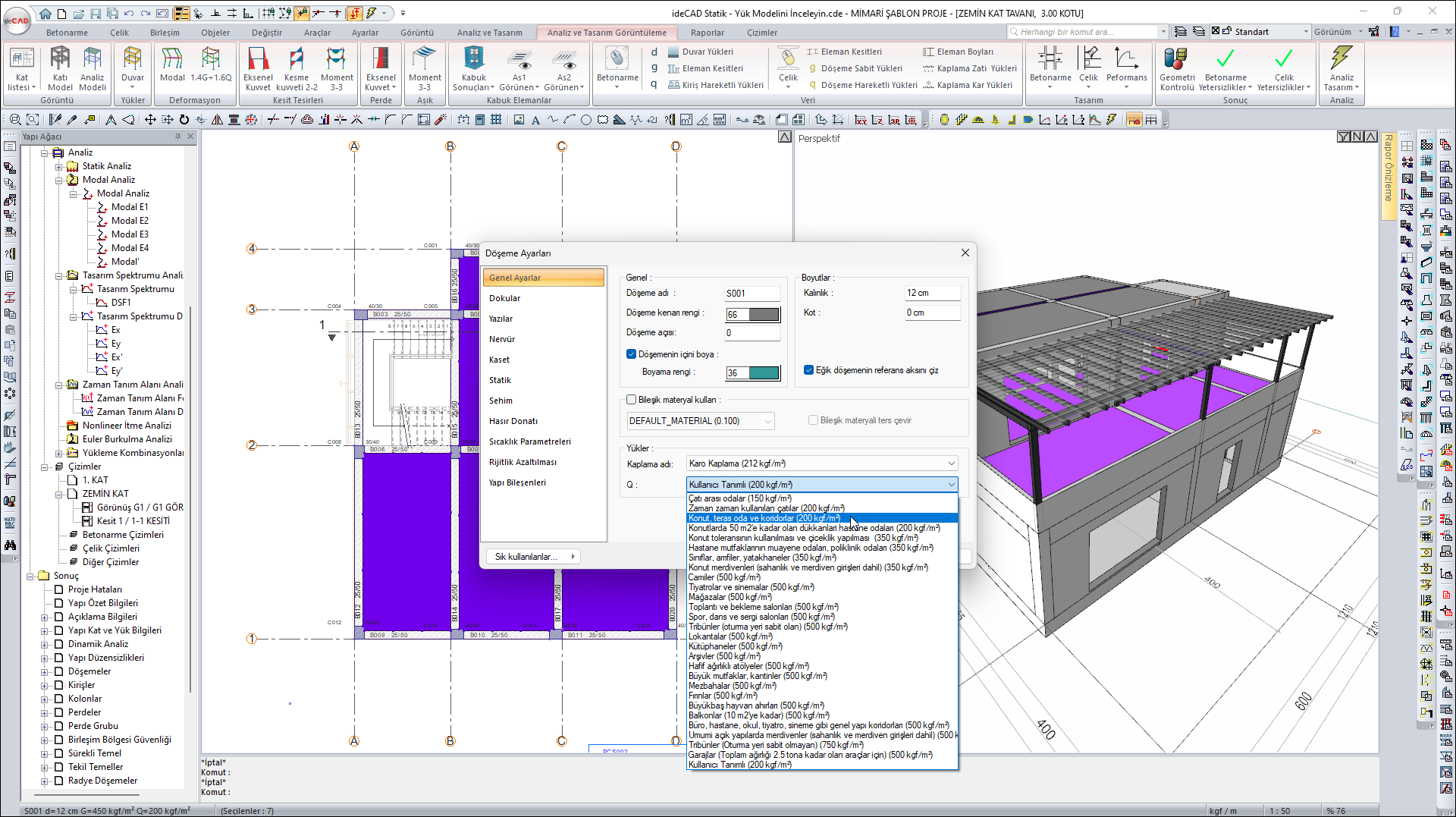
ZEMİN KAT ve 1. KAT döşemelerinin sabit ve hareketli yükleri düzenlenmelidir.
Zemin katta plan görünüşünden döşemeleri seçin.
Herhangi bir döşemenin üzerine çift tıklayın.
Döşeme Ayarları diyaloğu açılacaktır.
Genel Ayarlar sekmesi, Yükler bölümünden Kaplama adı listesini açın.
Karo Kaplama'yı seçin.

Q listesinden Konut, teras oda ve koridorlar 'ı seçin.

Tamam butonuna tıklayarak diyaloğu kapatın.
Döşemelerin sabit ve hareketli yükleri tanımlanacaktır.
1. KAT 'a geçiş yapın.
Plan görünüşünden döşemeleri seçin.
Herhangi bir döşemenin üzerine çift tıklayın.
Döşeme Ayarları diyaloğu açılacaktır.
Genel Ayarlar sekmesi, Yükler bölümünden Kaplama adı listesini açın.
Çatı 'yı seçin.

Q listesinden Çatı arası odalar 'ı seçin.

Tamam butonuna tıklayarak diyaloğu kapatın.
Döşemelerin sabit ve hareketli yükleri tanımlanacaktır.
Ribbon menü Veri bölümünde betonarme listesini açın.
Döşeme Kaplama Yükleri komutuna tıklayın.

Görselleştirme Penceresinde, kaplama yüklerinin tanımları incelenebilir.

Görselleştirme diyaloğundan, Yükler sekmesine tıklayın.
Yük Tipi listesinden Aşık Yükleri 'ni seçin.

Görselleştirme penceresinde çelik aşıklara etkiyen kaplama yükleri görülür.
Yük Tipi listesinden Zati Yük 'ü seçin.

Görselleştirme penceresinde tüm elemanların zati yükleri görülecektir.
Uygulanan adımları aşağıdaki videodan takip edebilirsiniz.
Sonraki Konu