Betonarme Tasarım Raporlarını Oluşturun
Analiz+Tasarım 'ı yapılan projenin TBDY, betonarme ve çelik eleman raporlarını oluşturun. |
Çelik birleşimleri modellenen yapı bilgi modelinin betonarme tasarım raporları oluşturulur.
Analiz+Tasarım (F9) komutuna tıklayın.
Açılan pencerede Analiz yaptırmak istiyor musunuz? sorusu sorulacaktır.
Evet butonuna tıklayın.
Analiz Durumu penceresinde analizin tamamlanmasını bekleyin.
Analiz tamamlandıktan sonra Tamam butonuna tıklayarak pencereyi kapatın.

Yapı Ağacı Sonuç listesinden, kolonlar listesini açın.
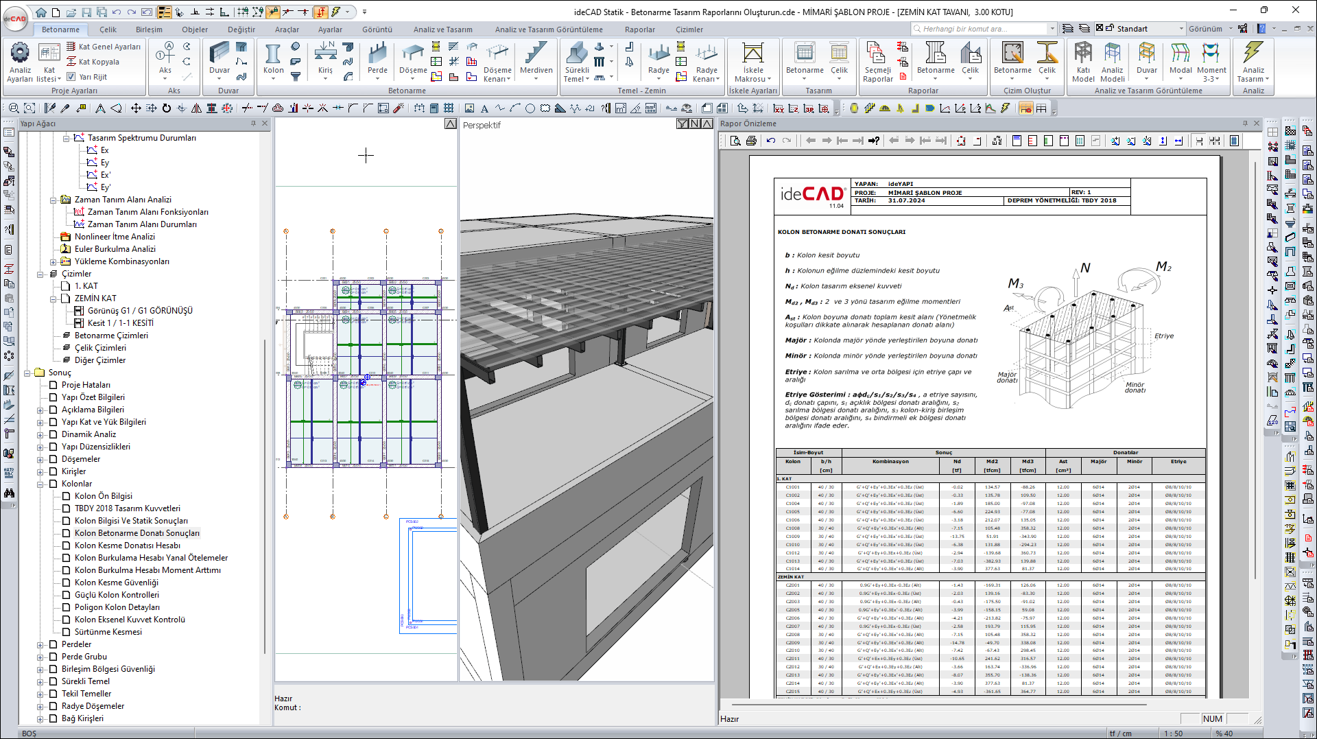
Kolon Betonarme Donatı Sonuçları 'na tıklayın.

Rapor Önizleme penceresinde Kolon Betonarme Hesap Sonuçları raporu açılacaktır.

Rapor Önizleme penceresini kapatın.
Ribbon menü Raporlar sekmesine tıklayın.
Betonarme bölümünden Kolon Genel Raporu komutuna tıklayın.

ideRAPOR 'da betonarme kolon raporları açılacaktır.
Yüksekliğe uydur komutuyla sayfa yüksekliğine göre zoom otomatik yapılır.
Betonarme kolon raporlarını inceleyin.

ideRAPOR 'da İçindekiler komutuna tıklayın.
Betonarme Kolon raporlarının İçindekiler bölümü açılır.

Kolonlar için enine donatı koşulları 'na tıklayın.
Kolonlar için enine donatı koşulları raporu açılacaktır.

ideRAPOR 'u kapatın.
Betonarme bölümünden Kiriş Genel Raporu komutuna tıklayın.

ideRAPOR 'da betonarme kiriş raporları açılacaktır.

Genişliğe uydur komutuyla sayfa genişliğine göre zoom otomatik yapılır.
Betonarme kiriş raporlarını inceleyin.
Uygulanan adımları aşağıdaki videodan takip edebilirsiniz.
Sonraki Konu