Betonarme Çizimleri Oluşturun
Analiz+Tasarım 'ı yapılan projenin kalıp planı, kolon aplikasyon planı, kolon düşey açılınları, kiriş açılımları vb. betonarme çizimlerini oluşturun. |
Raporları alınan yapı bilgi modelinin betonarme çizimleri oluşturulur.
Analiz+Tasarım (F9) komutuna tıklayın.
Açılan pencerede Analiz yaptırmak istiyor musunuz? sorusu sorulacaktır.
Evet butonuna tıklayın.
Analiz Durumu penceresinde analizin tamamlanmasını bekleyin.
Analiz tamamlandıktan sonra Tamam butonuna tıklayarak pencereyi kapatın.

Ribbon menü Çizimler sekmesine tıklayın.
Çizim oluştur bölümünden Betonarme çizim listesini açın.
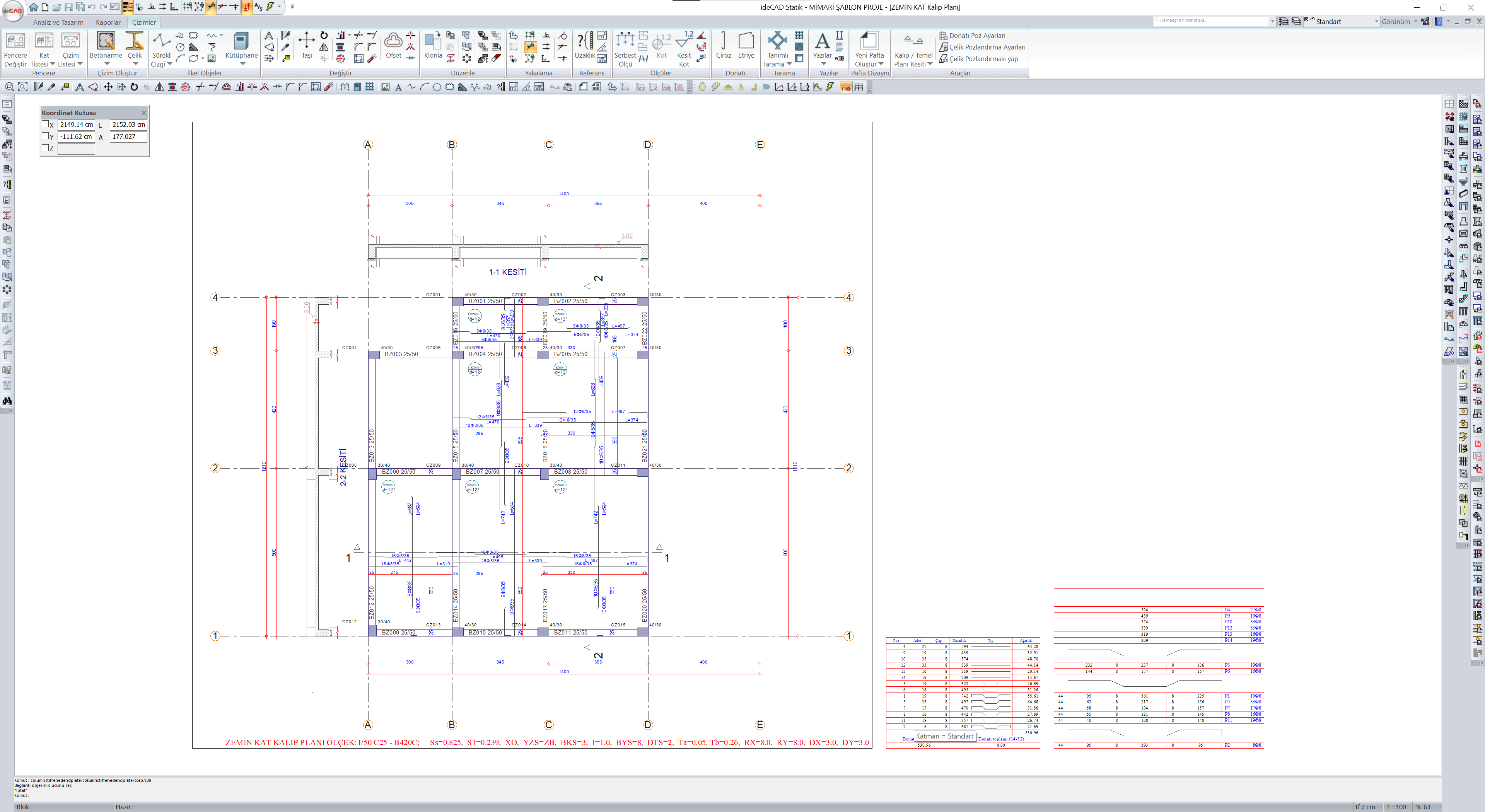
Kalıp Planı komutuna tıklayın.

Çizim Özellikleri diyaloğu açılacaktır.

Çizim özelliklerini kontrol edin ve Tamam butonuna tıklayın.
Ters sehim tablosu diyaloğu açılacaktır. Tamam butonuna tıklayarak diyaloğu kapatın.

Çizim düzenleme penceresi 'nde Kalıp Planı çizimi oluşturulacaktır.

Çizim düzenleme penceresi 'nde çizimlere müdahale edilebilir.
Hızlı Taşıma komutuna tıklayın.

Taşımak istediğiniz çizim bloğuna tıklayın.

Çizim bloğu seçili hale gelecektir.
Bloğu taşımak istenilen noktaya getirin ve farenin sol tuşu ile tıklayın.
Hızlı Taşıma işlemleri tamamlandıktan sonra Esc tuşuna basarak komuttan çıkın.

Betonarme listesinden Kolon Aplikaston Planı komutuna tıklayın.

Açılan Kolon Aplikasyon Diyaloğu 'ndan Ayarlar butonua tıklayın.

Çizim Özellikleri diyaloğu açılacaktır.

Antetler sekmesine tıklayın.
Çizimde oluşturulacak antetler listelenir.

Düzen butonuna tıklayın.
Listeden Malzeme Zemin Deprem 'i seçin
Sağ ok işaretine tıklayarak Seçilen Bloklar listesine ekleyin.

Blok Önizlemesinde gösterilen Malzeme Zemin Deprem bloğu antete eklenecektir.
Kaydet butonuna tıklayarak anteti kaydedin.
Tamam butonuna tıklayarak Çizim Özellikleri diyaloğunu kapatın.

Detayları dışta aç butonuna tıklayın.

Kolon Aplikaston Planı çizimleri oluşturulacaktır.
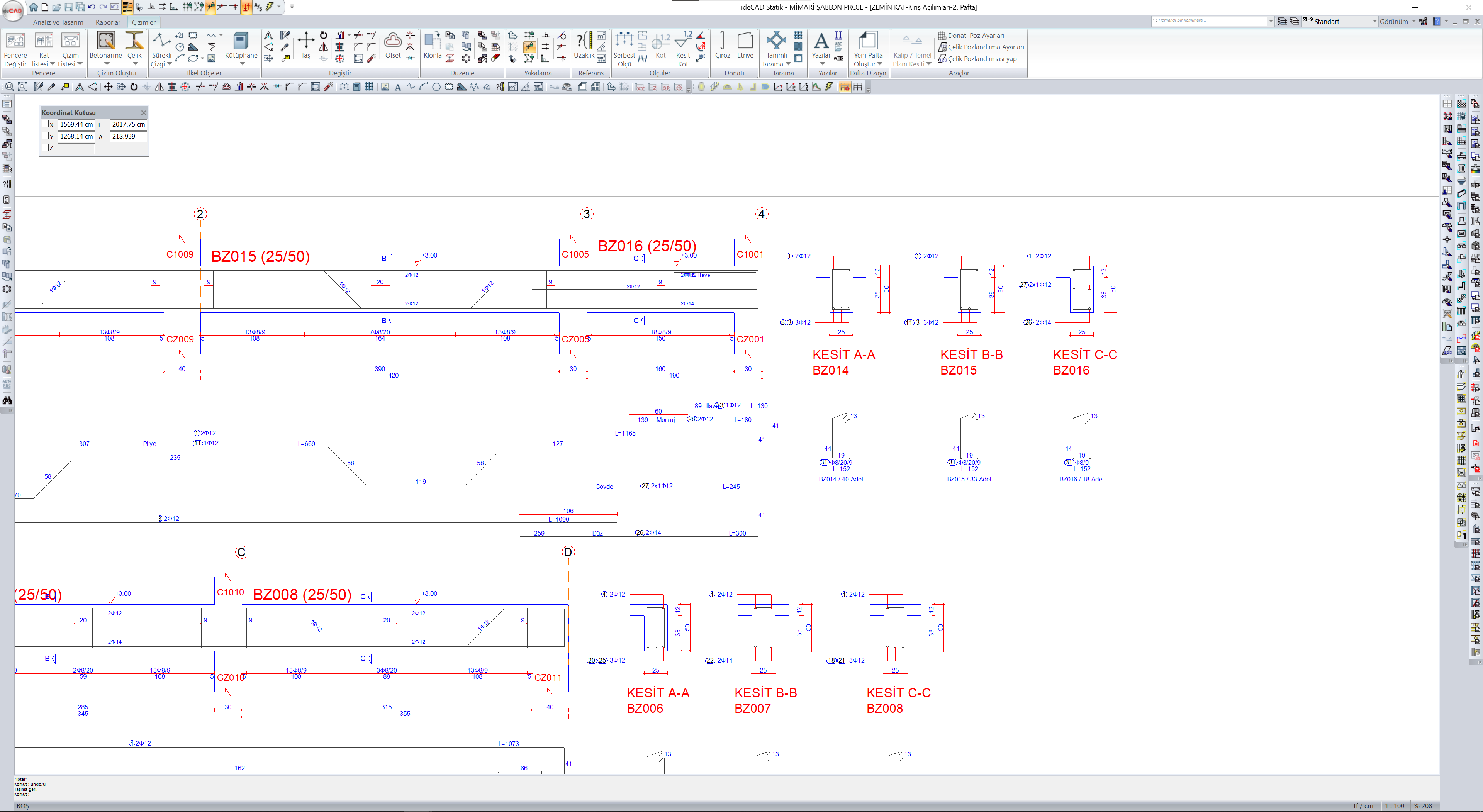
Betonarme listesinden Kiriş Açılımları komutuna tıklayın.

Çizim Özellikleri diyaloğu açılacaktır.
Çizim özelliklerini kontrol edin ve Tamam butonuna tıklayın.
Kiriş Açılımları çizimleri oluşacaktır.

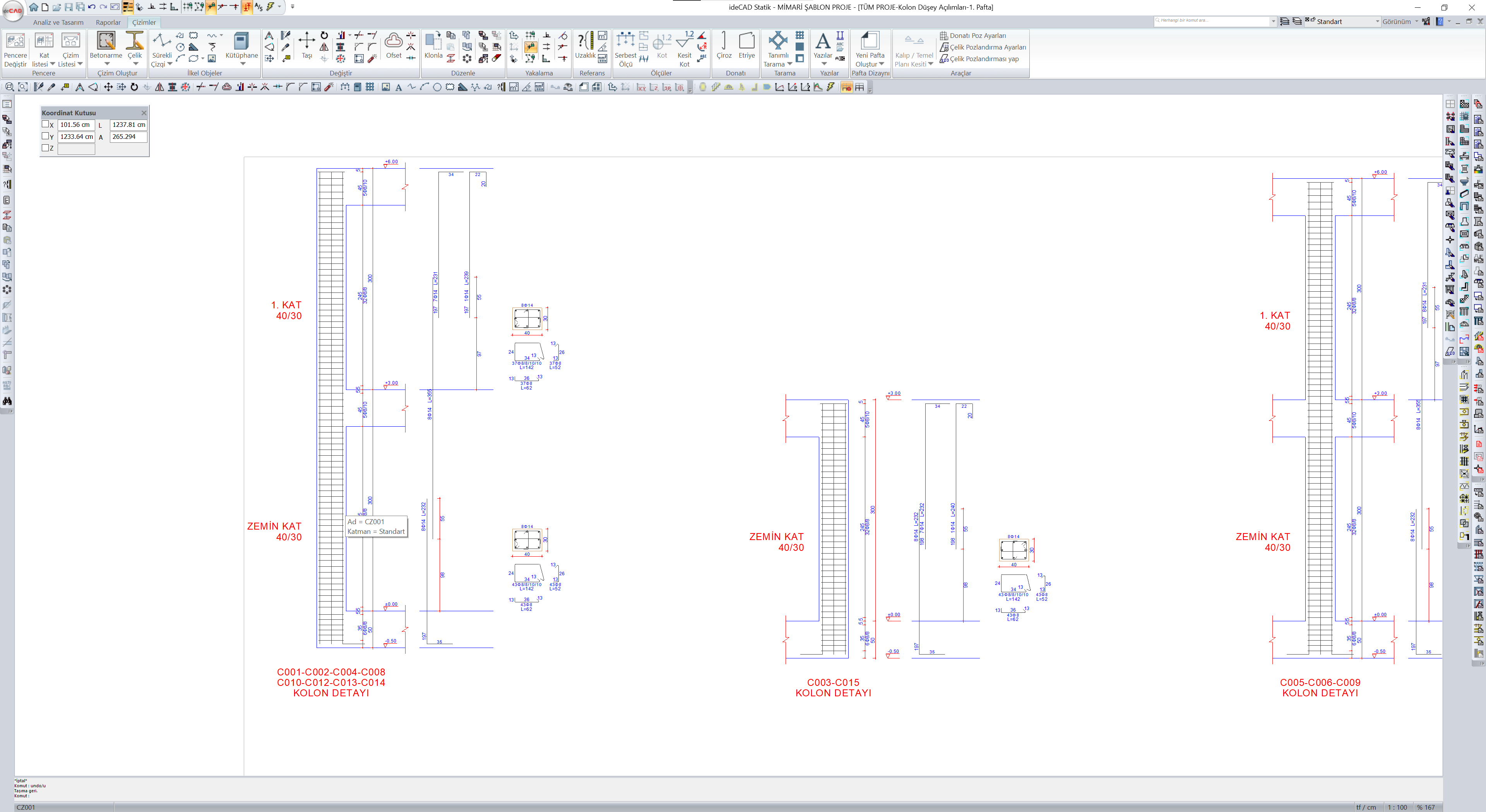
Betonarme listesinden Kolon Düşey Açılımları komutuna tıklayın.

Açılan Kolon Düşey Açılım Ayarları diyaloğundan Tamam butonuna tıklayın.
Tüm çizimler için global pozlama uygulandı bilgisi verilecektir.
Tamam butonuna tıklayarak kapatın.

Kolon Düşey Açılımı çizimleri oluşacaktır.

Uygulanan adımları aşağıdaki videodan takip edebilirsiniz.
Sonraki Konu