Taşıyıcı Sistemi İnceleyin
ideYAPI bilgi modeli.cde adlı proje dosyasında mimari proje uygulanmıştır. Projeyi indirip taşıyıcı sistem incelemesine başlayın. |
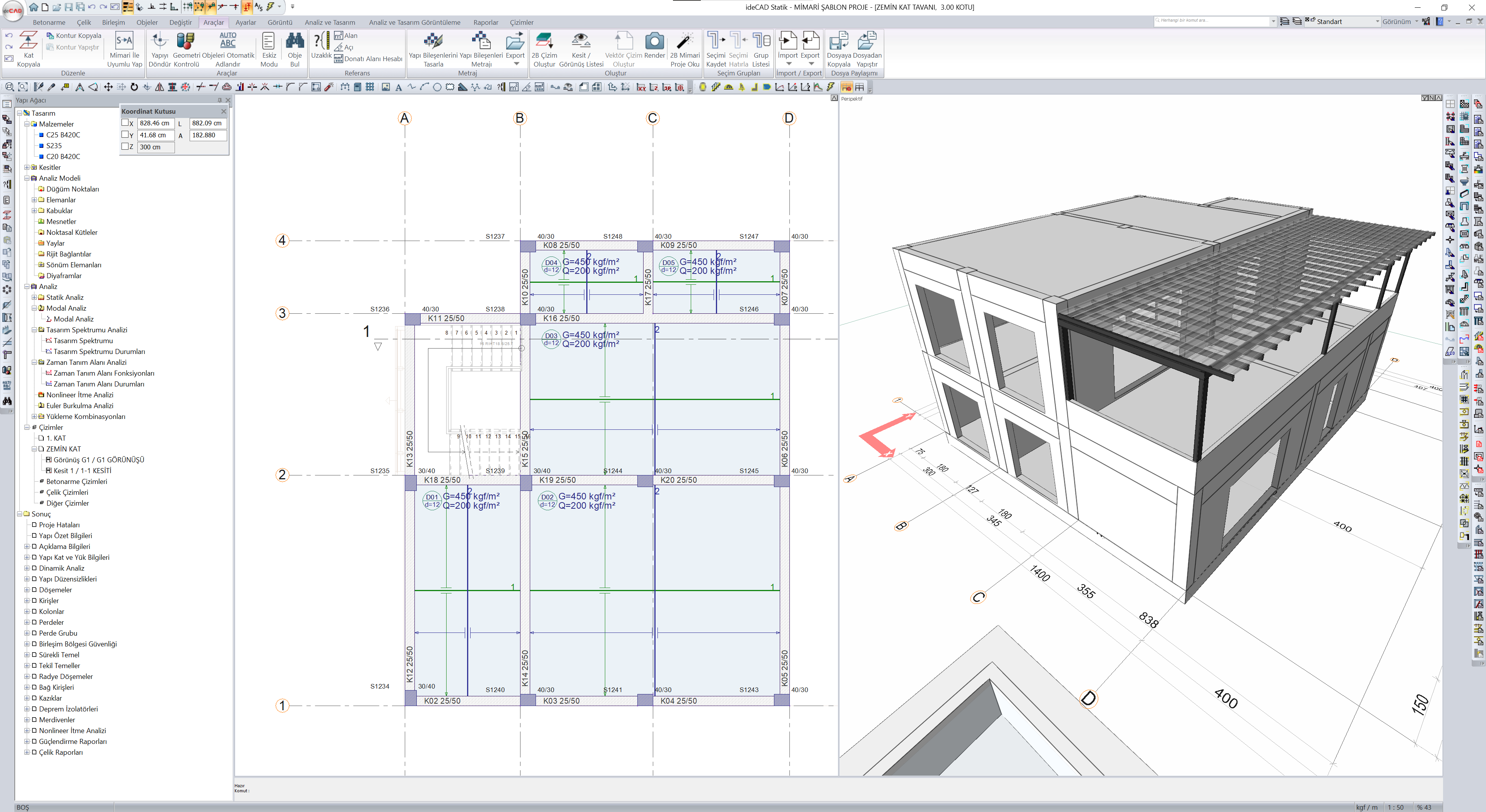
Mimari projesi tamamlanmış, yapı bilgi modeli hazır proje, ideCAD Statik’te açılarak taşıyıcı sistemi incelenir.
ideCAD Mimari ile hazırlanan dosyayı ideCAD Statik programı ile açın.
Mimari Plan/Kalıp Planı komutuna tıklayarak statik kalıp planına geçiş yapın.

Plan görünüşünde mimari detaylar kapanır Kalıp Planı açılır.

Ribbon menü, Araçlar sekmesinde Statik ile Uyumlu Yap komutunu tıklayın.

Katmanlar ideCAD Statik 'e göre otomatik düzenlenir.
Plan görünüşünde kolon ve kiriş boyutları açılır.

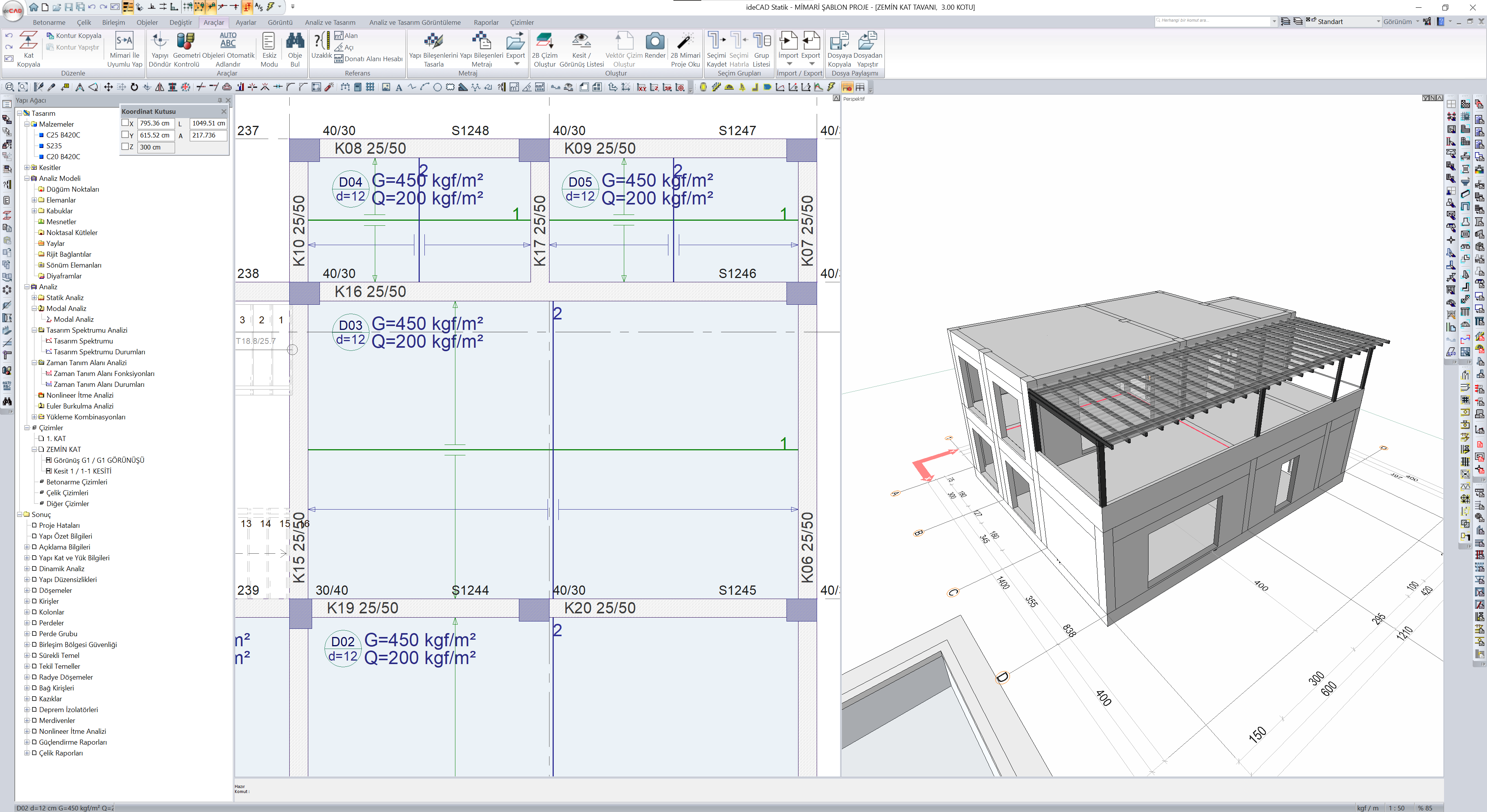
Kiriş ve kolon boyutlarını inceleyin.

Döşeme kalınlığı ve döşeme yüklerini inceleyin

C-3 aks kesişiminde kolon eksikliği tespit edildi.
C aksı üzerinde 1-3 aksları arasında kiriş eksikliği tespit edildi.

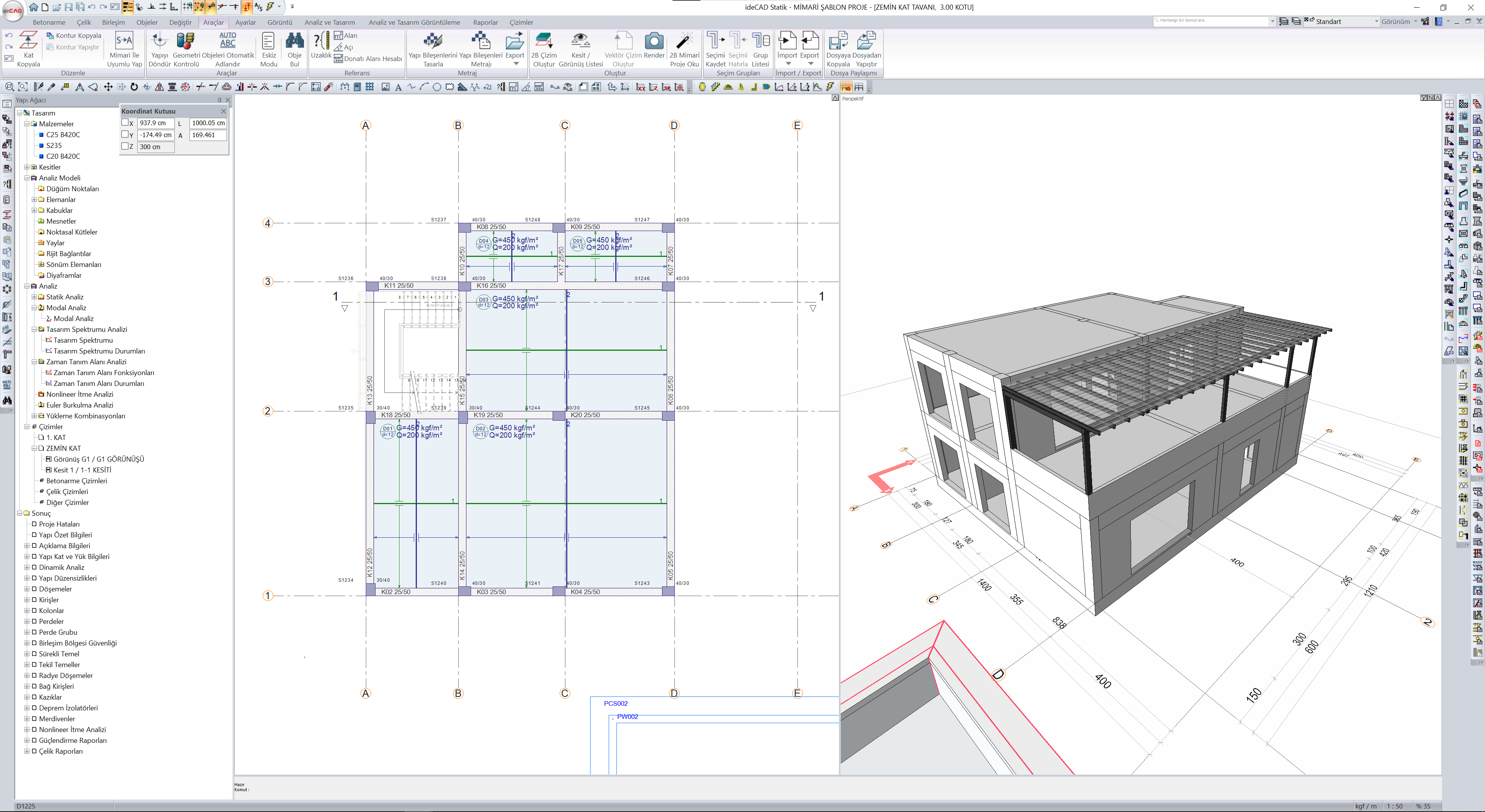
1. Kata geçiş yapın.
Kiriş ve kolon boyutlarını inceleyin.
C-3 aks kesişiminde kolon eksikliği tespit edildi.
B aksı üzerinde 1-3 aksları arasında kiriş eksikliği tespit edildi.

Uygulanan adımları aşağıdaki videodan takip edebilirsiniz.
Sonraki Konu