Çelik Çizimleri Oluşturun
Analiz+Tasarım 'ı yapılan projenin tekil eleman, montaj, aplikasyon ve plan, kolon ankraj vb. çelik çizimlerini oluşturun. |
Çelik birleşimleri modellenen yapı bilgi modelinin çelik çizimleri oluşturulur.
Çelik çizimler oluşturulurken mimari objeler silinmelidir.
Katman listesinden Duvar katmanını kapatın.
Klavyeden Esc tuşuna basarak katman listesini kapatın.
Hepsini Seç komutuyla perspektif görünüşten tüm elemanları seçin.
Havuzun üzerine farenin sol tuşuyla tıklayarak havuzu seçimden çıkarın.

Katman listesinden kapalı olan tüm katmanları açın.

Klavyeden Esc tuşuna basarak katman listesini kapatın.
Seçimi Ters Çevir komutuna tıklayın.

Mimari objeler seçili duruma gelecektir.
Klavyeden Delete tuşuna basarak mimari objeleri silin.
1. KAT 'a geçiş yapın.
Hepsini Seç komutuyla perspektif görünüşten tüm elemanları seçin.
Katman listesinden kapalı olan tüm katmanları açın.
Seçimi Ters Çevir komutuna tıklayın.
Klavyeden Delete tuşuna basarak mimari objeleri silin.

Ribbon menü Çizimler sekmesine tıklayın.
Çizim oluştur bölümünden Çelik çizim listesini açın.
Çelik Çizimleri komutuna tıklayın.

Çelik Çizimleri diyaloğu açılacaktır.
Ayarlar butonuna tıklayın.

Açılan Çelik Çizim Ayarları diyaloğundan çelik çizim ayarlarını kontrol edin.

Görünüş sekmesine tıklayın.
X ekseninde dönüş satırına 30, Y ekseninde dönüş satırına 230 yazın.

Tamam butonuna tıklayarak diyaloğu kapatın.
Çelik Çizimleri diyaloğundan Tekil Eleman Çizimi 'ni seçin ve Oluştur butonuna tıklayın.

Tekil Eleman Çizimleri oluşturulacaktır.

Çelik çizim listesinden Montaj Çizimleri komutuna tıklayın.

Montaj Çizimleri oluşturulacaktır.

Çelik çizim listesinden Kolon Ankraj Çizimleri komutuna tıklayın.
Kolon Ankraj Çizimleri oluşturulacaktır.

Çelik çizim listesinden Çatı Planı Çizimleri komutuna tıklayın.
Çatı Planı Çizimleri oluşturulacaktır.

Çelik çizim listesinden 3B İzometrik Görünüş Çizimleri komutuna tıklayın.

3B İzometrik Görünüş Çizimleri oluşturulacaktır.

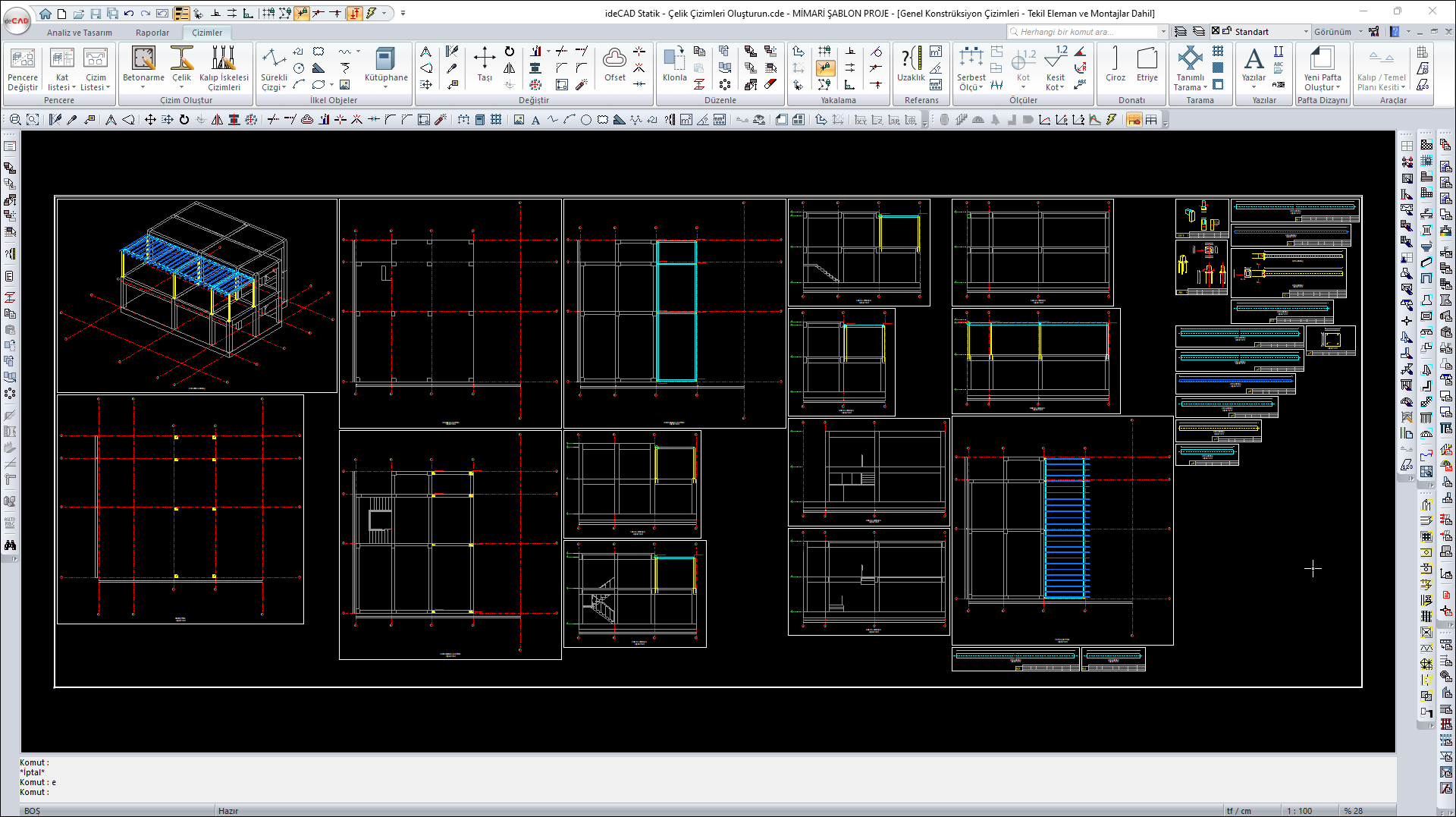
Çelik çizim listesinden Genel Konstrüksiyon Çizimleri - Tekil Eleman ve Montajlar Dahil komutuna tıklayın.

Tüm çelik çizimleri tek bir paftada oluşturulacaktır.

Uygulanan adımları aşağıdaki videodan takip edebilirsiniz.
Sonraki Konu