Yetersizlikleri Giderin
ideCAD Mimari ile hazırlanmış proje ideCAD Statik ile açılmıştır. Analiz+Tasarım yaparak görselleştirme olanakları ile yetersizlikleri tespit edip gerekli müdahaleyi yapabilirsiniz. |
Geometri ve yetersizlik kontrolleri yapılan yapı bilgi modelinde, tespit edilen yetersizlikler giderilir.
Analiz+Tasarım (F9) komutuna tıklayın.
Analiz Ayarları Diyaloğu açılacaktır.
Tamam butonuna tıklayarak analizi başlatın.

Analiz Durumu diyaloğunda analizin tamamlanmasını bekleyin.
Analiz tamamlandıktan sonra Tamam butonuna tıklayarak diyaloğu kapatın.

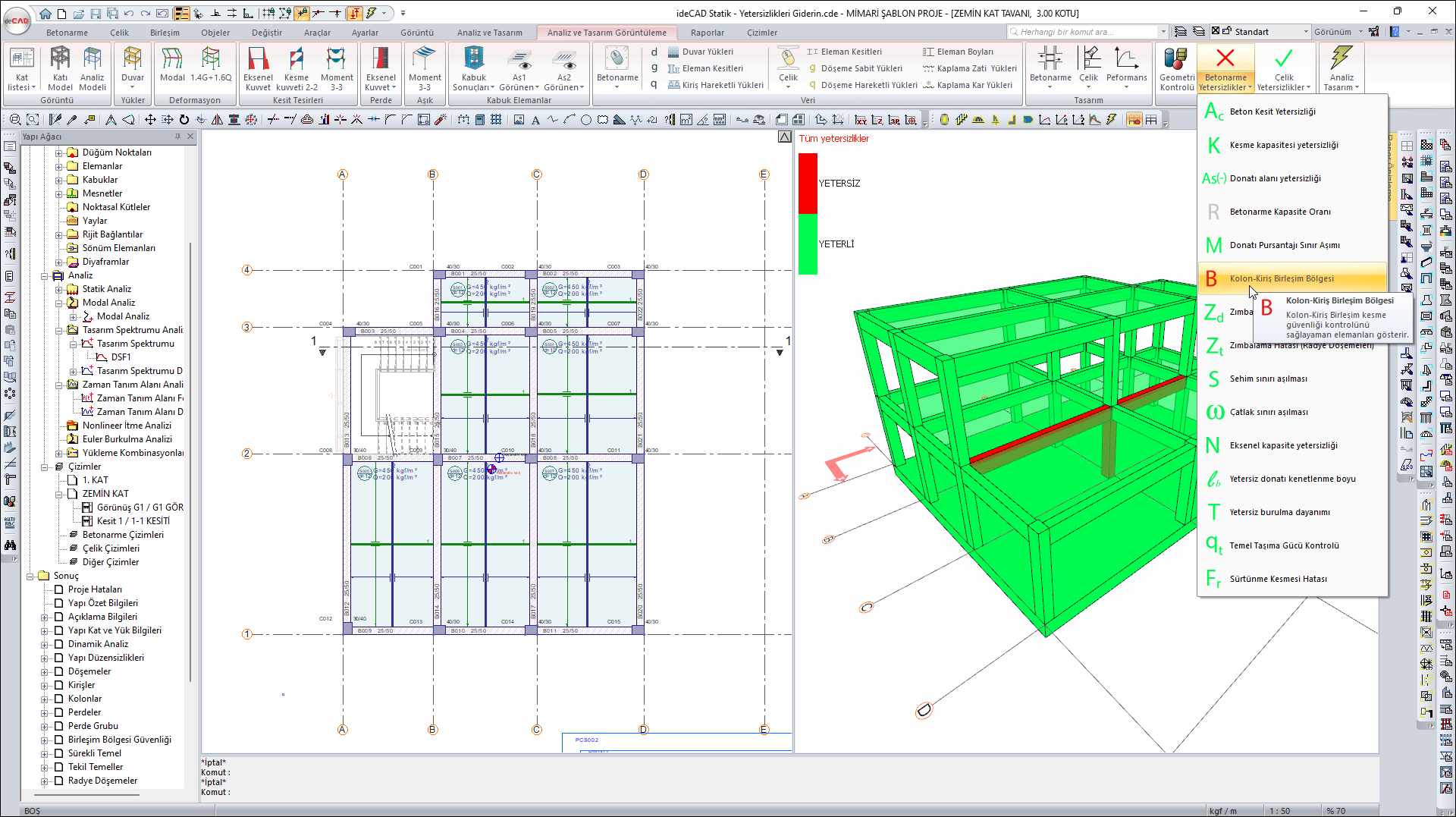
Sonuç bölümü Betonarme Yetersizlikler üzerinde kırmızı çarpı işareti görülecektir.

Betonarme Yetersizlikler listesini açın.
Kolon-Kiriş Birleşim Bölgesi seçeneğine tıklayın.

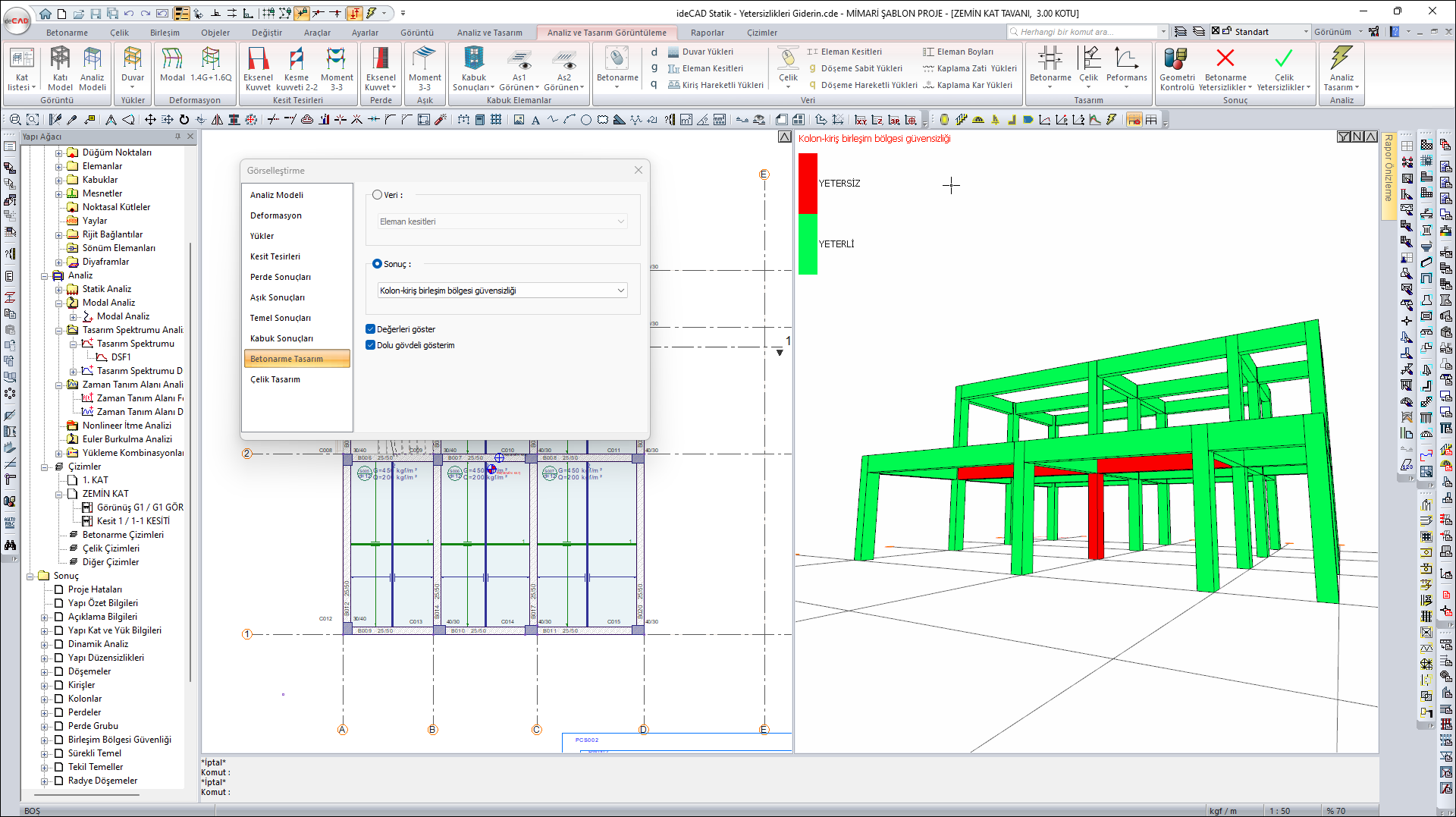
Görselleştirme Penceresinde bu yetersizliğe sahip elemanlar kırmızı renkte görünür.

Kolon-Kiriş Birleşim Bölgesi yetersizliği giderilmelidir.
Görselleştirme diyaloğunu kapatın.
C-2 aks kesişiminde bulunan kolona iki kere tıklayarak Kolon Ayarları diyaloğunu açın.
Genel Ayarlar sekmesinde Genişlik değerine 30 cm, Yükseklik değerine 40 cm yazın.
Tamam butonuna tıklayarak diyaloğu kapatın.


1. KAT 'a geçiş yapın.
C-2 aks kesişiminde bulunan kolona iki kere tıklayarak Kolon Ayarları diyaloğunu açın.
Genel Ayarlar sekmesinde Genişlik değerine 30 cm, Yükseklik değerine 40 cm yazın.
Tamam butonuna tıklayarak diyaloğu kapatın.

Analiz+Tasarım (F9) komutuna tıklayın.
Açılan pencerede Analiz yaptırmak istiyor musunuz? sorusu sorulacaktır.
Evet butonuna tıklayın.
Analiz Durumu diyaloğundan analizin tamamlanmasını bekleyin.
Analiz tamamlandıktan sonra Tamam butonuna tıklayarak diyaloğu kapatın.

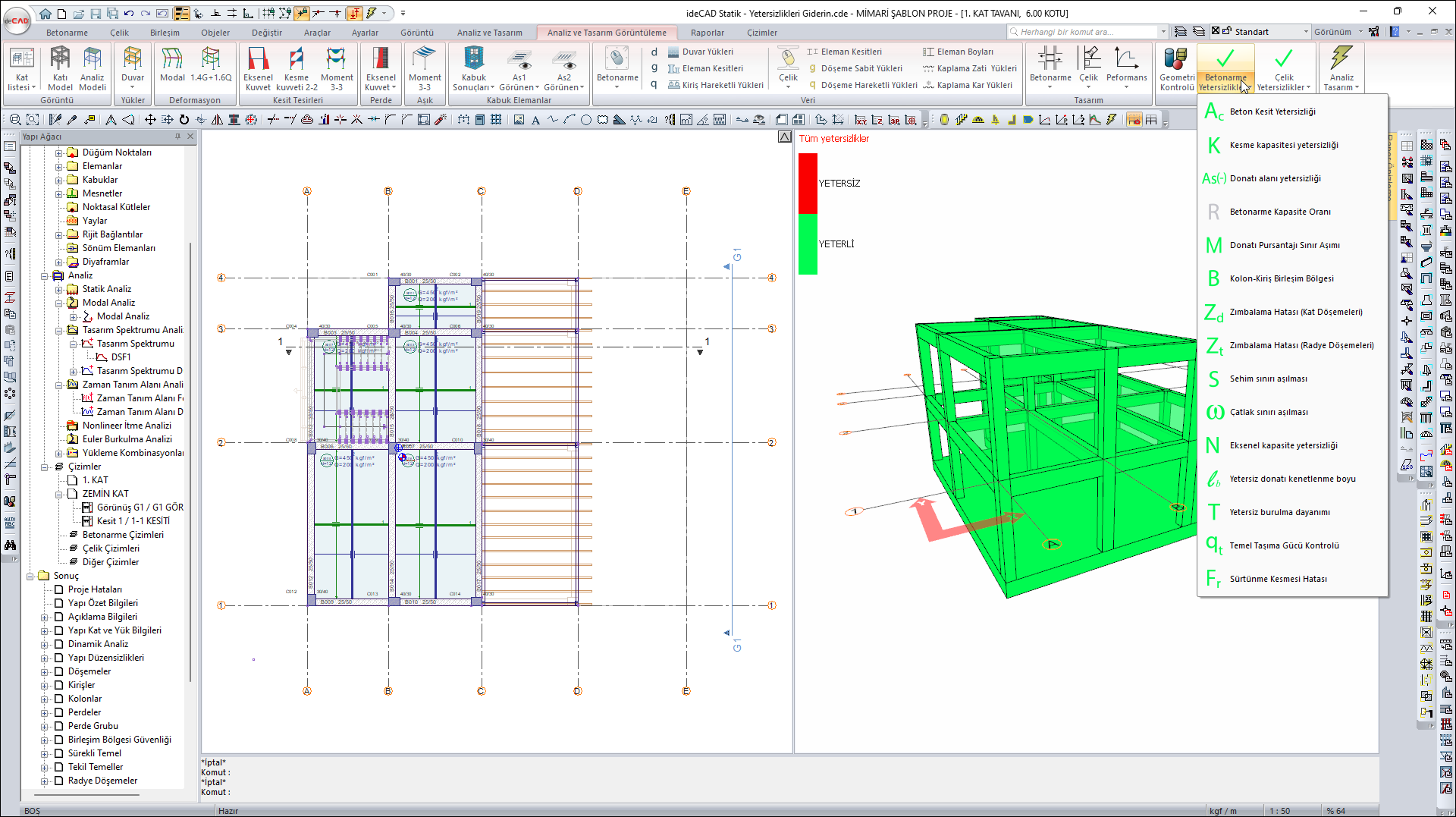
Sonuç bölümünde Betonarme Yetersizlikler üzerinde yeşil tik işareti görülecektir.
Bu işaret projede herhangi bir yetersizlik olmadığı anlamına gelir.
Betonarme Yetersizlikler listesini açın.

Kolon-Kiriş Birleşim Bölgesi yetersizliğine tıklayın.
Görselleştirme Penceresinde betonarme elemanlar yeşil renkte gösterilecektir.
Projede Kolon-Kiriş Birleşim Bölgesi yetersizliği bulunmamaktadır.
Uygulanan adımları aşağıdaki videodan takip edebilirsiniz.
Sonraki Konu