Ölçülendirme Yazılarını İlk Haline Getir
Ölçülendirme Yazılarını İlk Haline Getir komutu, ölçülendirme üzerinde yapılan değişikleri tek seferde iptal eder ve ilk haline getirir.
Ölçülendirme Yazılarını İlk Haline Getir Komutunun Yeri
İlk haline döndürmek istediğiniz ölçülendirmeyi seçin farenin sağ tuşuna tıklayarak açılan menüden Ölçülendirme Yazılarını İlk Haline Getir satırına tıklayın.

Mimari Programda
Ribbon menü Değiştir sekmesi Obje Edit başlığı altından ulaşabilirsiniz.

Statik Programda
Ribbon menü Değiştir sekmesi Obje Edit başlığı altından ulaşabilirsiniz.

İşlem Adımları
İlk haline getirmek istediğiniz ölçülendirmeyi seçin.
Ribbon menüde Ölçülendirme Yazılarını İlk Haline Getir ikonunu tıklayın ya da farenin sağ tuşuna tıklayıp açılan listeden Ölçülendirme Yazılarını İlk Haline Getir satırını tıklayın.
“Seçili ölçülendirme yazıları ilk konumlarına getirilecek. İşlem yapılsın mı?” uyarısını “Evet” butonunu tıklayarak cevaplayın.
Ölçülendirmeniz ilk haline gelecektir.
İşlem adımı |
|---|
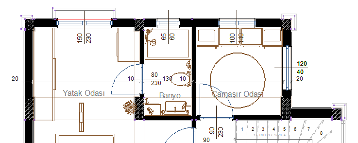
Ölçülendirme yazılarını ilk haline getir öncesi ![]() |
Ölçülendirmenin seçilmesi ![]() |
“Seçili ölçülendirme yazıları ilk konumlarına getirilecek. İşlem yapılsın mı?” uyarısının yanıtlanması ![]() |
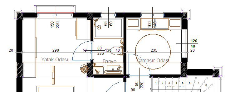
Ölçülendirme yazılarını ilk haline getir sonrası ![]() |
Sonraki Konu



