İç Ölçülendirme
İç ölçülendirme komutuyla proje iç ölçüleri verilir. Çizilen hat üzerinde olan duvar, kiriş gibi yapı elemanlarının ölçüleri otomatik olarak verilir. İç ölçüler akıllı komutlardandır. Ölçüler verildikten sonra ölçünün geçtiği elemanlarda yapılan değişiklikler ölçüye otomatik yansır.
İç Ölçülendirme Komutunun Yeri
Mimari Programda
Mimari program da ribbon menü Çizimler sekmesi Ölçülendirme başlığı altından ulaşabilirsiniz.

Statik Programda
Statik program da ribbon menü Çizimler sekmesi Ölçüler başlığı altından ulaşabilirsiniz.

Ölçülendirme Toolbarı

İkonlar |
|---|
Dış ölçülendirme ![]() Dış ölçülendirme komutu çalışır. |
İç ölçülendirme ![]() İç ölçülendirme komutu çalışır. |
Serbest ölçülendirme ![]() Serbest ölçülendirme komutu çalışır. |
Kesişim ölçülendirme ![]() Kesişim ölçülendirme komutu çalışır. |
Etiket ![]() Etiket komutunu çalıştırır. Ölçülendirme etiketi çizilir. |
Kot ölçülendirme ![]() Plan penceresinde kot ölçüleri çizer. |
Kesit kot ![]() Kesit ve görünüş pencerelerinde kot ölçülendirme yapmak için kullanılır. Sadece 2B çizim pencerelerinde aktiftir. |
Açı ölçülendirme ![]() İki obje arasında kalan açıyı ölçülendirir. |
Çap ölçülendirme ![]() Daire veya yay ve yay veya daire aksla çizilmiş objeleri çap ya da yarıçap olarak ölçülendirir. |
Kesit ölçülendirme grubu ![]() Kesit ölçü grubu oluşturur. Kesit ve görünüş pencerelerinde aktiftir. |
Kesit ölçülendirme ![]() Kesit ölçüsü oluşturur. Kesit ve görünüş pencerelerinde aktiftir. |
Kirişleri dahil et ![]() Kirişleri kesit ölçülendirmesine dahil eder. |
Döşemeleri dahil et ![]() Döşemeleri kesit ölçülendirmesine dahil eder. |
Detayları dahil et ![]() Kapı/pencere elemanlarını kesit ölçülendirmesine dahil eder. |
Sol taraf ![]() Kesit ölçülendirmesini sol tarafa yerleştirir. |
Sağ taraf ![]() Kesit ölçülendirmesini sağ tarafa yerleştirir. |
Ayarlar ![]() Tıklandığında hangi ölçülendirme tipi aktif ise (iç, dış, kesişim vs.) o ölçülendirme ile ilgili parametrelerin bulunduğu ölçülendirme ayarları diyaloğunu açar. |
İşlem Adımları
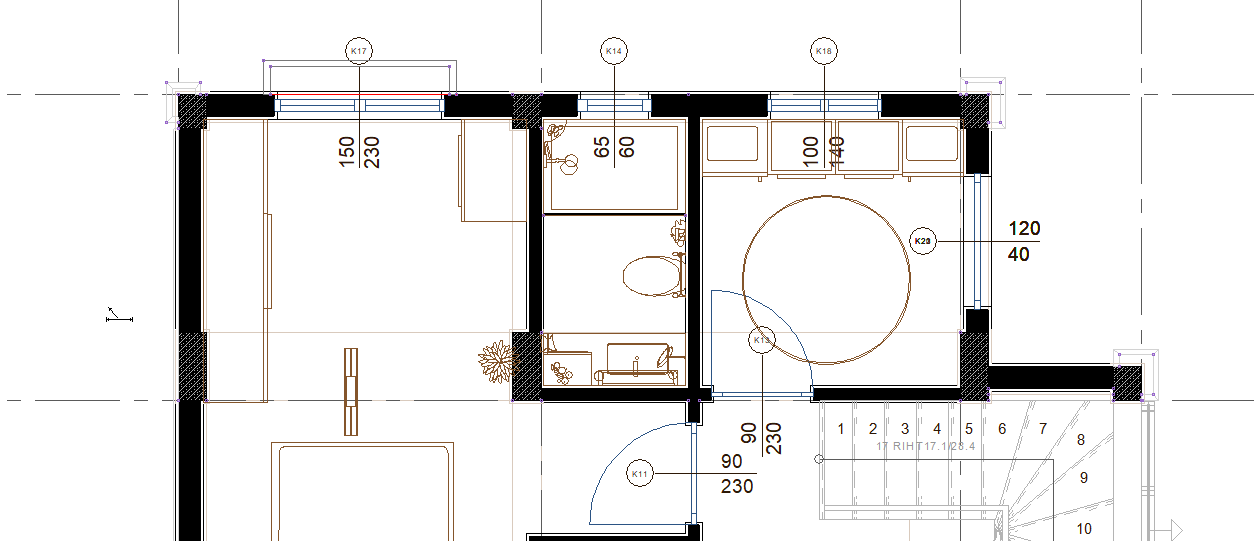
İç ölçülendirme yapmak için:
Ribbon menüde İç Ölçülendirme ikonunu tıklayın.
Farenin sol tuşu ile iki nokta tıklayarak duvarları kesen bir ölçülendirme hattı belirleyin.
Belirlediğiniz hat üzerinde iç ölçülendirme oluşacaktır.
İç ölçülendirme çizim alanında herhangi bir açıda olabilir. Ölçü hattı taşınır ya da döndürülürse ya da duvarlarda herhangi bir değişiklik olursa ölçüler otomatik olarak güncellenir.
İşlem adımı |
|---|
Ölçü hattı için ilk noktanın verilmesi ![]() |
Ölçü hattı için ikinci noktanın verilmesi ![]() |
İç ölçünün oluşması ![]() |
İç Ölçülendirme Ayarları Diyaloğunun Yeri
İç Ölçülendirme Komutu Ayarları
Ribbon menüde Çizimler sekmesinde Serbest Ölçü altından ulaşabilirsiniz.

Ayrıca iç ölçülendirme komutu çalıştırıldıktan sonra ekrana gelen Ölçülendirme yardımcı toolbarında Ayarlar ikonuna tıklayarak ulaşabilirsiniz.

İç Ölçülendirme Objesi Ayarları
Ayarlarına girmek istediğiniz iç ölçülendirmeyi seçin farenin sağ tuşuna tıklayarak açılan menüden Özellikler satırına tıklayın.

İç Ölçülendirme Ayarları - Genel Ayarlar Sekmesi
Sekmede yer alan özellikler ölçülendirme tipine göre aktif ya da inaktif olarak değişmektedir.

Özellikler |
|---|
Yazı Bölümü |
![]() Ölçülerin yazı yüksekliği girilir. |
![]() Ölçü yazılarının objelerden uzaklığı girilir. |
![]() Ölçü yazılarının ölçü çizgisine uzaklığı girilir. |
![]() Ölçü yazılarının ölçü çizgisine göre konumu seçilir. |
![]() Buton tıklandığında “Yazı Tipi Ayarları” diyaloğu ekrana gelir. Buradan bilgi yazısının yazı tipi ayarlanabilir. |
Mesafeler Bölümü |
Hat öteleme ![]() Ölçülendirme hatları birbirine olan uzaklığı belirlenir. |
![]() Ölçü çizgilerinde çapraz ayraçların büyüklüğü girilir. |
![]() Ölçü çizgisinin üst ayraç büyüklüğü girilir. |
![]() Ölçü çizgisinin alt ayraç büyüklüğü girilir. |
![]() Ölçü çizgisinin sol ve sağ uç referans noktalarından sonra ne kadar devam edeceği girilir. |
![]() Ölçü çizgisinin alt ayracının referans olarak aldığı eğimli objelerden uzaklığı girilir. |
Renkler Bölümü |
![]() Ölçü yazılarının rengini ayarlar. Renk kutucuğu tıklandığında açılan pencereden uygun renk seçilir. |
![]() Ölçü çizgilerinin rengini ayarlar. Renk kutucuğu tıklandığında açılan pencereden uygun renk seçilir. |
![]() Ölçü ayraçlarının rengini ayarlar. Renk kutucuğu tıklandığında açılan pencereden uygun renk seçilir. |
Ölçek değeri ![]() Ölçülendirme hattı üzerinde yazan gerçek uzunluk değerleri, burada yazılan değerle çarpılır ve çarpım sonucunda bulunan değer ölçü değeri olarak kullanılır. Örneğin, ölçülendirme hattı değerleri 120, 200, 350 olsun. Ölçek değerine 2 yazılırsa, 120, 200, 250 uzunlukları, ölçülendirme hattında, 240, 400, 700 şeklinde yazılacaktır. |
Ayraç tipi ![]() Ölçülendirmede kullanılabilecek iki ayıraç tipinden biri seçilir. |
Ölçülendirme çizgileri - Toplam ![]() Tüm hatların toplam uzunluğunu verir. |
Diğer Özellikler Bölümü |
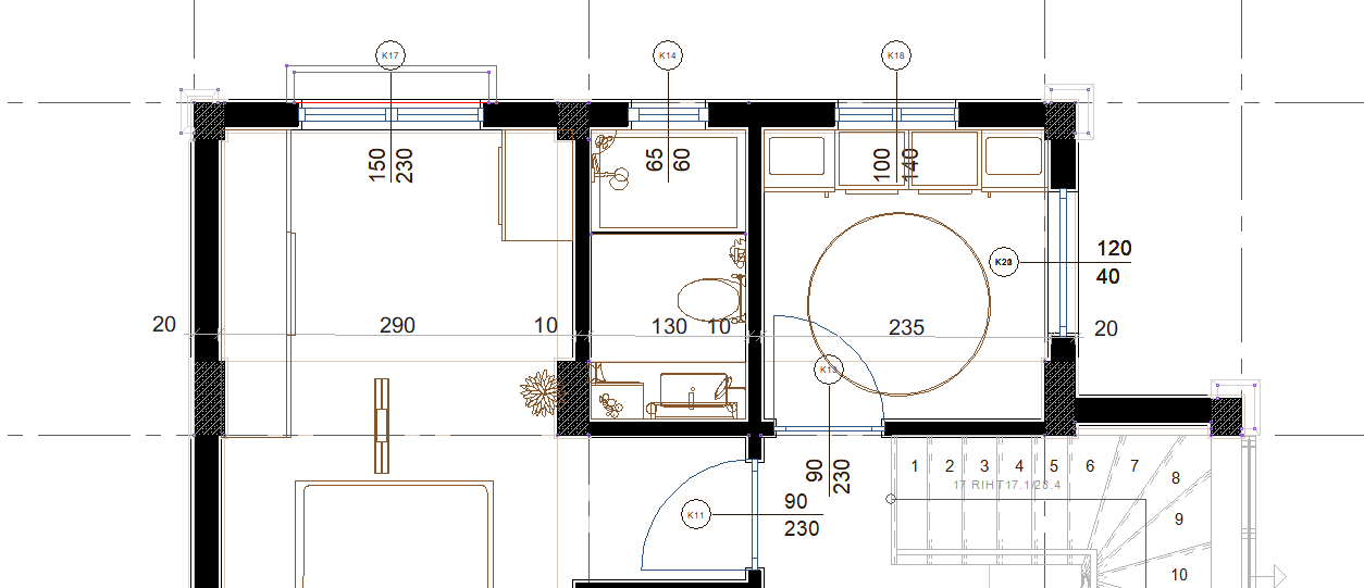
Sıvaları dikkate al ![]() Duvarı, iç ölçü çizgisinde, duvar sıvasından duvar sıvasına kadar genişlik alarak gösterir. İşaretlenmezse duvar, duvar genişliği kadar ölçülendirir. |
İç Ölçülendirme Ayarları - Birimler Sekmesi

Özellikler |
|---|
Temel birimler ![]() Seçimlerden biri farenin sol tuşu işe tıklanarak etkin hale getirilir. Metre: İşaretlenirse, bilgi yazısının birimi metre olur. |
Hane sayısı ![]() Virgülden sonra kaç hane gösterileceğini belirler. Listeden istenilen sayı seçilir. Örneğin 2 seçilirse, birimler virgülden sonra iki hane şeklinde gösterilecektir. 0 seçilirse birimlerin, virgülden sonrası gösterilmeyecektir. |
Kesirler ![]() Kesirli inç formatında yapılacak ölçülendirmenin hangi hassasiyette gösterileceğini belirler. Listede, 1/2, ¼, 1/8, 1/16, 1/32, 1/34 hassasiyetine kadar seçenekler bulunmaktadır. ”Kesir yok” seçilirse, birimler kesirsiz görünür. |
Yuvarlama aralığı ![]() Metre, santimetre ya da milimetre olarak yapılacak ölçülendirmenin yuvarlama aralığını belirler. Yuvarlama yok seçilirse, ölçülendirme tam değerinde yapılır. Aralık büyüdükçe ölçülendirme seçilen aralık kadar yuvarlanır. |
Sıfır birimi göster ![]() İşaretli değilse, soldaki sıfır ve noktayı ölçülendirmede göstermez. Örneğin 0.20 değerini, 20 olarak ölçülendirir. İşaretli ise 0.20 değeri 0.20 olarak ölçülendirilir. |
Küçük kesir yazısı ![]() Kesirli inç formatı seçildiğinde, kesir kısmının büyük/küçük gösterilmesini belirler. İşaretli ise kesir tam sayının biraz üstünde ve küçük, işareti değilse kesir tam sayının yanında aynı büyüklükte gösterilir. |
Sıfır fiti göster ![]() 0 fitli ölçlendirmede (1 fitten küçük ölçü değerinde) 0 ın gösterilip gösterilmeyeceğini belirler. Örneğin işaretli değilse, 0' - 15" değerinde bir ölçüyü -15" olarak gösterir. İşaretli ise 0'-15" şeklinde gösterir. |
0-1 aralığında sıfır inç’i göster ![]() Örneğin 8'-0 1/6 " değerine sahip bir ölçülendirme inç kısmı 0-1 aralığındadır. Seçenek işareli değilse 8'-0 1/6 " değeri 8'- olarak gösterilecektir. Başka bir deyişle 0-1 aralığındaki inç değerleri gösterilmeyecektir. |
Mutlak sıfır inç’i göster ![]() İnçin kesin sıfır olduğu ölçülendirme değerinde sıfır inçin gösterilip gösterilmeyeceğini belirler. Örneğin tam 10' değerinde bir ölçülendirme, eğer bu seçenek işaretli ise, 10'-0" şeklinde gösterilecektir. İşaretli değilse 10"- şeklinde gösterilecektir. |
Sonraki Konu














































