Ölçülendirmeye Parça Ekle/Çıkar
İç ve dış ölçülere, yeni bir obje ölçüsü eklemek veya çıkarmak için Ölçülendirmeye Parça Ekle/Çıkar komutu kullanılır.
Ölçülendirmeye Parça Ekle/Çıkar Komutunun Yeri
Ekleme/Çıkarma yapmak istediğiniz ölçülendirmeyi seçin farenin sağ tuşuna tıklayarak açılan menüden Ölçülendirmeye Parça Ekle/Çıkar satırına tıklayın.

Mimari Programda
Ribbon menü Değiştir sekmesi Obje Edit başlığı altından ulaşabilirsiniz.

Statik Programda
Ribbon menü Değiştir sekmesi Obje Edit başlığı altından ulaşabilirsiniz.

İşlem Adımları
İç veya dış ölçülendirme yapıp ölçülendirmeyi seçin.
Ölçülendirmenin üzerindeyken farenin sağ tuşunu tıkladıktan sonra açılan listeden Ölçülendirmeye Parça Ekle/Çıkar satırını ya da ribbon menüde Ölçülendirmeye Parça Ekle/Çıkar ikonunu tıklayın.
Seçilebileceğiniz objeler aktif, seçemeyeceğiniz objeler inaktif duruma gelecektir.
Ölçülendirmeye eklemek istediğiniz herhangi bir objeyi (aks, duvar vs.) veya objeleri seçin.
Farenin sağ tuşuna basın. Komut sonlanacak ve ölçülendirme yenilenecektir.
İşlem adımı |
|---|
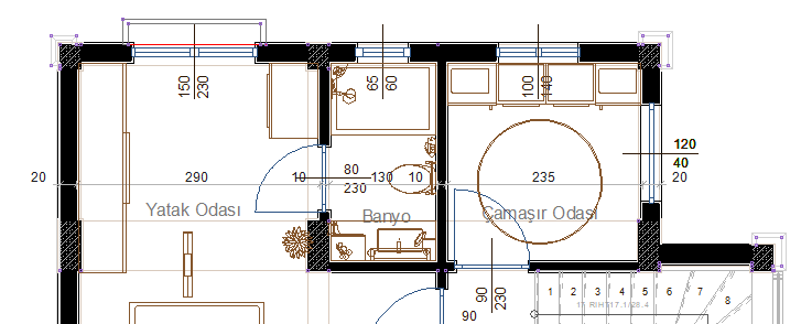
Ölçülendirmeye parça ekle/çıkar öncesi ![]() |
Ölçülendirmenin seçilmesi ![]() |
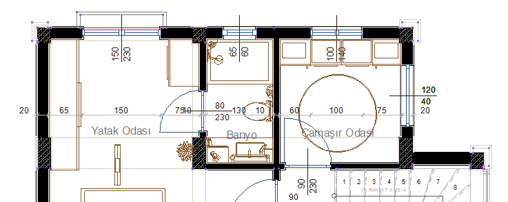
Ölçülendirmeye parça ekle/çıkar komutundayken ölçüye eklenecek ilk pencerenin seçilmesi ![]() |
Ölçüye eklenecek ikinci pencerenin seçilmesi ve farenin sağ tuşuna tıklanarak seçim işleminin sonlandırılması ![]() |
Ölçülendirmeye parça ekle/çıkar sonrası ![]() |
Sonraki Konu




