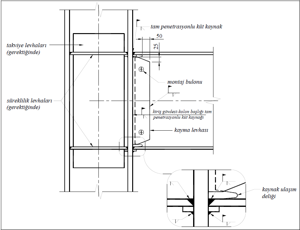
Tam Penetrasyonlu Küt Kaynaklı Birleşim Tasarımı
Tam Penetrasyonlu Küt Kaynaklı Birleşim, kolon başlığı - kiriş başlığı tam penetrasyonlu küt kaynak ile, kolon başlığı - kiriş gövdesi kaynaklı ve bulonlu levha ile birleştirilerek oluşturulur. Gövde levhası bulon kontrolü, kaynak kontrolü, levha kontrolü ve birleşim uygulama sınırları kontrolü birleşimin elemanlarının yerleşimine göre otomatik yapılır. Başlık Levhalı Kaynaklı Birleşim tasarımı Çelik Yapıların Tasarım, Hesap ve Yapım Esasları (ÇYTHYEDY) veya AISC 360-16 yönetmeliklerine göre otomatik yapılır ve birleşim raporu oluşturulur. Birleşim detayı uygulama sınırları TBDY Tablo 9B.5 'e göre kontrol edilir.
Tam Penetrasyonlu Küt Kaynaklı Birleşim hesabında, geometri kontrolünde kaynak erişim deliği uzunluğu ve yüksekliği, kayma levhası kolon başlığı kaynak kalınlığı, kayma levhası kiriş gövdesi kaynak kalınlığı ve süreklilik levhası kaynak kalınlığı kontrolü yapılır. Dayanım kontrolünde kiriş kayma akması, kayma levhası kolon başlığı kaynak dayanımı, kolon panel bölgesi kayması ve kayma bölgesi kalınlığı kontrolü yapılmaktadır.
Birleşim Geometrisi




GEOMETRİ KONTROLLERİ
Kaynak Erişim Deliği Uzunluğu
L ≥ max(1.5tw,40 mm) | ÇYTHYEDY 13.1.6 |
|
L | 50 mm | √ |
tw | 9 mm | √ |
Kaynak Erişim Deliği Yüksekliği
H ≥ max(tw, 20 mm) , H≤50mm | ÇYTHYEDY 13.1.6 | |
H | 30 mm | √ |
tw | 9 mm | √ |
Kayma Levhası Kolon Başlığı Kaynak Kalınlığı
a ≥ a min |
|
|
|
a | 9 mm |
| √ |
a min | 3.5 mm | Tablo 13.4 | √ |
Kayma Levhası Kiriş Gövdesi Kaynak Kalınlığı
a ≥ a min |
|
|
|
a | 6 mm |
| √ |
a min | 3.5 mm | Tablo 13.4 | √ |
Süreklilik Levhası - Kolon Başlığı Kaynak Kalınlığı
a ≥ a min |
|
|
|
a | 8 mm |
| √ |
a min | 4 mm | Tablo 13.4 | √ |
Süreklilik Levhası - Kolon Gövdesi Kaynak Kalınlığı
a ≥ a min |
|
|
|
a | 8 mm |
| √ |
a min | 4 mm | Tablo 13.4 | √ |
Birleşim Detayı Uygulama Sınırları (TBDY Tablo 9B.3)
Kiriş açıklığı/Kiriş enkesit yüksekliği | 9144 mm /450 mm=20.32 | ≥9.0 |
Kiriş enkesit yüksekliği, db | 450 mm | ≤ 920 |
Kiriş başlık kalınlığı, tbf | 15 mm | ≤25 |
Kolon enkesit yüksekliği | 650 mm | ≤ 920 mm |
Başlık levhası kaynağı | CJP | CJP |
tp | 10 mm | ≥9 mm TBDY 9B.4.7(a) |
a | 10 mm | 6≤a≤12 TBDY 9B.4.7(a) |
d | 50 mm | ≥50 mm TBDY 9B.4.7(a) |
Kayma levhası kiriş gövdesi kaynak kalınlığı | 6 mm | =6 mm TBDY 9B.4.7(c) |
Başlık levhası kaynağı | CJP | CJP |
Dayanım Kontrolleri
Kiriş Kayma Akması
Ag | ![]() |
|
Fy | 275 N/mm2 |
|
Rn | ![]() | ÇYTHYEDY 13.17 |
ΦRn | ![]() |
|
Gereken | Hazır | Oran | Kontrol |
|---|---|---|---|
209.62 kN | 534.6 kN | 0.392 | √ |
Kayma Levhasında Kolon Başlığı Kaynak Dayanımı
Fe | 490000 kN/m2 | ÇYTHYEDY 13.2 |
w | Birleşim menüsünden alınan kaynak kalınlığı 0.707*w değeridir. 9/0.707=12.73 mm | |
l | 380 mm | |
Rreq | ![]() | |
hp | 380 mm | |
tp | 10 mm | |
Ry | 1.30 | |
Fyp | 275 N/mm2 | |
Rn | ![]() | |
ΦRn | ![]() |
Gereken | Hazır | Oran | Kontrol |
|---|---|---|---|
815.1 kN | 904.94 kN | 0.901 | √ |
Kolon Panel Bölgesi Kayması
Pr | 429.124 kN | ÇYTHYEDY 13.29a |
Py | ![]() |
|
Fy | 275000 kN/m2 |
|
Ag | 28634.759 mm2 |
|
dc | 650 mm |
|
tw | 16 mm |
|
Rn | ![]() |
|
ΦRn | ![]() |
|
Gereken | Hazır | Oran | Kontrol |
|---|---|---|---|
1497.795 kN | 1716 kN | 0.873 | √ |
Kayma Bölgesi Kalınlığı
tmin≥u/180 | ![]() | TBDY 2018 9.3.4.2b |
tmin=tw | 16 mm |
|
tw | 16 mm |
|
u | 2016 mm |
|
Gereken | Hazır | Oran | Kontrol |
|---|---|---|---|
11.2 mm | 16 mm | 0.700 | √ |









