Kayma Birleşimi Tasarımı
Kayma Birleşimi, Mafsallı Birleşim veya Moment Aktarmayan Birleşim tasarımı Çelik Yapıların Tasarım, Hesap ve Yapım Esasları (ÇYTHYEDY) (GKT ve YDKT) ve AISC 360-16 (ASD ve LRFD) yönetmeliklerine göre otomatik yapılır. Bulon, kaynak ve levha kontrolleri çelik birleşim tipine uygun şekilde geometri kontrolleri ve dayanım kontrolleri otomatik yapılır.
Kayma birleşimleri türleri aşağıda listelenmiştir.
Kayma birleşimlerinin ve birleşim elemanlarının tasarımında kullanılan göçme mekanizmaları ve dayanım kabulleri ÇYTHYEDY 2018 ve AISC 360-16 yönetmeliklerine göre aşağıdaki gibi bulunur.
Kayma Etkisinde Tasarım Kabulleri
Kesme kuvvetinin tamamının enkesitin gövdesi tarafından taşındığı kabul edilir.
Kesme kuvveti ile eğilme momenti arasında bir etkileşim söz konusu değildir.
Kayma dayanımı şu formül kullanılarak belirlenir:

Kayma Dayanımı
Rijitleştirilmiş ve rijitleştirilmemiş tek ve çift simetri eksenli enkesitlerde gövde düzleminde karakteristik kayma dayanımı şu şekilde hesaplanır:

I enkesitli elemanlar için narinlik oranına göre katsayılar şu şekilde belirlenir:


İzin verilen kayma dayanımı ise şu şekilde hesaplanır:


Ezilme Etkili Birleşimler
Ezilme etkili birleşimlerde dayanım 2 adet sınır durum kontrol edilerek aralarından en küçüğüne göre belirlenir.
- Bulonda kesme kırılması
- Levhada ezilme sınır durumu
i) Levhada kesme sınır durumu
ii) Levhada ovalleşme

Bulonların Karakteristik Çekme ve Kayma Gerilmesi Dayanımları
Bulonların karakteristik çekme gerilmesi dayanımı Fnt, Tablo 2.2 de verilen bulon malzemesi karakteristik çekme dayanımı, Fub ye bağlı olarak hesaplanır.

Bulonların karakteristik kayma gerilmesi dayanımı, Fnv, iki farklı şekilde hesaplanır:
i) Bulonun diş açılmış gövde bölümü kayma düzlemi içinde ise aşağıdaki denklem ile
ii) Bulonun diş açılmış gövde bölümü kayma düzlemi dışında ise aşağıdaki denklem ile hesaplanır:

Çekme ve Kesme Kuvvetinin Ortak Etkisindeki Bulonun Karakteristik Çekme Kuvveti Dayanımı
Öngermeli yüksek dayanımlı bulonların, basit sıkılan bulonların ve diş açılan enkesitlerin karakteristik çekme kuvveti veya kesme kuvveti dayanımı, çekme etkisinde kopma veya kayma etkisinde kırılma sınır durumlarına göre hesaplanır.

Ezilme Etkili Birleşimler için Hesap


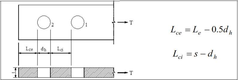
Levhada (bulon deliklerinde) Ezilme Sınır Durumu
Bulon gövdesi ile levha kenarı arasında basınç gerilmeleri oluşması nedeni ile bulon gövdesi ve/veya levhada ezilme yani plastik şekil değiştirmeler meydana gelir.
Bulon gövdesi ile delik kenarı arasındaki ezilme gerilme değerlerini hesaplamak için basınç etkisindeki bu yüzeyde gerilmelerin düzgün dağıldığı varsayımı ile dikdörtgen düzlem alanı kabulü ile hesap yapılır.
Bulon deliğinin ovalleşmesi

Levhada kesme kırılması


Bir bulon deliğinin karakteristik ezilme kuvveti dayanımı Rn, kayma etkisinde ezilme sınır durumu esas alınarak şu şekilde hesaplanır:
- Yükün doğrultusundan bağımsız olarak, standart dairesel, büyük dairesel ve kısa oval delikler veya oval boyuna ekseni yük doğrultusuna paralel olan uzun oval deliklerden oluşturulan birleşimler için

-Oval boyuna ekseni yük doğrultusuna dik uzun oval deliklerden oluşturulan birleşimler için

-Güvenlik katsayıları ise kullanılan yönteme göre şu şekildedir:

Kayma Etkisinde Dayanım
Kayma etkisindeki enkesitin ve birleşim elemanlarının karakteristik kesme kuvveti dayanımı, Rn kayma etkisinde akma ve kırılma sınır durumları için şu şekilde hesaplanır:
Akma Sınır Durumu

Kırılma Sınır Durumu

Blok Kırılma Sınır Durumu
Karakteristik blok kırılma dayanımı, Rn, kesme yüzeyi veya yüzeyleri boyunca akma ve kırılma sınır durumları ile çekme yüzeyi boyunca kopma sınır durumları esas alınarak hesaplanır.


Çekme Etkisinde Dayanım
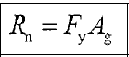
Çekme etkisindeki enkesitin ve birleşim elemanlarının karakteristik çekme kuvveti dayanımı, Rn kayma etkisinde akma ve kırılma sınır durumları için şu şekilde hesaplanır:
Akma Sınır Durumu

Kırılma Sınır Durumu

Simgeler
Ab : Diş açılmamış bulon gövdesi karakteristik enkesit alanı
Ag : Kayıpsız enkesit alanı
An : Net enkesit alanı
Ae : ÇYTHE 2018 7.1.3’te tanımlanan etkin net enkesit alanı
Agv : Kayma gerilmesi etkisindeki kayıpsız alan
Anv : Kayma gerilmesi etkisindeki net alan
Ant : Çekme gerilmesi etkisindeki net alan
Aw : Enkesit gövde alanı
Cv : Kesme burkulması için azaltma katsayısı
d : Bulonun karakteristik gövde çapı (Bulonun diş açılmamış gövdesinin çapı)
dh : Bulon deliği çapı
Fnt : Tablo 13.7 de verilen karakteristik çekme gerilmesi dayanımı
F’nt : Kesme kuvveti etkisi dikkate alınarak elde edilen azaltılmış karakteristik çekme gerilmesi
Fnv : Tablo 13.7 de verilen karakteristik kayma gerilmesi dayanımı
frv : YDKT veya GKT yük birleşimleri altında bulonun karakteristik gövde alanındaki en büyük kayma gerilmesi
Fy : Yapısal çelik karakteristik akma dayanımı
Fu : Yapısal çelik karakteristik çekme dayanımı
Fyb : Bulon karakteristik akma dayanımı
Fub : Bulon karakteristik çekme dayanımı
nsp : Kayma düzlemi sayısı
s : Bulon delikleri merkezleri arasındaki uzaklık
Le : Bulon deliği merkezinin birleştirilen eleman kenarına uzaklığı
t : Levha kalınlığı
Rnt : Karakteristik çekme kuvveti dayanımı
Rnv : Karakteristik kesme kuvveti dayanımı
Ubs : Çekme gerilmeleri yayılışını göz önüne alan bir katsayı
Sonraki Konu