Poligon Perdelerin Enkesit Kontrolleri
Düşey yükler ve deprem yüklerinin ortak etkisi altında hesaplanan eksenel basınç kuvveti kontrolü, Ac ≥ Ndm / (0.35 fck) otomatik yapılır.
Poligon perdelerin planda uzun kenarının kalınlığına oranın en az altı olması kontrolü otomatik yapılır.
Dikdörtgen ve U, L ve T gibi perdelerin gövde bölgesindeki perde kalınlığı kat yüksekliğinin 1/16’sından ve 250 mm’den küçük olmaması kontrolü otomatik yapılır ve kullanıcı uyarılır.
Perde kolu her iki ucundan yanal doğrultuda bir perde ile tutulu ise, perde kolu kalınlığı kat yüksekliğinin 1/20’sinden ve 250 mm’den küçük olmayacaktır, koşulları otomatik kontrol edilir.
Denk.(7.14) otomatik kontrol edilir ve kullanıcı uyarılır. İkisinin de sağlanması durumunda perde kalınlığı, binadaki en yüksek katın yüksekliğinin 1/20’sinden ve 200 mm’den az olmayacaktır koşulu kontrol edilerek geometri kontrolünde kullanıcı uyarılır.
Denk.(7.14), bodrum katlarının çevresinde çok rijit betonarme perdelerin bulunduğu binalarda zemin kat düzeyinde, diğer binalarda ise temel üst kotu düzeyinde uygulanır.
SİMGELER
Ac = Kolonun veya perde uç bölgesinin brüt enkesit alanı
ΣAg = Herhangi bir katta, gözönüne alınan deprem doğrultusuna paralel doğrultuda perde olarak çalışan taşıyıcı sistem elemanlarının enkesit alanlarının toplamı
ΣAp = Binanın tüm katlarının plan alanlarının toplamı
E = Deprem etkisi
fctd = Betonun tasarım çekme dayanımı
fck = Betonun karakteristik silindir basınç dayanımı
G = Sabit yük etkisi
Ndm = Düşey yükler ve deprem yüklerinin ortak etkisi altında (TS 498'de hareketli yükler için tanımlanmış olan hareketli yük azaltma katsayıları da dikkate alınarak) hesaplanan eksenel basınç kuvvetlerinin en büyüğü
Q = Hareketli yük etkisi
Vt = Bölüm 4 ’e göre binaya etkiyen toplam deprem yükü (taban kesme kuvveti)
Poligon Perdeler İçin Sağlanan En Kesit Koşulları
TBDY 7.6.1 'e göre bu aşağıdaki en kesit koşulları bodrum perdeleri dışındaki poligon perdeler için geçerlidir. Bodrum perdeleri için bu en kesit koşulları geçerli değildir.
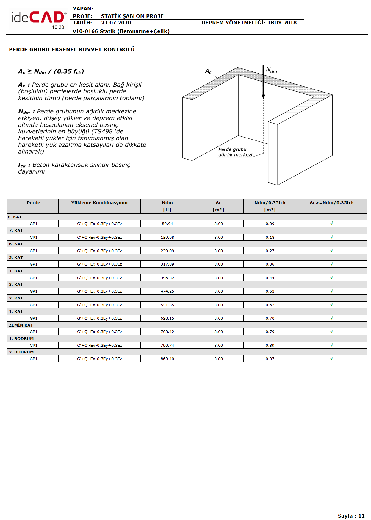
TBDY Madde 7.6.1.1 'e göre düşey yükler (G ve Q) ve deprem yüklerinin (E) ortak etkisi altında (G+Q+E) hesaplanan eksenel basınç kuvvetlerinin en büyüğü Ndm , perdenin brüt enkesit alanı Ac ve betonun karakteristik basınç dayanımı fck olmak üzere aşağıda verilen koşul sağlanmalıdır.
Ac ≥ Ndm / ( 0.35fck )
Aşağıdaki örnek bir Perde Grubu Eksenel Kuvvet Kontrolü Raporu gösterilmiştir. Resimde görüldüğü üzere 7.6.1.1 koşulunun bütün parametreleri verilmiş ve kontrol yapılmıştır.

TBDY Madde 7.6.1.2 'ye göre perdelerin plandaki uzun kenarının kalınlığına oranı en az altı olmalıdır. Aynı zamanda 7.6.1.2 (a), (b) ve (c) maddelerinde perde kalınlığı ile ilgili koşullar verilmiştir.
(a) 7.6.1.3 ’te belirtilen özel durumlar dışında, dikdörtgen ve U, L ve T gibi perdelerin gövde bölgesindeki perde kalınlığı kat yüksekliğinin 1/16 ’sından ve 250 mm ’den küçük olmayacaktır.
(b) Dikdörtgen perde veya perde kolu kalınlığı perdenin veya perde kolunun plandaki yanal doğrultuda tutulmamış boyunun 1/30 ’undan küçük olmayacaktır.
(c) Perde kolu her iki ucundan yanal doğrultuda bir perde ile tutulu ise, perde kolu kalınlığı kat yüksekliğinin 1/20 ’sinden ve 250 mm’den küçük olmayacaktır.
TBDY Madde 7.6.1.2 'de verilen koşullar dışında modelleme yapıldığında hem Getometri Kontrolleri 'nde hem de raporlarda bu durum belirtilmektedir. Aşağıdaki resimde örnek bir Getometri Kontrolü gösterilmiştir. Bu kontrolde 7.6.1.2 'de verilen koşulların kontrol edildiği görülmektedir.

TBDY Madde 7.6.1.3 'e göre taşıyıcı sistemi perdelerden oluşan binalarda Denklem 7.14 ile verilen koşulların her ikisi de sağladığı durumda poligon perde kolu kalınlığı, binadaki en yüksek katın yüksekliğinin 1/20 'sinden ve 200 mm 'den az olmamalıdır.

7.6.1.2 ve 7.6.1.3 kontrolü için gerekli şartlar Perde Grubu Ön Bilgileri raporunun Grup Perde Boyut ve Donatı Koşulları başlığı altında Perde Kolu Kalınlığı satırında verilmiştir. Aşağıdaki resimde Perde Grubu Ön Bilgileri raporunun bir örneği görülmektedir.
