Kolon Ankraj Çizimleri
Kolon ankraj çizimlerinin hazırlanması için Kolon Ankraj Çizimleri komutu kullanılır.
Kolon Ankraj Çizimleri Komutunun Yeri
Ribbon menüde çelik sekmesi Çizim Oluştur başlığından ulaşabilirsiniz.

İşlem Adımları
Kolon Ankraj Çizimleri ikonuna tıklayın.
Kolon ankraj çizimleri oluşturulacaktır.
Çizimleri oluşturmadan önce çelik çizimleri diyaloğundan ayarlar butonuna tıklayarak Çelik Çizim Ayarlarıdiyaloğuna ulaşabilirsiniz. Bu diyalogdan pafta ayarları, ölçekler, yazı tipleri vb. çelik çizimlerle ilgili parametrelere ulaşabilirsiniz.
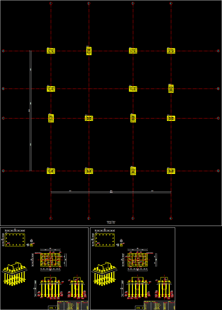
Örnek kolon ankraj çizimleri |
|---|
![]() |
Sonraki Konu
