Kiriş - Kolon Birleşim Bölgeleri
9.3.4.1 – Süneklik düzeyi yüksek moment aktaran çelik çerçevelerin kiriş-kolon birleşimlerinde aşağıdaki üç koşul bir arada sağlanacaktır.
(a) Birleşim en az 0.04 radyan göreli kat ötelemesi açısı’nı (göreli kat ötelemesi/kat yüksekliği) sağlayabilecek kapasitede olacaktır. Bunun için, deneysel ve/veya analitik yöntemlerle geçerliliği kanıtlanmış olan detaylar kullanılacaktır. Geçerliliği kanıtlanmış olan çeşitli bulonlu ve kaynaklı birleşim detayı örnekleri ve bunların uygulama sınırları Ek 9B’de verilmiştir.
(b) Birleşimin kolon yüzündeki Muc gerekli eğilme momenti dayanımı, Ek 9B’de tanımlanan detaylarda, düğüm noktasına birleşen kirişin olası plastik eğilme momenti, Mpr ile kiriş ucundaki olası plastik mafsalın yeri dikkate alınarak, Denk.(9.11) ile hesaplanacak eğilme momenti dayanımından daha az olmayacaktır.

Gerekli eğilme momenti dayanımı’nın belirlenmesinde, kirişin plastik mafsal ve kolon yüzü arasındaki bölümü için, düşey yüklerden gelen ilave eğilme momentinin katkısı da dikkate alınabilir.
(c) Birleşimin boyutlandırılmasında kullanılacak Vuc kesme kuvveti, akma (mekanizma) durumu esas alınarak belirlenen kesme kuvveti ile kiriş ucundaki plastik mafsal noktalarında (1.2G +0.5Q +0.2S ) yük birleşimi altında hesaplanacak kesme kuvveti toplanarak Denk.(9.12) ile elde edilecektir. Gerekli kesme kuvveti dayanımı’nın belirlenmesinde, kirişin plastik mafsal ve kolon yüzü arasındaki bölümü için, düşey yüklerden gelen ilave kesme kuvvetinin katkısı da dikkate alınabilir.

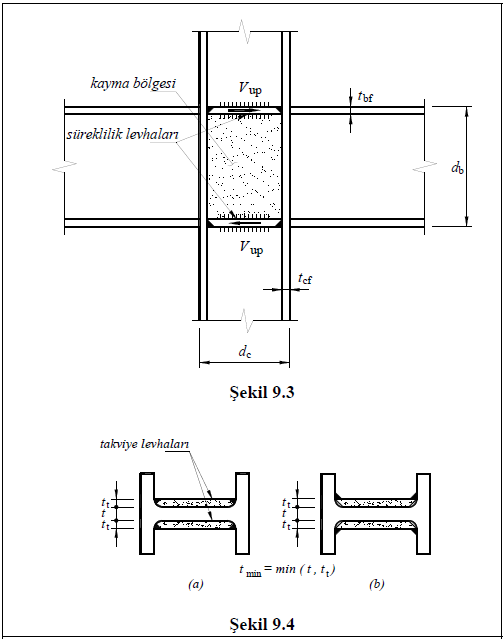
9.3.4.2 – Kiriş-kolon birleşim detayında, kolon ve kiriş başlıklarının sınırladığı kayma bölgesinin (Şekil 9.3) Vup gerekli kesme kuvveti dayanımı, kolona birleşen kirişlerin olası plastik momentleri etkisinden meydana gelen kolon kesme kuvveti esas alınarak Denk.(9.13) ile hesaplanacaktır.

(a) Kayma bölgesi yeterli kesme kuvveti dayanımına sahip olacak şekilde boyutlandırılacaktır. Bunun için, kayma etkisinde akma sınır durumu gözönüne alınarak, kayma bölgesinin tasarım kesme kuvveti dayanımı φv =1.0 (YDKT) ile belirlenecektir. Bu koşulun sağlanamaması halinde kayma bölgesi, gövde takviye levhaları veya örneğin köşegen doğrultusunda levhalar eklenerek güçlendirilecektir.
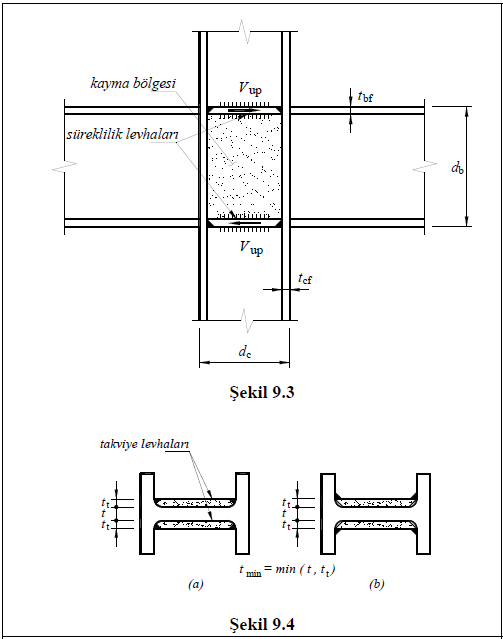
(b) Kolon gövde levhasının ve eğer kullanılmış ise takviye levhalarının her birinin en küçük kalınlığı, tmin ≥ u/180 koşulunu sağlayacaktır (Şekil 9.4). Bu koşulun sağlanmadığı durumlarda, takviye levhaları ve kolon gövde levhası birlikte çalışmaları sağlanacak şekilde birbirlerine kaynaklanacak ve levha kalınlıkları toplamının ∑t ≥ u /180 koşulunu sağladığı kontrol edilecektir.
(c) Kayma bölgesinde takviye levhaları kullanılması halinde, bu levhaların kolon başlık levhalarına bağlanması için tam penetrasyonlu küt kaynak veya köşe kaynağı kullanılacaktır (Şekil 9.4). Bu kaynaklar, takviye levhası tarafından karşılanan kesme kuvveti gözönüne alınarak boyutlandırılacaktır.

9.3.4.3 – Moment aktaran kiriş-kolon birleşim detaylarında, kolon gövdesinin her iki tarafına, kiriş başlıkları seviyesinde süreklilik levhaları konularak kiriş başlıklarındaki çekme ve basınç kuvvetlerinin kolona (ve iki taraflı kiriş-kolon birleşimlerinde komşu kirişe) güvenle aktarılması sağlanacaktır (Şekil 9.3).
(a) Süreklilik levhalarının kalınlıkları, tek taraflı kiriş birleşimlerinde birleşen kirişin başlık kalınlığından, kolona iki taraftan kiriş birleşmesi durumunda ise birleşen kirişlerin başlık kalınlıklarının büyüğünden daha az olmayacaktır.
(b) Süreklilik levhalarının kolon gövde ve başlıklarına bağlantısı için tam penetrasyonlu küt kaynak kullanılacaktır. Süreklilik levhasının kolon gövdesine bağlantısı için köşe kaynağı da kullanılabilir. Ancak bu kaynağın, süreklilik levhasının kendi düzlemindeki kesme kapasitesine eşit bir kuvveti kolon gövdesine aktaracak boy ve kalınlıkta olması gereklidir.
(c) Kolon başlık kalınlığının

koşullarının her ikisini de birlikte sağlaması durumunda süreklilik levhasına gerek olmayabilir.
9.3.4.4 – Kiriş-kolon birleşim detayının boyutlandırılmasında, Ek 9B’de verilen hesap esasları kullanılacaktır.
9.3.4.5 – Kapasitesi korunmuş bölgelerde, 9.2.9’da verilen koşullara uyulacaktır. Bu bölgeler içinde başlıklı kayma elemanlarının kullanılmasına izin verilmez.
Sonraki Konu
