Örnek Kolon İç Kuvvet Sonuçları (Birinci Yükleme Durumu)

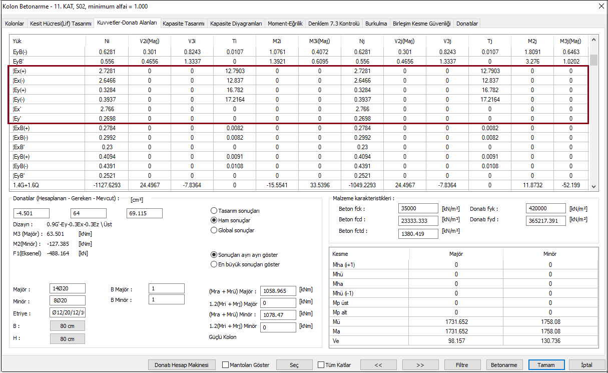
- Birinci yükleme durumu için monolitik çözüm iç kuvvet sonuçları aşağıdaki gibidir. Örnek olarak 11.kat S02 kolonu kullanılmıştır. Üst bölüm elemanı olan bu kolonda tasarıma esas iç kuvvetleri belirlemede sadece birinci yükleme durumuna ait sonuçlar kullanılır. 

- Birinci yükleme durumu için aynı kolonun alt ve üst uclarının mafsallı olduğu çözümden elde edilen sonuçlar 

- Kesme kuvveti ve moment değerlerinin 0 olduğu görülmektedir. 
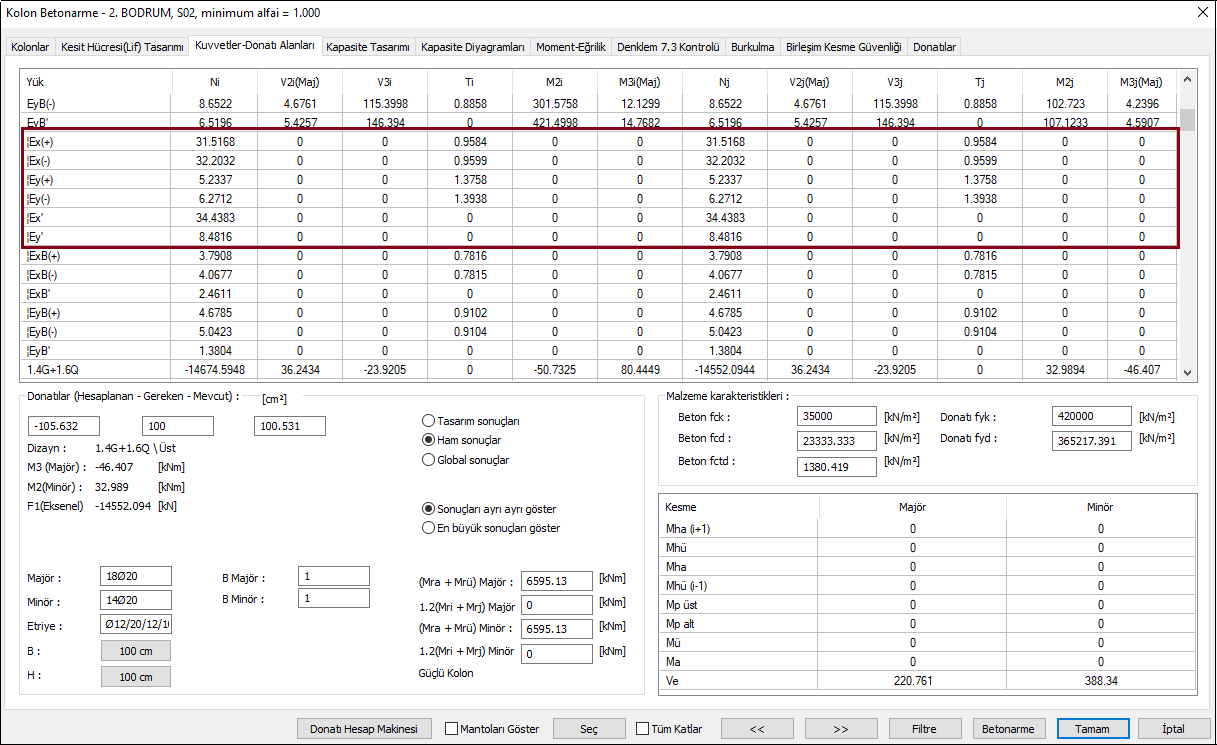
- 2. bodrum kat S02 kolonu için üst bölüm analiz sonuçları aşağıdaki gibidir. Bodrum kat elemanlarında tasarıma esas iç kuvvetleri belirlemede hem birinci yükleme hem ikinci yükleme sonuçları kullanılır. 
- Tasarıma esas iç kuvvetlerin hesabı bölümünde bu konu detaylandırılacaktır. 
-Monolitik

-Mafsallı

