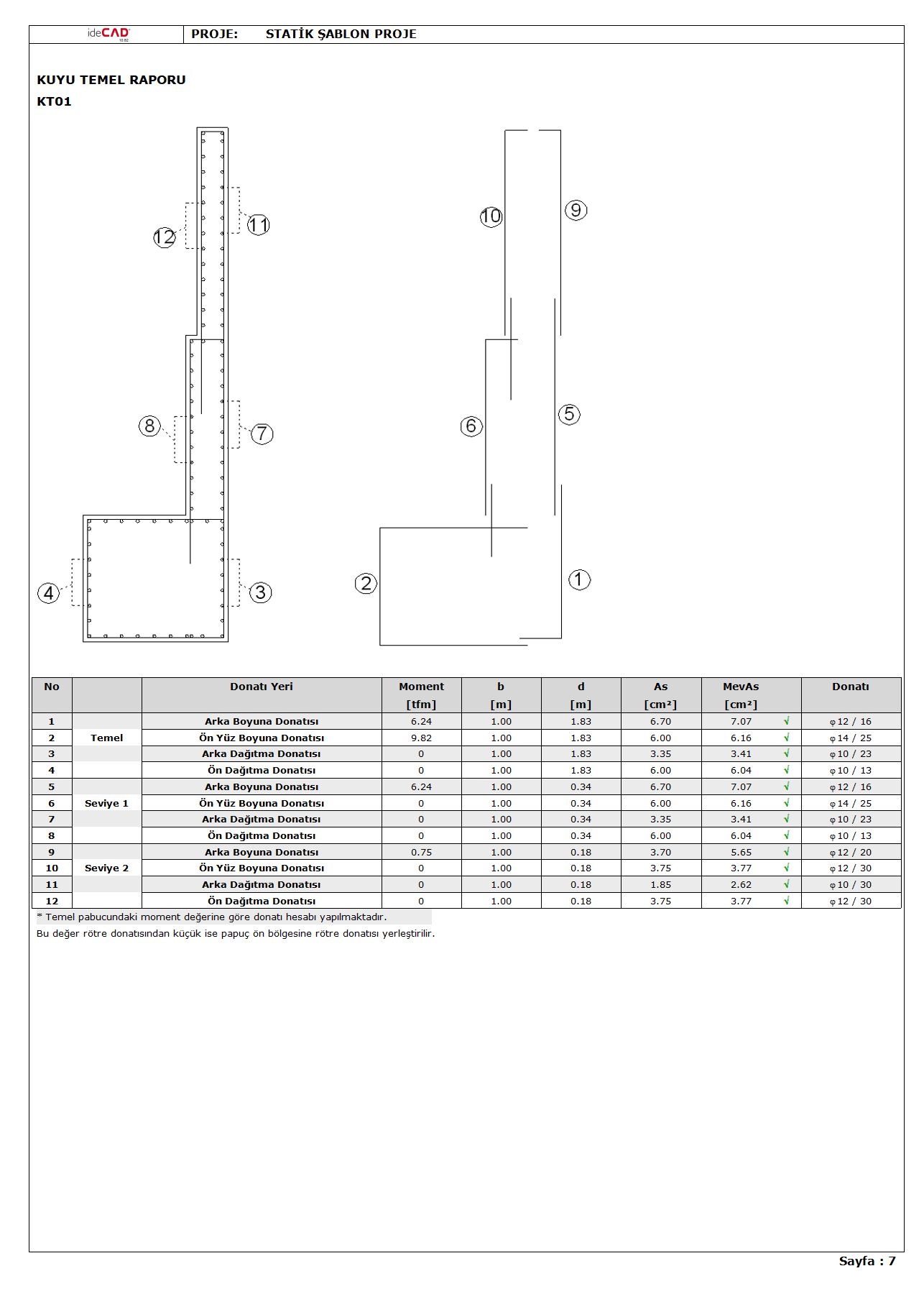
Kuyu Temel Raporu
Kuyu temellerin raporunu hazırlar.
Kuyu Temel Raporunun Yeri
Raporlar sekmesi Temel - Zemin başlığı altından ulaşabilirsiniz.

Örnek kuyu temel raporu sayfaları ![]() ![]() ![]() ![]() ![]() ![]() ![]() |
Sonraki Konu
Kuyu temellerin raporunu hazırlar.
Raporlar sekmesi Temel - Zemin başlığı altından ulaşabilirsiniz.

Örnek kuyu temel raporu sayfaları ![]() ![]() ![]() ![]() ![]() ![]() ![]() |
Sonraki Konu