Yeni Korkuluk Tipi Oluşturma
Korkuluk çizmeden önce korkuluk tipleri, arşivden seçilip kullanılır. Ayrıca arşivde bulunmayan korkuluk tipleri için kendi korkuluk tipleri oluşturulur. Altta şekli görülen tipik bir korkuluk adım adım oluşturularak, yeni bir korkuluk tipi oluşturmanın temel mantığı ortaya koyulacaktır.
Korkuluk Tip 1’in Oluşturulması

Seçilen korkuluk tipinde 2x2 cm boyutunda 4 adet küpeşte ve 6x4 cm boyutunda iki adet korkuluk profili bulunmaktadır. 2x2 cm ve 6x4 cm boyutlarında profiller oluşturarak arşive kaydedin.
Korkuluğun Sıfırlanması
Korkuluk Ayarları ikonunu tıklayın.
Korkuluk Ayarları diyaloğu açılacaktır. Korkuluk Birim Ayarları Sekmesine geçin.
Diyaloğun altında bulunan Korkuluğu Sıfırla butonunu tıklayın. Bu işlem diyaloğu temizleyecektir.
İşlem adımı |
|---|
Korkuluğu sıfırla butonunun tıklanmas ![]() |
Korkuluğun sıfırlanması ![]() |
Korkuluk Profillerinin Oluşturulması
Korkuluk profilleri tablosunda N=1 isimli ilk satıra gidip profil sütununa tıklayın.
Açılan listeden daha önce tanımladığımız ve arşive kaydettiğimiz 4x6 cm boyutlu profili seçin.
Korkuluk profili tablosunda N=2 isimli ikinci satıra gelin.
Uzaklık sütununa iki korkuluk arası mesafe olan 1.2 değerini yazın.
Profil sütununa tıklayıp listeden 4x6 cm boyutlu profili seçin.
İkinci korkuluk oluşacaktır. Korkuluğun görüntüsü diyalogda sağda izlenebilir.
İşlem adımı |
|---|
N=1 satırına ait profili 4x6 cm seçilmesi ![]() |
N=2 satırına ait uzaklık değeri olarak 1,2 yazılması ![]() |
N=2 satırına ait profili 4x6 cm seçilmesi ![]() |
Korkuluk profillerinin oluşması ![]() |
Küpeşte Profillerinin Oluşturulması
Küpeşte profilleri tablosunda N=1 isimli ilk satırda yüksekliği 1 metre yapın ve profil sütununa tıklayın.
Açılan listeden daha önce tanımladığımız ve arşive kaydettiğimiz 2x2 cm boyutlu profili seçin.
Tablonun altında bulunan Kopya butonunu tıklayın. 2. satır oluşacaktır.
2. satırda yüksekliği 0.75 yazın ve profil olarak 2x2 cm seçili olduğunu teyit edin. (Satırı kopyaladığımız için aynısı olmuştur)
Tablonun altında bulunan Kopya butonunu tıklayın. 3. satır oluşacaktır.
3. satırda yüksekliği 0.50 yazın ve profil olarak 2x2 cm seçili olduğunu teyit edin.
Tablonun altında bulunan Kopya butonunu tıklayın. 4. satır oluşacaktır.
4. satırda yüksekliği 0.25 yazın ve profil olarak 2x2 cm seçili olduğunu teyit edin.
Bu işlemden sonra korkuluk tipini oluşturma işlemi sonlanmıştır. Korkuluğun görüntüsü diyalogda sağda izlenebilir.
Tamam butonunu tıklayarak korkuluk ayarlarından çıkın.
Korkuluk komutu aktif haldedir.
Çizim alanında noktaları tıklayarak oluşturduğunuz korkuluğu çizebilirsiniz.
İşlem adımı |
|---|
N=1 satırına ait profili 2x2 cm seçilmesi ![]() |
Kopya butonunun tıklanması ![]() |
N=2 satırına ait yükseklik değeri olarak 0.75 yazılması ![]() |
Kopya butonunun tıklanması ve N=3 satırına ait yükseklik değeri olarak 0.50 yazılması ![]() |
Kopya butonunun tıklanması ve N=4 satırına ait yükseklik değeri olarak 0.25 yazılması ![]() |
Küpeştelerin oluşması ![]() |
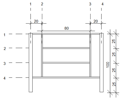
Korkuluk Tip 2’nin Oluşturulması

Şekilde yatay ve dikey yönde gösterilen numaralar küpeşte ve dikmelerin indeks numaralarıdır (Bunlar, tabloda N olarak görünecek olan değerlerdir).
Korkuluk Profillerinin Oluşturulması
Korkuluk profili tablosunda;
Önce araya iki adet korkuluk ekleyin.
N=2 satırındayken Öne Kopyala butonuna 2 kere tıklayarak 2 tane daha korkuluk profili ekleyin.
N=2 satırına gelip uzaklık değerini 0.2 yapın. Profil sütununa tıklayıp 2x2 cm boyutlu profili seçin.
N=3 satırına gelip uzaklık değerini 0.8 yapın. Profil sütununa tıklayıp 2x2 cm boyutlu profili seçin.
N=4 satırına gelip uzaklık değerini 0.2 yapın.
İşlem adımı |
|---|
N=2 satırındayken Öne Kopyala butonuna 2 kere tıklayarak 2 tane daha korkuluk profili eklenmesi ![]() |
N=2 satırına ait uzaklık değeri olarak 0.2 yazılması ve profil olarak 2x2 cm seçilmesi ![]() |
N=3 satırına ait uzaklık değeri olarak 0.8 yazılması ve profil olarak 2x2 cm seçilmesi ![]() |
N=4 satırına ait uzaklık değeri olarak 0.2 yazılması ![]() |
Korkulukların oluşması ![]() |
Küpeştelerin Düzenlenmesi
Şekle uyması için sol/sağ korkuluk indeks numaralarını değiştirilmelidir. Bunlar tabloda varsayılan olarak görünmektedir.
Küpeşte tablosunda;
2. küpeşte satırına gelin.
Sol korkuluk indeksi değerini listeden seçerek 2 yapın. Bu değişiklik 2. sırada bulunan küpeşte soldan 2. korkulukta bitecek anlamındadır. Aynı şekilde Sağ korkuluk indeksini 3 yapın.
3. küpeşte satırına gelin.
Sol korkuluk indeksi değerini listeden seçerek 2 ve sağ korkuluk indeksi değerleri ise 3 yapın.
İşlem adımı |
|---|
N=2 satırındayken sol korkuluk indeksi değerini listeden 2, sağ korkuluk indeksi değerini listeden 3 seçilmesi ![]() |
N=3 satırındayken sol korkuluk indeksi değerini listeden 2, sağ korkuluk indeksi değerini listeden 3 seçilmesi ![]() |
Küpeştelerin değişmesi ![]() |
Korkuluk Profillerinin Düzenlenmesi
Şekle uyması için alt küpeşte indeks numaralarını değiştirilmelidir. Bunlar tabloda varsayılan olarak görünmektedir.
Korkuluk profili tablosunda;
2. satırı tıklayın.
Alt küpeşte indeksi değerini listeden seçerek 4 yapın.
Benzer şekilde 3. satırı tıklayın.
Alt küpeşte indeksi değerini listeden seçerek 4 yapın.
Bu işlemden sonra korkuluk tipini oluşturma işlemi sonlanmıştır. Korkuluğun görüntüsü diyalogda sağda izlenebilir.
Tamam butonunu tıklayarak korkuluk ayarlarından çıkın.
Korkuluk komutu aktif haldedir.
Çizim alanında noktaları tıklayarak oluşturduğunuz korkuluğu çizebilirsiniz.
İşlem adımı |
|---|
N=2 satırındayken alt küpeşte indeksi değerini listeden 4 seçilmesi ![]() |
N=3 satırındayken alt küpeşte indeksi değerini listeden 4 seçilmesi ![]() |
Korkulukların değişmesi ve korkuluk tipinin tamamlanması ![]() |
Korkuluk Tip 3’ün Oluşturulması
3.tip olarak ortada cam bir panel olan bir korkuluk yapımı anlatılacaktır. Daha önce oluşturduğumuz korkuluk üzerinde değişiklikler yapılarak panelli korkuluk elde edilecektir.
Küpeşte Profillerinin Silinmesi
İlk olarak küpeşte tablosunda yer alan 2. ve 3. satırdaki küpeşte profillerini silin.
Küpeşte tablosunda;
İmleci 2. satıra getirin. Sil butonu tıklayın.
İmleci tekrar 2. satıra getirin. Sil butonu tıklayın.
İşlem adımı |
|---|
N=2 satırındayken sil butonuna tıklanması ![]() |
N=3 satırındayken sil butonuna tıklanması ![]() |
Korkulukların değişmesi ![]() |
Korkuluk Profillerinin Değiştirilmesi
Korkuluk profili tablosunda yer alan 2. ve 3. satırdaki profil seçeneğini değiştirin.
Korkuluk profili tablosunda;
2. satırdaki profil sütununa tıklayın ve listeden hiçbiri satırını seçin.
3. satırdaki profil sütununa tıklayın ve listeden hiçbiri satırını seçin.
İşlem adımı |
|---|
N=2 satırına ait profili hiçbiri seçilmesi ![]() |
N=3 satırına ait profili hiçbiri seçilmesi ![]() |
Korkulukların değişmesi ![]() |
Panelin Oluşturulması
Plaka tablosunda;
Ekle butonuna tıklayarak yeni bir plaka ekleyin.
Alt küpeşte indeksi sütununa tıklayarak listeden 2 değerini seçin.
Sol korkuluk indeksi sütununa tıklayarak listeden 2 değerini seçin.
Sağ korkuluk indeksi sütununa gelerek listeden 3 değerini seçin
Kalınlık sütununa gelip 1 cm değerini verin.
Materyal sütununa gelin ve listeden Cam materyali seçin.
Bu işlemden sonra korkuluk tipini oluşturma işlemi sonlanmıştır. Korkuluğun görüntüsü diyalogda sağda izlenebilir.
Tamam butonunu tıklayarak korkuluk ayarlarından çıkın.
Korkuluk komutu aktif haldedir.
Çizim alanında noktaları tıklayarak oluşturduğunuz korkuluğu çizebilirsiniz.
İşlem adımı |
|---|
Plakalar tablosunda yer alan ekle butonuna tıklayarak panelin eklenmesi ![]() |
Alt küpeşte indeksi değerinin listeden 2 seçilmesi ![]() |
Sol korkuluk indeksi değerinin listeden 2 seçilmesi ![]() |
Sağ korkuluk indeksi değerinin listeden 3 seçilmesi ![]() |
Kalınlık değerini 0.01 verilmesi ve materyal olarak cam seçilmesi ![]() |
Panelin oluşması ve korkuluk tipinin tamamlanması ![]() |
Sonraki Konu


































