Merdiven Edit
Merdiven Edit komutuyla mevcut merdivenler için düzenlemeler yapılır. Düzenleme yapılmak istenen merdivenin özelliklerine girilir. Merdiven eni, boyu, yüksekliği, konstrüksiyon tipi, materyal, korkuluk ve küpeşte tipleri gibi parametreler merdiven edit diyaloğunda yer alır.
Merdiven Edit Komutunun Yeri
Ribbon menü Değiştir sekmesi Merdiven başlığı altından ulaşabilirsiniz.

Ayrıca düzenleme yapılacak merdiveni seçip Değiştir sekmesi Obje Özellikleri ikonunu tıklayarak da Merdiven Edit diyaloğuna ulaşabilirsiniz.

Parametreler-2D Görüntü Sekmesi

Özellikler |
|---|
Merdiven kolu genişliği ![]() Merdiven kolu genişliği belirlenir. |
Merdiven kolu uzunluğu ![]() Merdiven kolu uzunluğu belirlenir. |
Sahanlık eni ![]() Sahanlık eni belirlenir. |
Sahanlık boyu ![]() Sahanlık boyu belirlenir. |
Sahanlık kotu ![]() Sahanlığın yerden yüksekliği belirlenir. |
Korkuluk uzaklığı ![]() Korkuluğun merdiven kenarına olan uzaklığı belirlenir. |
Korkuluk kalınlığı ![]() Korkuluk kalınlığı belirlenir. |
Merdiven kalınlığı ![]() Merdiven plağının kalınlığı belirlenir. |
Merdiven Yüksekliği ![]() Merdivenin yüksekliği belirlenir. |
Korkuluk yüksekliği ![]() Korkuluğun yüksekliği belirlenir. |
Çıkış hattı offset mesafesi ![]() Çıkış hattının merdiven dış kenarından ne kadar uzakta olacağı belirlenir. |
Çıkış hattı daire yarıçapı ![]() Çıkış hattı daire yarıçapı belirlenir. |
Çıkış hattı ok uzunluğu ![]() Çıkış hattı okunun büyüklüğü belirlenir. |
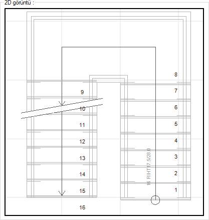
2D görüntü ![]() Merdivenin 2B plan görüntüsü yer alır. Parametrelerde yapılan değişiklikler eş zamanlı olarak 2D görüntüye yansıtılır. |
Not
Parametreler-2D görüntü sekmesinde çıkan parametreler merdiven tipine göre değişiklik gösterebilmektedir.
3D Görüntü Sekmesi

Özellikler |
|---|
Öngörüntü ![]() Seçilen merdivenin üç boyutlu görüntüsü yer alır. 3B görüntüyü yaklaştırmak, uzaklaştırmak, döndürmek mümkündür. Bu şekilde merdiven özellikleri üç boyutlu olarak incelenebilir. |
Çıkış yönünü çevir ![]() Merdiven kollarının çıkış yönünü değiştirir. Örneğin soldan sağa çıkan bir merdiveni sağdan sola çıkan merdiven yapar. |
Korkuluk taşı ![]() Fare imleci 3B merdiven modeli üzerinde taşınmak istenen korkuluk üzerine getirilir. Farenin sol tuşu tıklanıp basılı tutularak fare hareket ettirilir. Fare ile birlikte ilgili korkuluğun da hareket ettiği görülür. Korkuluk istenen pozisyona getirilince sol tuş bırakılır. |
Korkulukları ilk haline getir ![]() Korkuluk taşı komutu ile yerleri değiştirilen korkuluklar tekrar eski yerlerine getirir. |
Limon kirişi sakla ![]() Limon kirişli merdivenlerde herhangi bir limon kirişinin çizilmemesi istenebilir. Bu durumda ilgili limon kirişlerini kaldırmak için bu buton tıklanır. İlgili limon kirişi farenin sol tuşu ile tıklandığında, limon kiriş kalkar (saklanır). |
Limon kirişleri göster ![]() Saklanan limon kirişlerin tekrar gösterilmesi isteniyorsa bu buton tıklanır. |
Konstrüksiyon Sekmesi

Özellikler | |
|---|---|
Konstrüksiyon tipleri ![]() Düz, kırımlı, limon kirişli ve rampa tipi merdiven sistemlerinden biri farenin sol tuşu ile tıklanarak seçilir. | |
Basamak parametreleri ![]() D1 basamak kaplaması burun uzunluğu, D2 rıht kaplaması kalınlığı, D3 basamak kaplaması kalınlığıdır. Kaplama istenmiyorsa bu değerler sıfır girilir. | |
Limon kiriş parametreleri ![]() LK1 ve LK2 limon kiriş yüksekliğini tayin eder. Şekil üzerinde gösterilmiştir. Kalınlık parametresi de limon kiriş kalınlığıdır. | |
Merdiven adı ![]() Merdivenin adı girilir. | |
Merdiven kotu ![]() Merdiven alt noktasının kat tabanından ölçülen kotudur. | |
Korkuluk yüzeyi sayısı ![]() Korkuluk yüzey sayısı, korkuluk düşey yüzey sayısını (korkuluk kesitini) belirler. Korkuluk yüzey sayısı 4 olursa, korkuluk kesiti kare olur. | |
No.lu basmaktan sonra no. yazma ![]() Buraya girilen basamak numarasından sonraki basamaklar merdiven üzerinde numaralandırılmaz. | |
Kesit hattını çiz ![]() Merdiven üzerine kesit hattı çizilmesi isteniyorsa işaretlenir. | |
1 ve 2. kaplama çizgisi ![]() Planda merdiven üzerinde kaplamaları gösteren çizgilerin nasıl çizileceğini belirleyen parametrelerdir. Par1 ve Par2 merdivenin sağ ve sol kenarındaki kaplama çizgilerinin uzunluklarıdır. Tam seçeneği seçilirse kaplama çizgisi merdivenin bir kenarından diğer kenarına kadar çizilir. Oransal seçilirse girilen Par1 ve Par2 uzunluklarının merdiven genişliğine oranlarına göre çizilir. Sabit uzunluk seçilirse Par1 ve Par2 uzunlukları kadar çizilir. | |
Tanımlama ![]() Merdiven tanım satırıdır. Değiştirilebilir. Ancak merdivene herhangi bir etkisi olmaz. Sadece tanımlama değişmiş olur. | |
Alanlar Sekmesi

Özellikler |
|---|
Merdiven alan adı ![]() Kutucuğun sağındaki aşağı ok butonu tıklandığında alan listesi açılır. Buradaki her alan bir merdiven kolunu temsil eder. Merdiven tek koldan ibaretse listede tek alan bulunur. Buradaki parametreler her merdiven kolu (alan) için ayrı ayarlanır. |
Basamak sayısı belirleyici parametre ![]() Sağdaki kutucuğa ilgili alan (merdiven kolu) için istenen basamak sayısı girilir. Kol uzunluğu ve yüksekliği bellidir ve girilen sayıya göre basamak genişliği ve rıht yüksekliği otomatik olarak hesaplanır ve ilgili kutucuklara yazılır. |
Basamak yüksekliği belirleyici parametre ![]() Sağındaki kutucuğa istenen rıht yüksekliği girilir. Girilen rıht yüksekliği sabit tutulur. Basamak genişliği ve basamak sayısı girilen basamak yüksekliğine bağlı olarak otomatik hesaplanır ve ilgili kutucuklara yazılır. |
Basamak genişliği belirleyici parametre ![]() Sağındaki kutucuğa istenen basamak genişliği girilir. Bu durumda basamak genişliği sabit tutularak rıht yüksekliği ve basamak sayısı bu değere bağlı olarak otomatik hesaplanır ve ilgili kutucuklara yazılır. |
Son basamak üst kot seviyesinde ![]() Bu seçenek işaretlenirse rıht sayısı basamak sayısı belirleyici parametre değeri kadar olur. Örneğin; basamak sayısı belirleyici parametre 7 ise ilgili kolda 7 rıht olacaktır. Bu, basamak sayısının 6 olması anlamına gelir. 7.inci basamak da vardır fakat bu basamak sahanlık ya da merdivenin birleştiği döşeme kotundadır. Seçenek işaretlenmezse rıht sayısı, basamak sayısı belirleyici parametre değerinden bir fazladır. Yani, basamak sayısı belirleyici parametre 7 ise, ilgili kolda 8 rıht olacaktır. Bu durumda basamak sayısı da 7 olacaktır. Son basamak sahanlıktan bir rıht yüksekliği kadar altta olacaktır. |
İlk/son basamakta kaplamaya göre yükseklik ayarlaması ![]() Merdivende kaplama kullanılıyorsa, rıht yüksekliklerinin kaplama kalınlıkları dikkate alınarak ayarlanması için uygun seçenek işaretlenir. Kaplamaya göre yükseklik ayarlaması bazı kollarda ilk basamakta, bazı kollarda da son basamakta yapılabilir. |
Başlangıçtaki dengelenmemiş basamak adedi ![]() Dönen merdivenlerde dengelemenin başlayacağı basamak buradan belirlenir. Örneğin; 2 girilirse, başlangıçtaki iki basamak için dengeleme yapılmaz. Üçüncü basamaktan itibaren dengelemeye (dönen basamaklara) başlanır. |
Bitişteki dengelenmemiş basamak adedi ![]() Dönen merdivenlerde dengelemenin (dönen basamakların) hangi basamakta biteceğini belirleyen parametredir. Örneğin; 2 girilirse dengeleme sondan üçüncü basamakta bitirilir. Son iki basamak için dengeleme yapılmaz. |
Minimum basamak genişliği ![]() Dengeleme yapılırken minimum basamak genişliğinin ne kadar olabileceği bu kutucuğa girilir. Nonlineer dengeleme metodu seçilirse müdahale edilebilir. Sabit ve lineer dengeleme metotları seçildiğinde kullanıcı müdahale edemez. |
Açı ![]() Merdivenin eğimidir. Otomatik olarak hesaplanıp bu kutucuğa yazılır. Kullanıcı müdahale edemez. Merdiven kol uzunluğu ve yüksekliği, basamak ve rıhta bağlı olarak değişir. |
Sabit dengeleme metodu B+2R ![]() Adım uzunluğunu ifade eder. Burada B basamak genişliğini, R rıht yüksekliğini temsil eder. B ya da R değiştiğinde otomatik değişir. |
Lineer dengeleme metodu B-R ![]() Rahatlığı ifade eder. B basamak genişliği, R rıht yüksekliğidir. B ya da R değiştiğinde otomatik değişir. |
Nonlineer dengeleme metodu B+R ![]() Güvenliği ifade eder. B basamak genişliği, R rıht yüksekliğidir. B ya da R değiştiğinde otomatik değişir. |
Basamak numaraları yerleşimi ![]() Sola, sağa ya da çıkış hattına yanaşık seçeneklerinden biri seçilerek, merdiven basamak numaralarının basamakların neresine yazılacağına karar verilir. Bu seçeneklerin sağındaki yazı tipi butonu tıklandığında Yazı Tipi Ayarları diyaloğu ekrana gelir. Bu diyalogdan basamak yazıları için yazı tipi ve yazı efekti seçilir. |
X/Y ofset ![]() X ofset basamak yazılarını yatay olarak, Y Ofset de düşey olarak kaydırmak için kullanılır. Değerler pozitif ya da negatif olabilir. |
Açı ![]() Basamak yazılarının açısı girilir. Açı sıfır iken yazılar basamaklara paralel olurlar. Merdiven döndürülürse yazılar da merdivenle birlikte döner. Ancak Global Açı seçeneği işaretlenirse global açılar dikkate alınır. Merdivenin açısı ne olursa olsun, yazıların açısı burada yazılan açı olacaktır. |
Yükseklik ![]() Basamak yazılarının yüksekliğidir. |
Kesit hattı ![]() Kutucuğu işaretlenirse ilgili merdiven alanı (kolu) üzerine kesit hattı girilen parametrelere göre çizilir. İşaretlenmezse kesit hattı çizilmez. |
Kesit hattı şeması ![]() Kesit hattının bölümleri şematik çizim ve numaralandırmalarla gösterilir. |
Oran(D/L) ![]() Kesit hattı çizgisinin merdivendeki yerini belirler. |
Uzatma (1) ![]() Kesit hattı çizgisinin merdiven dışına çıkan mesafesini belirler. |
Açı (2) ![]() Kesit hattı çizgisinin eğimini belirler. |
Ara (3) ![]() Kesit hattı çizgilerinin birbirine uzaklığını belirler. |
Kesit çizgisinde ok çiz ![]() Kutucuğu işaretlenirse, kesit hattında çıkış hattı çizgisinin ucuna ok çizilir. |
Statik Sekmesi

Özellikler |
|---|
Merdiven alan adı ![]() Merdiven bölgesini gösteren adın göründüğü satırdır. Hangi alandaysak o alanın statik değerlerini değiştiriyoruz demektir. |
Sabit yük ![]() Merdivenin kalınlıktan oluşan betonarme ağırlığı dışındaki sabit dış yükler girilir. |
Hareketli yük ![]() Merdiven hesabında kullanılacak hareketli yük değeri girilir. |
Donatıları 3B’de göster ![]() Merdiven analizi sonucunda hesaplanan donatıların 3 boyutta, katı model görüntüsünde çizilip çizilmeyeceğini düzenleyen seçenektir. 3B perspektifte donatıları görmek istiyorsanız seçeneği işaretleyin. |
Statik materyal ![]() Merdiven elemanında kullanılacak statik materyali listeden seçin. |
Sonlu eleman genişliği ![]() Kabuk hesabında esas alınacak maksimum sonlu eleman genişliğini girilir. Program kabukları yamuk formda sonlu elemanlara bölerek analizini yapar. Sonlu eleman genişliği, bu satıra girilen değeri aşmamak kaydıyla kabuk şekline göre otomatik ayarlanır. |
Betonarme hesap akslarını göster ![]() Betonarme hesap akslarının gösterilmesi isteniyorsa işaretlenir. |
Akıllı bağlantı ile ana yapıya mesnetlensin ![]() Merdiven akıllı bağlantı ile ana yapıya mesnetlenir. |
Görünüm Sekmesi

Özellikler |
|---|
Şematik çizim ![]() Çizgi tipleri ve renklerin merdivenin hangi elemanlarının tanımladığı şematik çizim ve numaralandırmalarla gösterilir. |
Çizgi tipleri ![]() Planda merdiveni oluşturan çizgiler için ayrı çizgi tipi seçilir. Kutucukların sağındaki aşağı ok butonları tıklandığında çizgi tipleri listesi açılır. Bu listeden istenen çizgi tipi farenin sol tuşu ile tıklanarak seçilir. Çizgiler soldaki şekil üzerinde kırmızı renkli rakamlarla numaralandırılmıştır. |
Renkler ![]() Planda merdiveni oluşturan çizgiler için ayrı renk seçilir. Çizgiler diyaloğun solundaki şekil üzerinde mavi rakamlarla numaralandırılmıştır. Renk kutucuğu tıklandığında açılan pencereden uygun renk seçilir. |
Etiket ![]() Etiket işaretlenerek merdiven üzerinde rıht sayısı, basamak yüksekliği ve genişliği gösterilir. Etiket yazı tipi ile rıht sayısı, basamak yükseklik ve genişlik yazısının yazı tipi seçilir. Etiket rengi ile rıht sayısı, basamak yükseklik ve genişlik yazısının yazı rengi seçilir. Etiket yüksekliğine rıht sayısı, basamak yükseklik ve genişlik yazısının yazı yüksekliği girilir. Toplam basamak numaraları işareti kaldırılarak rıht sayısı, basamak yüksekliği ve genişliği her kolda ayrı gösterilir. İşaretlenirse toplam değerler gösterilir. |
Materyal görünüşü ![]() Merdivenin gövde, kaplama, küpeşte ve korkuluk yüzeylerinde kullanılacak materyal listeden seçilir. Yüzeyler seçilen materyal ile kaplanır ve renderlar da bu şekilde görüntülenir. Gerçek doku uzunluğuna doku uzunluğu girilir. Örneğin; 1 girilirse seçilen materyal dokusu genişliği 1 metre olarak alınır ve ilgili duvarlar üzerine kaplanır. Açıya, dokunun açısı girilir. U ve V ötelemeye, dokunun x ve y düzlemindeki hareket değeri girilir. U ve V aynalama ile dokunun y ve x düzlemine göre simetrisi alınır. Tek materyal seçeneği işaretlenerek, duvarın tüm yüzeylerinde, “Gövde” ‘de seçilen materyal kullanılır. |
Birimler Sekmesi

Özellikler |
|---|
Temel birimler ![]() Seçimlerden biri farenin sol tuşu işe tıklanarak etkin hale getirilir. Metre: İşaretlenirse, bilgi yazısının birimi metre olur. |
Hane sayısı ![]() Virgülden sonra kaç hane gösterileceğini belirler. Listeden istenilen sayı seçilir. Örneğin 2 seçilirse, birimler virgülden sonra iki hane şeklinde gösterilecektir. 0 seçilirse birimlerin, virgülden sonrası gösterilmeyecektir. |
Kesirler ![]() Kesirli inç formatında yapılacak ölçülendirmenin hangi hassasiyette gösterileceğini belirler. Listede, 1/2, ¼, 1/8, 1/16, 1/32, 1/34 hassasiyetine kadar seçenekler bulunmaktadır. ”Kesir yok” seçilirse, birimler kesirsiz görünür. |
Yuvarlama aralığı ![]() Metre, santimetre ya da milimetre olarak yapılacak ölçülendirmenin yuvarlama aralığını belirler. Yuvarlama yok seçilirse, ölçülendirme tam değerinde yapılır. Aralık büyüdükçe ölçülendirme seçilen aralık kadar yuvarlanır. |
Sıfır birimi göster ![]() İşaretli değilse, soldaki sıfır ve noktayı ölçülendirmede göstermez. Örneğin 0.20 değerini, 20 olarak ölçülendirir. İşaretli ise 0.20 değeri 0.20 olarak ölçülendirilir. |
Küçük kesir yazısı ![]() Kesirli inç formatı seçildiğinde, kesir kısmının büyük/küçük gösterilmesini belirler. İşaretli ise kesir tam sayının biraz üstünde ve küçük, işareti değilse kesir tam sayının yanında aynı büyüklükte gösterilir. |
Sıfır fiti göster ![]() 0 fitli ölçlendirmede (1 fitten küçük ölçü değerinde) 0 ın gösterilip gösterilmeyeceğini belirler. Örneğin işaretli değilse, 0' - 15" değerinde bir ölçüyü -15" olarak gösterir. İşaretli ise 0'-15" şeklinde gösterir. |
0-1 aralığında sıfır inç’i göster ![]() Örneğin 8'-0 1/6 " değerine sahip bir ölçülendirme inç kısmı 0-1 aralığındadır. Seçenek işareli değilse 8'-0 1/6 " değeri 8'- olarak gösterilecektir. Başka bir deyişle 0-1 aralığındaki inç değerleri gösterilmeyecektir. |
Mutlak sıfır inç’i göster ![]() İnçin kesin sıfır olduğu ölçülendirme değerinde sıfır inçin gösterilip gösterilmeyeceğini belirler. Örneğin tam 10' değerinde bir ölçülendirme, eğer bu seçenek işaretli ise, 10'-0" şeklinde gösterilecektir. İşaretli değilse 10"- şeklinde gösterilecektir. |
Korkuluk Sekmesi

Özellikler |
|---|
Küpeşte profilleri ![]() Küpeşte listesinden bir küpeşte farenin sol tuşu ile tıklanarak seçilir. Seçilen küpeşte kesiti, küpeşte ekranında görüntülenir. |
Korkuluk profilleri ![]() Korkuluk listesinden bir korkuluk farenin sol tuşu ile tıklanarak seçilir. Seçilen korkuluk görüntüsü, korkuluk ekranında görüntülenir. |
Yapı Bileşenleri Sekmesi

Yapı bileşenleri ekle: Detaylı yapı bileşenleri metrajı için tanımlanan yapı malzemelerini duvar objesine atar.
Yapı Bileşeni Ekle butonunu tıklayın.
Bileşen Seçimi diyaloğu açılacaktır.
Bu diyalogda sol tarafta bulunan listeden malzeme ile ilgili klasörü tıklayın. Kullanmak istediğiniz malzemeyi seçin.
Sağ tarafta bulunan parametreleri ayarlayın.
Tamam butonu tıklayın. “Bileşen Seçimi” diyaloğu kapanacaktır. Yapı Bileşenleri sekmesinde malzemeye ait özet bir satır görünecektir. Bir objeye birden fazla malzeme ataması yapılabilir.

Bileşen seçimi diyaloğu kullanım bölümünde bulunan parametreler şunlardır:
Değişiklik yok: Söz konusu obje için atanacak malzemenin miktarı, daha önce malzeme tanımında belirlendiği büyüklükte kullanılması istendiği zaman işaretlenir.
Yüzde oranı: Bu satır, daha önce malzeme tanımında belirlenen miktarın, aynı diyalogda bulunan “Değer 1” satırında girilen değer kadar yüzdesi ile kullanılmak istendiği zaman işaretlenir. Örneğin, malzeme miktarı 70 ise, “Değer 1” satırında 40 yazıyorsa, malzeme miktarı %40’ı kadar kullanılacak demektir.
Yeni tanımlı: Bu satır, daha önce malzeme tanımında belirlenen miktarın yerine aynı diyalogda bulunan “Değer 1” satırında girilen miktarın kullanılması için işaretlenir.
Çarpan: Bu satır, daha önce malzeme tanımında belirlenen miktar ile aynı diyalogda bulunan “Değer 1” satırında girilen değerin çarpımın sonucunda bulunan değerin miktar olarak kullanılması için işaretlenir.
Kesirli: Bu satır, daha önce malzeme tanımında belirlenen miktarın aynı diyalogda bulunan “Değer 1” ve “Değer 2” satırlarında girilen değerlerin oluşturduğu kesir değeri kadar kullanılması için işaretlenir. “Değer 1” pay “Değer 2” paydadır.
Oranla: Malzemenin hangi ölçeğe -alana, çevreye, uzunluğa vs.-, bölgeye -yan alan, üst, kenar vs.- oranlanacağı belirlenir. Oranla liste kutusunun içeriği işlem yapılan objeye ve malzemenin ölçüsüne göre otomatik belirlenir. Örneğin kolon için işlem yapılıyorsa farklı bir liste, kütüphane için işlem yapılıyorsa farklı bir liste, hacim ise farklı bir liste, alan ise farklı bir liste oluşacaktır.
Oranla listesinde merdiven objesi ve malzeme ölçüsüne göre beliren satırlar şunlardır.
Merdiven | ||
Ölçü | Listede çıkan | Açıklama |
Sabit | Bağımsız | Kullanılan sabit ölçü, miktar olarak aynen kullanılacak demektir. |
Uzunluk | Bağımsız | Malzeme tanımlanırken bulunan uzunluk ölçüsü, uzunluk değeri olarak aynen kullanılacak demektir. |
Çıkış hattı uzunluğu | Malzeme tanımlanırken bulunan uzunluk ölçüsü ile merdivenin çıkış hattı uzunluğu çarpılarak, malzemenin uzunluğu bulunacak demektir. | |
Alan | Bağımsız | Malzeme tanımlanırken bulunan alan ölçüsü, malzemenin alanı olarak aynen kullanılacak demektir. |
Üst alan | Malzeme tanımlanırken bulunan alan ölçüsü, merdivenin üst yüzeyinin alanı ile çarpılarak kullanılacak demektir. | |
Hacim | Bağımsız | Malzeme tanımlanırken bulunan hacim ölçüsü, malzemenin hacmi olarak aynen kullanılacak demektir. |
Sayı
| Bağımsız | Malzeme tanımlanırken bulunan sayı ölçüsü, malzeme sayısı olarak aynen kullanılacak demektir. |
Sayı | Malzeme tanımlanırken bulunan sayı ölçüsü, malzeme sayısı olarak aynen kullanılacak demektir. | |
Rıht sayısı | Malzeme tanımlanırken bulunan sayı ölçüsü, merdivenin rıht sayısı ile çarpılarak kullanılacak demektir. | |
Sonraki Konu













































































