Skip to main content
Skip table of contents

Kompozit Petek Kiriş Tasarım

Kompozit petek kiriş tasarım sonuçları ve kompozit petek kirişlere ilişkin yetersizlik durumları Kompozit Petek Kirişleri diyaloğunda gösterilir. Tali kirişlerin enkesitleri petek kiriş olarak seçilir ve bu tali kirişlerin üzerine kompozit döşeme tanımı yapılır ise kompozit petek kiriş tasarımı kullanılır. Kompozit Petek Kirişleri diyaloğunda brüt ve net alanda kesme, gövde burkulması, vierendeel kontrolleri ile birlikte iç kuvvet sonuçları ve net atalet momenti hesabı da verilir.

Kompozit Petek Kirişleri Diyaloğunun Yeri

Analiz yapıldıktan sonra, ribbon menü Analiz ve Tasarım sekmesi Çelik Tasarım başlığı altından Kompozit Petek Kiriş Sonuçları komutuna tıklayarak ulaşabilirsiniz.

Kompozit Petek Kirişleri

image-20240524-125808.png

Özellikler

İsim

image-20240524-125431.png

Petek kirişin plandaki adıdır.

Kesit

Petek kirişte kullanılan kesittir.

Malzeme

image-20240524-125500.png

Petek kirişin malzeme sınıfıdır.

Yapım aşaması tasarımı

Yapım aşaması tasarım kontrolünü gösterir.

Kompozit tasarım

Kompozit tasarım kontrolünü gösterir.

Sehim

Petek kontrolünü gösterir.

Yapım aşaması tasarımı

Yapım aşaması tasarım detayları penceresini açar.

Konpozit Tasarımı

Kompozit tasarım detayları penceresini açar.

Sonraki

İmleç bir sonraki satıra gider.

Tamam

Yapılan değişiklikleri kayıt ederek diyaloğu kapatır.

İptal

Yapılan değişiklikleri kayıt etmeden diyaloğu kapatır.

Özet Bilgi

İmlecin bulunduğu satıra ilişkin özet bilgi Katı, Pozu formatında diyaloğun adı kısmında verilmektedir.

Örneğin ZEMİN KAT, SB001

Shift tuşu kullanımı

Bu sekmede Shift tuşu ile birden fazla satır seçebilir, değeri değiştirilmeye açık herhangi bir hücreye çift tıklayarak değer girebilir ve o değerin seçili tüm satırlar için uygulanmasını olmasını sağlayabilirsiniz.

Ctrl tuşu kullanımı

Ctrl tuşu ise arada kalan satırları tek tek seçer.

Yapım Aşaması Tasarımı

Tasarım Detayları Sekmesi

Özellikler

Eğilme

Komb.: En elverişsiz kesit kuvvetlerini oluşturan kombinasyondur.
Konum: Tasarımda dikkate alınan kesit kuvvetlerinin kiriş üzerindeki konumudur.
Mu3: Elemana 3 yönünde etkiyen moment değeridir.
Mc3: Elemanın 3 yönündeki moment kapasitesidir.
Oran: Moment-kapasite oranıdır.

Kesme (Brüt)

Komb.: En elverişsiz kesit kuvvetlerini oluşturan kombinasyondur.
Konum: Tasarımda dikkate alınan kesit kuvvetlerinin kiriş üzerindeki konumudur.
Vu: Elemana etkiyen kesme kuvvetidir.
Vc: Elemana ait kesme kuvveti kapasitesidir.
Oran: Elemana ait kesme kuvvetinin kapasiteye oranıdır.

Kesme (Net)

Komb.: En elverişsiz kesit kuvvetlerini oluşturan kombinasyondur.
Konum: Tasarımda dikkate alınan kesit kuvvetlerinin kiriş üzerindeki konumudur.
Vu: Elemana etkiyen kesme kuvvetidir.
Vc: Elemana ait kesme kuvveti kapasitesidir.
Oran: Elemana ait kesme kuvvetinin kapasiteye oranıdır.

Yatay kesme

Komb.: En elverişsiz kesit kuvvetlerini oluşturan kombinasyondur.
Konum: Tasarımda dikkate alınan kesit kuvvetlerinin kiriş üzerindeki konumudur.
Vu: Elemana etkiyen kesme kuvvetidir.
Vc: Elemana ait kesme kuvveti kapasitesidir.
Oran: Elemana ait kesme kuvvetinin kapasiteye oranıdır.

Gövde burkulması

Komb.: En elverişsiz kesit kuvvetlerini oluşturan kombinasyondur.
Konum: Tasarımda dikkate alınan kesit kuvvetlerinin kiriş üzerindeki konumudur.
Mu: Elemana etkiyen moment değeridir.
Mc: Elemanın moment kapasitesidir.
Oran: Elemana etkiyen momentin kapasiteye oranıdır.

Vierendeel eğilme

Komb.: En elverişsiz kesit kuvvetlerini oluşturan kombinasyondur.
Konum: Tasarımda dikkate alınan kesit kuvvetlerinin kiriş üzerindeki konumudur.
Pu: Eksenel yük değeridir.
Mu3: Elemana 3 yönünde etkiyen moment değeridir.
Pc: Petek kirişin eksenel yük kapasitesidir.
Mc3: Elemanın 3 yönündeki moment kapasitesidir.
Etkileşim denklemi: Oran hesabında kullanılan etkileşim denklemidir.
Oran: Etkileşim denklemi ile bulunan moment-kapasite oranıdır.

Kuvvet ve Momentler Sekmesi

Özellikler

i

Petek kirişte yer alan gövde ve gövde boşlukları listelenir.

x

İlgili kuvvet ve momentlerin bulunduğu konumu gösterir.

Vu

Elemana etkiyen kesme kuvvetidir.

Mu

Elemana etkiyen moment değeridir.

Pv

Eksenel kuvvet değeridir.

Mv

Elemana etkiyen moment değeridir.

Vh

Elemana etkiyen kesme kuvveti.

Mh

Elemana etkiyen moment değeridir.

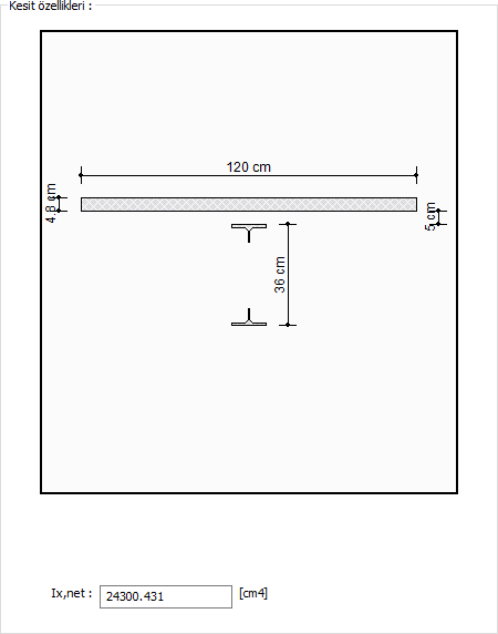
Kesit Detayları Sekmesi

Özellikler

Kesit özellikleri

Ix,net: x yönündeki net atalet momentini gösterir.

T kesit özellikleri

A: Kesit alanını gösterir.
J: Polar Atalet momentini gösterir.
Ix: x yönündeki atalet momentini gösterir.
Iy: y yönündeki atalet momentini gösterir.
ix: x yönündeki atalet yarıçapını gösterir.
iy: y yönündeki atalet yarıçapını gösterir.
Wex,üst: üst başlık bölgesinde, x yönündeki elastik mukavemet momentini gösterir.
Wey,üst: üst başlık bölgesinde, y yönündeki elastik mukavemet momentini gösterir.
Wex:alt: alt başlık bölgesinde, x yönündeki elastik mukavemet momentini gösterir.
Wey,alt: alt başlık bölgesinde, y yönündeki elastik mukavemet momentini gösterir.
Wpx: x yönündeki plastik mukavemet momentini gösterir.
Wpy: y yönündeki plastik mukavemet momentini gösterir.

Kompozit Tasarımı

Tasarım Detayları Sekmesi

Özellikler

Sehim

Komb.: En elverişsiz kesit kuvvetlerini oluşturan kombinasyondur.
Sehim: Petek kirişte oluşan sehimdir.
Açıklık: Petek kirişin boyudur.
Üst değer: Kirişin yönetmeliğe göre sehim üst değeridir.
Oran: Kirişin yaptığı sehimin sınır değere oranıdır.

Kesme (Brüt)

Komb.: En elverişsiz kesit kuvvetlerini oluşturan kombinasyondur.
Konum: Tasarımda dikkate alınan kesit kuvvetlerinin kiriş üzerindeki konumudur.
Vu: Elemana etkiyen kesme kuvvetidir.
Vc: Elemana ait kesme kuvveti kapasitesidir.
Oran: Elemana ait kesme kuvvetinin kapasiteye oranıdır.

Kesme (Net)

Komb.: En elverişsiz kesit kuvvetlerini oluşturan kombinasyondur.
Konum: Tasarımda dikkate alınan kesit kuvvetlerinin kiriş üzerindeki konumudur.
Vu: Elemana etkiyen kesme kuvvetidir.
Vc: Elemana ait kesme kuvveti kapasitesidir.
Oran: Elemana ait kesme kuvvetinin kapasiteye oranıdır.

Yatay kesme

Komb.: En elverişsiz kesit kuvvetlerini oluşturan kombinasyondur.
Konum: Tasarımda dikkate alınan kesit kuvvetlerinin kiriş üzerindeki konumudur.
Vu: Elemana etkiyen kesme kuvvetidir.
Vc: Elemana ait kesme kuvveti kapasitesidir.
Oran: Elemana ait kesme kuvvetinin kapasiteye oranıdır.

Gövde burkulması

Komb.: En elverişsiz kesit kuvvetlerini oluşturan kombinasyondur.
Konum: Tasarımda dikkate alınan kesit kuvvetlerinin kiriş üzerindeki konumudur.
Mu: Elemana etkiyen moment değeridir.
Mc: Elemanın moment kapasitesidir.
Oran: Elemana etkiyen momentin kapasiteye oranıdır.

Vierendeel eğilme

Komb.: En elverişsiz kesit kuvvetlerini oluşturan kombinasyondur.
Konum: Tasarımda dikkate alınan kesit kuvvetlerinin kiriş üzerindeki konumudur.
Pu: Eksenel yük değeridir.
Mu3: Elemana 3 yönünde etkiyen moment değeridir.
Pc: Petek kirişin eksenel yük kapasitesidir.
Mc3: Elemanın 3 yönündeki moment kapasitesidir.
Etkileşim denklemi: Oran hesabında kullanılan etkileşim denklemidir.
Oran: Etkileşim denklemi ile bulunan moment-kapasite oranıdır.

Kuvvet ve Momentler Sekmesi

Özellikler

i

Petek kirişte yer alan gövde ve gövde boşlukları listelenir.

x

İlgili kuvvet ve momentlerin bulunduğu konumu gösterir.

Vu

Elemana etkiyen kesme kuvvetidir.

Mu

Elemana etkiyen moment değeridir.

Pv

Eksenel kuvvet değeridir.

Mv

Elemana etkiyen moment değeridir.

Vh

Elemana etkiyen kesme kuvveti.

Mh

Elemana etkiyen moment değeridir.

Kesit Detayları Sekmesi

Özellikler

Kesit özellikleri

Ix,net: x yönündeki net atalet momentini gösterir.

T kesit özellikleri

A: Kesit alanını gösterir.
J: Polar Atalet momentini gösterir.
Ix: x yönündeki atalet momentini gösterir.
Iy: y yönündeki atalet momentini gösterir.
ix: x yönündeki atalet yarıçapını gösterir.
iy: y yönündeki atalet yarıçapını gösterir.
Wex,üst: üst başlık bölgesinde, x yönündeki elastik mukavemet momentini gösterir.
Wey,üst: üst başlık bölgesinde, y yönündeki elastik mukavemet momentini gösterir.
Wex:alt: alt başlık bölgesinde, x yönündeki elastik mukavemet momentini gösterir.
Wey,alt: alt başlık bölgesinde, y yönündeki elastik mukavemet momentini gösterir.
Wpx: x yönündeki plastik mukavemet momentini gösterir.
Wpy: y yönündeki plastik mukavemet momentini gösterir.


JavaScript errors detected

Please note, these errors can depend on your browser setup.

If this problem persists, please contact our support.