(7.11.5) Örnek Hesap
Örnek projede deprem yüklerinin döşemeden Zemin Katta bulunan P21 perde koluna kuvvetli doğrultuda aktarılacak deprem kuvveti hesaplanacaktır. G'+Q'+Ex'-0.3Ey'+0.3Ez yük birleşimi etkisi altında hesap gösterilecektir.

Malzeme: C25/S420 donatı tasarım akma dayanımı, fyd = 420/1.15 = 365.22 MPa
Dayanım Fazlalığı Katsayısı, D = 2.5
TBDY Bölüm 7.11.5 'te bahsedildiği üzere perde koluna kuvvetli doğrultuda aktarılacak deprem kuvveti (DVd) , Dayanım Fazlalığı Katsayısı D gözönüne alınarak hesaplanan deprem etkilerinin kat seviyesinin alt kesitinde (DVd,i) ve kat seviyesinin üst kesitinde (DVd,i+1) oluşan kesme kuvvetlerinin farkı olarak hesaplanır.
DVd = DVd,i - DVd,i+1
Zemin Kat P21 perde kolunun üst ucunda; G'+Q'+Ex'-0.3Ey'+0.3Ez yük birleşimi etkisi altında düşey yükler ve Dayanım Fazlalığı Katsayısı D gözönüne alınarak hesaplanan deprem yüklerinin ortak etkisi altında hesaplanan kesme kuvveti DVd,i = 122.08 kN olarak hesaplanmıştır.
Birinci normal kat P21 perde kolunun alt ucunda; G'+Q'+Ex'-0.3Ey'+0.3Ez yük birleşimi etkisi altında düşey yükler ve Dayanım Fazlalığı Katsayısı D gözönüne alınarak hesaplanan deprem yüklerinin ortak etkisi altında hesaplanan kesme kuvveti DVd,i+1 = 106.34 kN olarak hesaplanmıştır.
Bu durumda perde koluna kuvvetli doğrultuda aktarılacak deprem kuvveti;
DVd = DVd,i - DVd,i+1 = 122.08 - 106.34 = 15.74 kN
olarak bulunmuştur.
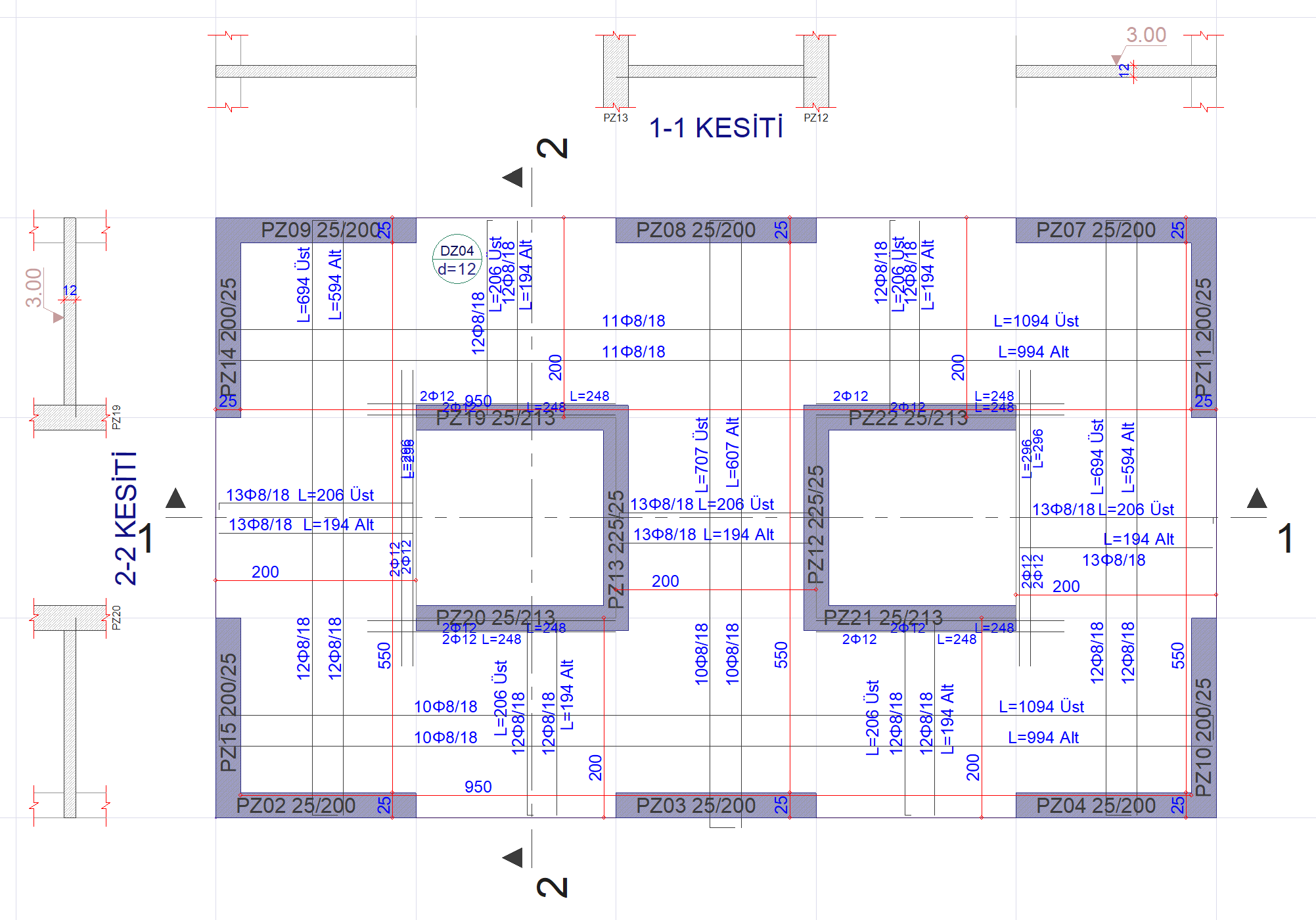
Döşemenin donatı düzeni aşağıdaki resimde gösterilmektedir. Bu donatı düzenine göre Aktarma Donatısı Alanı, Asa ve Bağlantı Donatısı Alanı Asb aşağıda gösterildiği gibi hesaplanmaktadır.

Aktarma Donatısı Alanı, Asa perdeye kuvvetli doğrultuda her iki taraftan saplanan ve eğilme dayanımı için gerekli olandan arta kalan donatı alanıdır. PZ21 perdesine kuvvetli ve zayıf eksenden bağlanan ve bindirme boyu koşulunu sağlayan döşeme donatıları Φ8/18 lik donatıların perdenin kuvvetli ekseninden saplandığı düşünülebilir. Bu durumda 1 m de yaklaşık 6 adet Φ8 donatısı olacaktır. Bu donatılardan alt ve üst tarafta olduğu için de 1 m lik uzunluklukta toplamda 12 adet donatı olacaktır. Bu durumda 1m uzunluk için elde edilen donatı alanı;
12*( π*(82/4) ) = 603.186 mm2 olarak bulunur.
ideCAD’de sonlu eleman sonuçlarından (perspektif ekran - analiz görüntüleme - kabuk sonuçları - döşeme - ilgili yön donatı) PZ21 perde kolunun uç bölgesindeki döşemede eğilme için gerekli olan donatı alanı yaklaşık olarak 0,5 cm2/m = 50 mm2/m olarak okunmuştur.
Bu durumda 25 cm kalınlığında PZ21 perdesine saplanan ve eğilme dayanımı için gerekli olandan arta kalan donatı alanı;
Asa = 0.25 * (603.186 - 50) = 138.29 mm2 = 1.38 cm2 olarak bulunmuştur.
Bağlantı Donatısı Alanı, Asb , perde döşeme birleşimindeki eğilme dayanımı için gerekli olandan arta kalan döşeme donatsının alanıdır. PZ21 perdesinin döşeme ile birleşimindeki döşeme donatısı alt ve üst olmak üzere Φ8/18 dir. Bu durumda 1 m için 6 adet alt ve 6 adet üst olmak üzere toplamda 12 adet donatı olduğu varsayımı yapılabilir. Bu durumda 1m uzunluk için elde edilen donatı alanı;
12*( π*(82/4) ) = 603.186 mm2/m olarak bulunur.
ideCAD’de sonlu eleman sonuçlarından PZ21 perde-döşeme birleşimi bölgesinde eğilme için gerekli olan donatı alanı yaklaşık olarak 0,3 cm2/m = 30 mm2/m olarak okunmuştur. Bu durumda eğilme için gerekli olan donatıdan arta kalan donatı alanı,
603.186 - 30 = 573 mm2/m = 5.73 cm2/m olarak bulunur.
Perde kolunun uzunluğu da 2 m olarak dikkate alındığında;
Asb = 5.73 * 2 =11.46 cm2 olarak bulunur.
Aktarma Donatısı Alanı, Asa ve Bağlantı Donatısı Alanı, Asb bulunduktan sonra Aktarma Donatısının oluşturduğu eksenel çekme dayanımlarının toplamı (2Asafyd) ile Bağlantı Donatısının oluşturduğu kesme sürtünmesi dayanımının (µAsbfyd) toplamı DVd değerini aşmayacaktır.
µ kesme sürtünmesi katsayısıdır. TS 500 Çizelge 8.1 'e göre bir döküm beton için µ=1.4 olarak alınmaktadır. Ancak TBDY Madde 7.11.5 'te belirtildiği üzere µ≤1 değeri kullanılacağı için µ=1.0 olarak alınmıştır.
Bu durumda deprem yüklerinin döşemeden Zemin Katta bulunan P21 perde koluna kuvvetli doğrultuda aktarılacak deprem kuvveti kontrolü aşağıdaki gibi yapılmaktadır.
DVd = 15.74 kN
2Asafyd + µAsbfyd = [ 2*138.29*(365) + 1*1146*(365) ]/1000 = 519.24 kN
DVd = 15.74 kN < 2Asafyd + µAsbfyd = 519.24 kN olduğundan kuvvet güvenle aktarılmaktadır.

Sonraki Konu