Kolon Kalıp İskelesi Tasarım Örneği
Plan ve 3 boyutlu model görüntüsü yer alan projeye ait 30x60 boyutlarındaki kolon için ahşap iskele hesabı yapılacaktır.

Plywood kalınlığı t=18 mm,
Plywood Eğilme dayanımı fel = 30 MPa
Plywood Kesme dayanımı fek = 3.0 MPa
Plywood Elastisite modülü El = 10000 MPa
Kalıp içerisine beton yerleştirme hızı R = 2m/saat
Beton döküm sıcaklığı T = 20°C

Ƥmaks = p = 58.5 kN/m2 = 0.0585 N/mm2
Birincil kiriş aralığı, Lbk
bl = 1000 mm tl = 18 mm
Al = tl * bl = 18x1000 = 18000 mm2
Il = [ bl * ( tl ^3) ]/ 12 = 486000 mm4
Sl = Il / ( tl / 2)= 54000 mm3
Ƥmaks = p = 58.5 kN/m2 = 0.0585 N/mm2
İkincil kiriş aralığı, Lik
Birincil kiriş kesiti olarak H20 seçilmiştir.
Abk = 9640 mm2
Ibk = 45701333.333 mm4
Sbk = 457013.333 mm3

Birincil Kiriş malzeme özellikleri
febk = 30 MPa
febk = 3.0 MPa
Ebk = 14000 MPa

Lbk = 364.3 mm
Abk = 9640 mm2
Ibk = 45701333.333 mm4
Sbk = 457013.333 mm3
febk = 30 MPa
febk = 3.0 MPa
Ebk = 14000 MPa
Bağlantı Elemanı Aralığı, Lb
İkincil kiriş kesiti olarak 2xUPN 80 seçilmiştir.
Aik = 2185.3 mm2
Iik = 2.0921x10 6 mm4
Sik = 52303 mm3

İkincil Kiriş malzeme özellikleri
feik = 235 MPa
feik = 141 MPa
Eik = 200000 MPa
Bağlantı elemanı çapı Φ = 17 mm

Lik = 753.8 mm
Aik = 2185.3 mm2
Iik = 2.0921x10 6 mm4
Sik = 52303 mm3
f eik = 30 MPa
f eik = 3.0 MPa
Eik = 14000 MPa
Bağlantı elemanı çapı Φ = 17 mm
Bağlantı elemanı çekme kapasitesi, Nd,b
Nd,b = [ ( π* 2 ) / 4 fyb = [ ( π*172 ) / 4 ] 235 = 53340.32 N = 53.34 kN
Payanda Kontrolü
Payanda eksenel yük kapasitesi Nd = 9.7 kN
c =1.2
q = 0.5 kN/m 2
30/60 boyutlarındaki bir kolonda en olumsuz durum 60 cm‘lik kenarda oluşacaktır.
w = q x c x b = 1.2 x 0.5 x 0.6 = 0.36 kN/m
W = w x h = 0.36 x 3 =1.08 kN
Npc = 1.278 kN < Nd = 9.7 kN


Rapordan örnek sayfa

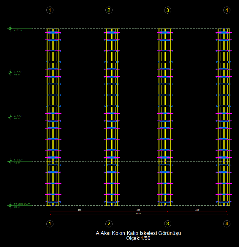
Kalıp iskelesi örnek çizimler



Sonraki Konu