Bir Alanı Bölerek İki Farklı Mahal Tanımlama
"Çiz/Objeler/Mahal Kenarı/Mahal Kenarı" veya ribbon menüde "Giriş/Mahal/Mahal Kenarı" ile var olan bir mahali bölerek iki farklı alan tanımı yapılır.
Bunun için;
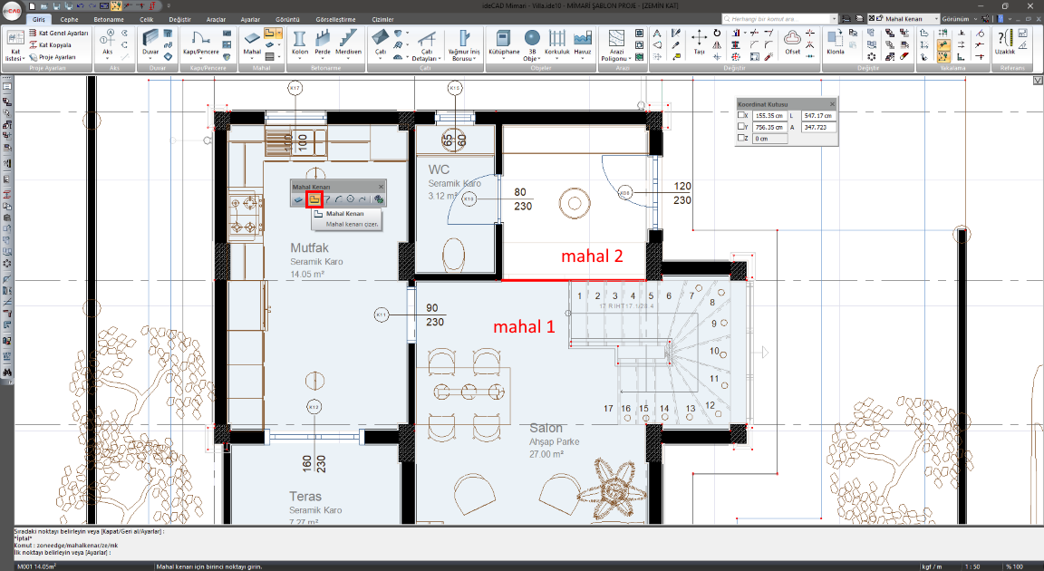
Klasik menüde Çiz/Objeler/Mahal Kenarı/Mahal Kenarı satırı, ribbon menüde Giriş/Mahal/Mahal Kenarı ikonunu tıklayın.
İki farklı alan tanımlamak istediğiniz mahalde, bölünmesini istediğiniz şekilde sınırınızı çiziniz.
Sınırınızı çizdiğiniz de program mahali ikiye böler ve sadece bir alanınızda mahaliniz tanımlı hale gelir.
Diğer alanınıza mahal tanımlamak için klasik menüde Çiz/Objeler/Mahal/Mahal satırını ya da toolbardan Mahal ikonunu, ribbon menüde Giriş/Mahal/Mahal ikonunu tıklayın.
İkinci alanınıza tıklayarak mahalinizi tanımlayın.



Sonraki Konu